Maison à vendre 4 pièces • 3 chambres • 87 m2 Rots
Prix au m² : 3 259 € / m²
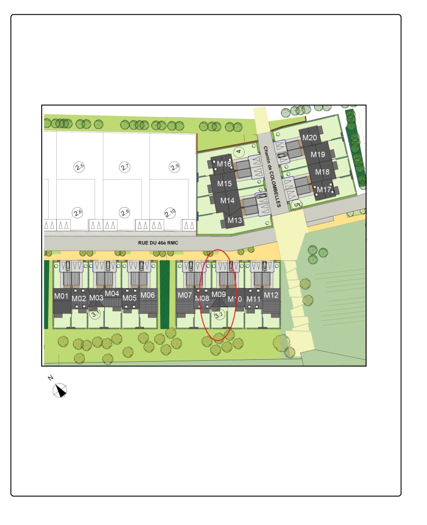
Référence 547.PA
Description du bien
Nuances immobilières vous propose aux portes de CAEN OUEST, dans la belle commune de ROTS, dans le Centre, au sein d'un ensemble de 20 Maisons, la possibilité de faire l'acquisition d'une maison 4Pièces de 87m², garage, 2 parkings, jardin clos arboré et engazonné et abri de jardin. Exposition plein Sud. Cette maison répondra à la toute dernière norme thermique, vous permettant de réaliser un achat serein pour l'avenir. Aucun travaux à prévoir. Ici nous vous présentons cette maison comprenant un séjour de 35m² avec cuisine ouverte et fenêtre, placard dans l'entrée avec coin lave linge, puis une pièce d'eau, et wc. À l'étage : 3 chambres de 12m², 10m² et 9 m², Wc indépendant et salle de bains avec velux. Un garage de 17m² pour votre confort et deux places de parking compris dans le prix. Chauffage par pompe à chaleur. Habitable sous 10 mois Ecoles, commerces, bus et centre commercial Cora accessibles rapidement. Tel 02 31 08 40 40 “Les informations sur les risques auxquels ce bien est exposé sont disponibles sur le site Géorisques : www.georisques.gouv.fr”.
Caractéristiques du bien
-
Intérieur
- Surface 87 m2
- 3 Chambres
- 2 WC
- 1 Salle de bain/eau
-
Extérieur
- Jardin de 81 m2
- Terrasse
-
Surfaces annexes
- Garage
-
Copropriété
- Nombre de lots: 20
-
Accessibilité
- Accès PMR
-
Environnement
- Exposition NORD-SUD
LOCALISATION DU BIEN
Quartier Rots à Rots
Géorisque
Informations financières
A propos du prix
Prix de vente
Prix au m² : 3 259 € / m²

Calcul de vos mensualités
- Montant emprunté
- Coût des intérêts
-
Coût des intérêts :
93249 €