property

Appartement à vendre 2 pièces • 1 chambre • 44.83 m2

198 000 €

exclusivité

Appartement à vendre 2 pièces • 1 chambre • 44.83 m2 Toulouse

198 000 €

Prix au m² : 4 417 € / m²

Référence  DP819

decoration todo
D.SY.D Immobilier

19 annonces

Cugnaux

Description du bien

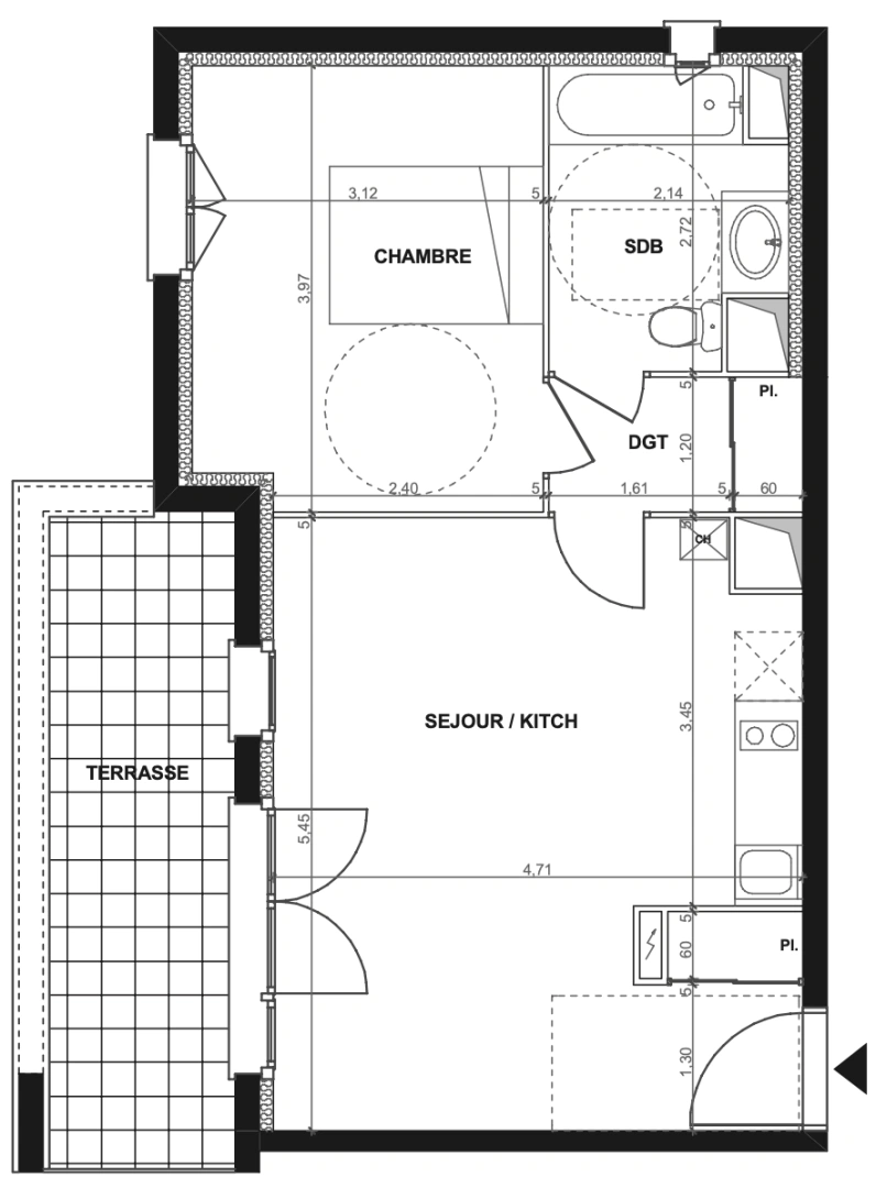
TOULOUSE - 31300 - Entre PATTE D'OIE et PURPAN, en retrait de l'Avenue de Grande Bretagne, à proximité de la Cartoucherie, proche du métro et du Tramway. Appartement T2 de 45 m² au RDC avec un balcon de 10 m² exposé Sud et d'un parking souterrain, dans une petite résidence BBC de 2015 contitué de 2 bâtiments avec parc paysagé. L'appartement est constitué d'une Cuisine ouverte sur le séjour donnant sur le balcon de 10 m² exposé Sud, un dégagement avec un grand placard donne accès à une chambre de 12 m² et une salle de bains avec fenêtre et un WC. Prestations : carrelage et parquet flottant, ouverture dans toutes les pièces, chauffage et eau chaude Gaz par chaudière à condensation individuelle, fibre, peinture lisse, fenêtres doubles vitrages PVC avec volet roulants. Taxe foncière 1050€, Charges de copropriété 89€ / mois. L'appartement est actuellement loué 573€ + 70 € de charges. Pour de plus amples renseignements, contactez votre agence D.SY.D Immobilier.

Afficher plus Afficher moins

Caractéristiques du bien

  • Intérieur

    • Surface 44.83 m2
    • 1 Chambres
    • 1 WC
    • 1 Salle de bain/eau
    • Cuisine SEMI-EQUIPEE
  • Extérieur

    • 1 balcon
  • Surfaces annexes

    • Bâtiment de 3 étages
  • Copropriété

    • ANCIEN
    • Nombre de lots: 2
  • Accessibilité

    • Accès PMR
  • Environnement

    • Exposition SUD
    • Vue Jardin

Diagnostics énergétiques

Consommation énergétique

Emission de gaz

LOCALISATION DU BIEN

Quartier Casselardit à Toulouse

Points d'intérêts

Transports

Éducation

Services publics

Commerces & Services

Géorisque

Les informations sur les risques auxquels ce bien est exposé sont disponibles sur le site Géorisques https://www.georisques.gouv.fr

Informations financières

A propos du prix

Prix de vente

198 000 €

Prix au m² : 4 417 € / m²

  • Charge de copropriété
    89 € / an

    Montant annuel de la quote-part du budget prévisionnel des dépenses courantes.

  • Taxe foncière
    1 050 € / an

Calcul de vos mensualités

Simulez vos prêts en quelques clics !

*Les données de ce simulateur sont indicatives et non contractuelles. Calcul hors assurance et frais de garantie.

Vos mensualités
679 € / mois
  • Montant emprunté
  • Coût des intérêts
  • Coût des intérêts :

    65126
    (d’après le taux d’intérêt annuel moyen : 3.3 %)
decoration
D.SY.D Immobilier

19 annonces

Cugnaux

Ce bien vous intéresse ?
*
*
*
*
*
*