property

Propriete à vendre 19 pièces • 5 chambres • 320 m2

315 000 €

Propriete à vendre 19 pièces • 5 chambres • 320 m2 Agde

315 000 €

Prix au m² : 985 € / m²

Référence  LVPR10000417

decoration todo
L'AGENCE POUR VOUS

17 annonces

Montpellier

Description du bien

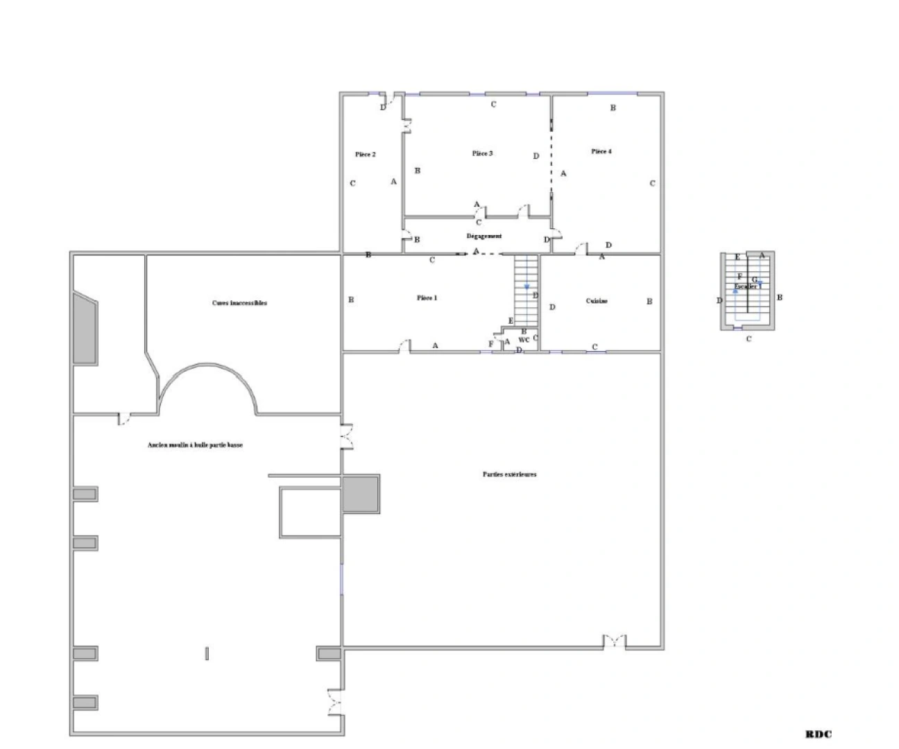
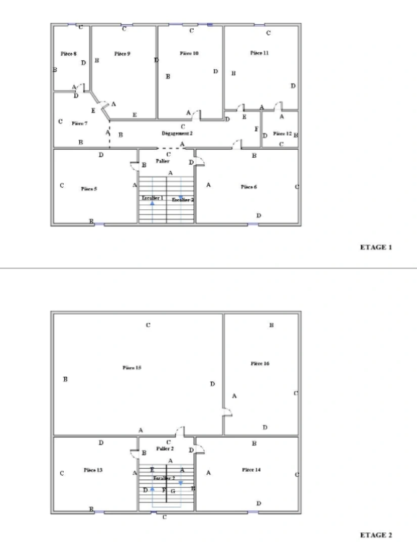
Découvrez ce bien atypique au charme singulier, idéal pour les amoureux de rénovation et les porteurs de projets ambitieux. Une première maison de ville sur 3 niveaux environ 152m² Au rez-de-chaussée, vous trouverez une entrée, une salle d’eau et une chambre. Au premier étage, une cuisine séparée, un grand séjour lumineux avec balcon ainsi qu’une pièce annexe. Au deuxième étage, trois chambres dont une avec mezzanine et deux extérieurs agréables. Une ancienne usine d’huile d’olive Ce volume rare offre une magnifique hauteur sous plafond et de multiples possibilités d’aménagement, qu’il s’agisse d’un atelier, d’un loft ou d’un espace événementiel. Une seconde maison avec vue sur l’Hérault environ 300m² Accessible depuis la cour située devant l’ancienne usine, elle se développe sur trois niveaux. Au rez-de-chaussée, une entrée, une vaste pièce de vie anciennement utilisée comme restaurant et une cuisine. Au premier étage, quatre chambres de belles dimensions. Au dernier étage, des combles en excellent état pouvant être aménagés selon vos envies. En résumé Cet ensemble immobilier composé de plusieurs bâtiments représente une opportunité rare sur le marché. Il nécessite une rénovation complète, mais son potentiel est considérable, que ce soit pour un projet familial, professionnel ou patrimonial.

Afficher plus Afficher moins

Caractéristiques du bien

  • Intérieur

    • Surface 320 m2
    • 5 Chambres
    • 3 WC
    • 3 Salle de bain/eau

Diagnostics énergétiques

Consommation énergétique

Emission de gaz

LOCALISATION DU BIEN

Quartier La Ville à Agde

Points d'intérêts

Transports

Éducation

Services publics

Commerces & Services

Géorisque

Les informations sur les risques auxquels ce bien est exposé sont disponibles sur le site Géorisques https://www.georisques.gouv.fr

Informations financières

A propos du prix

Prix de vente

315 000 €

Prix au m² : 985 € / m²

  • Taxe foncière
    4 987 € / an

Calcul de vos mensualités

Simulez vos prêts en quelques clics !

*Les données de ce simulateur sont indicatives et non contractuelles. Calcul hors assurance et frais de garantie.

Vos mensualités
1080 € / mois
  • Montant emprunté
  • Coût des intérêts
  • Coût des intérêts :

    103610
    (d’après le taux d’intérêt annuel moyen : 3.3 %)
decoration
L'AGENCE POUR VOUS

17 annonces

Montpellier

Ce bien vous intéresse ?
*
*
*
*
*
*