Terrain à batir à vendre Ville-la-Grand
Référence V10000302
Description du bien
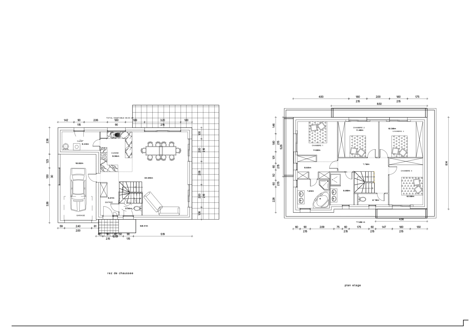
Venez découvrir cette parcelle de 617 m². Idéalement située, elle bénéficie d’une proximité immédiate avec la douane de Mon-Idée, les commerces et le centre-ville. Vous profiterez d’une emprise au sol de 100 m², offrant un beau potentiel pour concrétiser votre projet immobilier. Le terrain est entièrement viabilisé. Il est vendu avec un permis d’aménager déjà validé, vous permettant de démarrer vos démarches rapidement et en toute sérénité. Terrain libre de constructeur. Honoraires à la charge du vendeur. Bien non soumis au DPE Les informations sur les risques auxquels ce bien est exposé, sont disponibles sur le site Géorisques : www.georisques.gouv.fr Une opportunité à ne pas manquer sur un secteur recherché.
Caractéristiques du bien
-
Accessibilité
- Accès PMR
-
Environnement
- Exposition SUD-EST
LOCALISATION DU BIEN
Quartier Ouest à Ville-la-Grand
Géorisque
Informations financières
A propos du prix
Prix de vente

Calcul de vos mensualités
- Montant emprunté
- Coût des intérêts
-
Coût des intérêts :
93742 €
Achat immobilier sur Ville-la-Grand
