Appartement à vendre 2 pièces • 1 chambre • 44.2 m2 Saint-Jeoire
Prix au m² : 2 351 € / m²
Référence 316
Description du bien
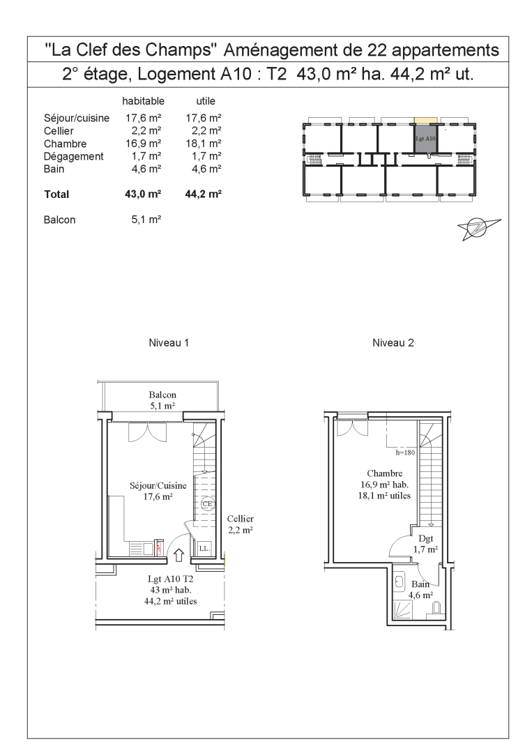
Dans une résidence neuve de 22 appartements située à Saint-Jeoire, découvrez ce T2 en duplex de 44.2 m² à vendre en plateau ou fini. Le bien se compose d’un séjour lumineux avec cuisine ouverte, d’une salle d’eau moderne, et d’une chambre en mezzanine, offrant un espace optimisé et confortable. Vue imprenable sur le Mont-Blanc. Livraison prévue au 4ème trimestre 2025. Une place de parking privative est incluse. Atouts du bien : Appartement neuf de 44.2 m² en duplex ; Place de parking incluses ; Petite copropriété de 22 logements principaux ; Environnement calme, proche des commodités, idéal pour vivre ou investir ; Parfait pour un premier achat, un pied-à-terre ou un investissement locatif. Pour plus d’informations ou pour organiser une visite du site, contactez-nous. D'autres biens sont disponibles dans cette copropriété, demandez-nous ! Ce bien vous intéresse, vous souhaitez davantage de renseignements ou simplement le visiter ? Contactez Erwin SPECK au 06/60/44/20/90 ou par mail à e.speck@gravityimmo.fr. Cette annonce a été rédigée sous la responsabilité éditoriale d'Erwin SPECK (EI) agissant sous le statut d’agent commercial immatriculé au RSAC d'Annecy sous le numéro 979 744 935.'Honoraires d’agence à la charge du vendeur' Bien non soumis au DPE. Bien soumis au statut de la copropriété sans procédure en cours, copropriété de 22 lots principaux. Les informations sur les risques auxquels ce bien est exposé sont disponibles sur le site Géorisques : www.georisques.gouv.fr
Caractéristiques du bien
-
Intérieur
- Surface 44.2 m2
- 1 Chambres
LOCALISATION DU BIEN
Quartier Saint-Jeoire à Saint-Jeoire
Géorisque
Informations financières
A propos du prix
Prix de vente
Prix au m² : 2 351 € / m²

Calcul de vos mensualités
- Montant emprunté
- Coût des intérêts
-
Coût des intérêts :
34168 €