Maison à vendre 5 pièces • 4 chambres • 161 m2 Montlignon
Prix au m² : 3 386 € / m²
Référence 545_ MONTLIGNON
Description du bien
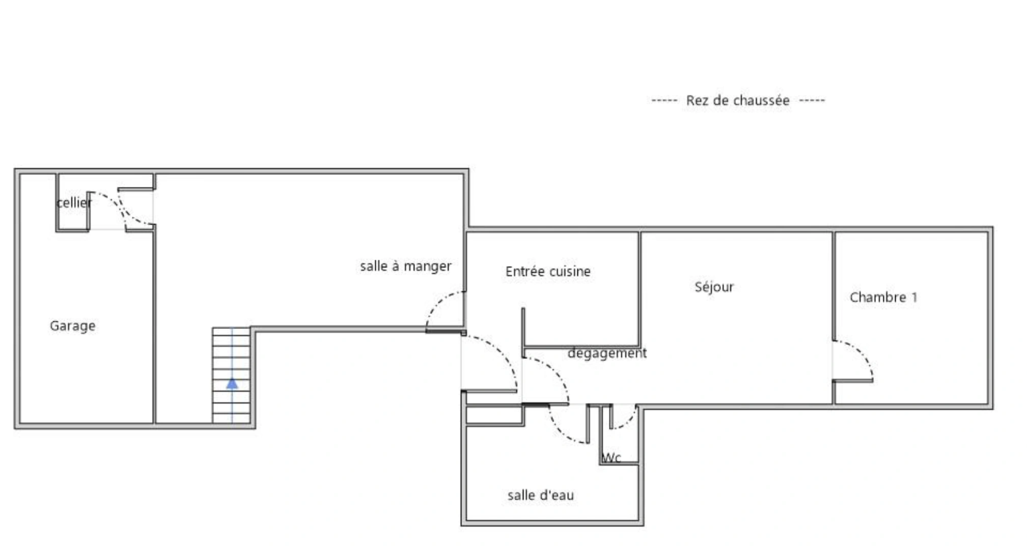
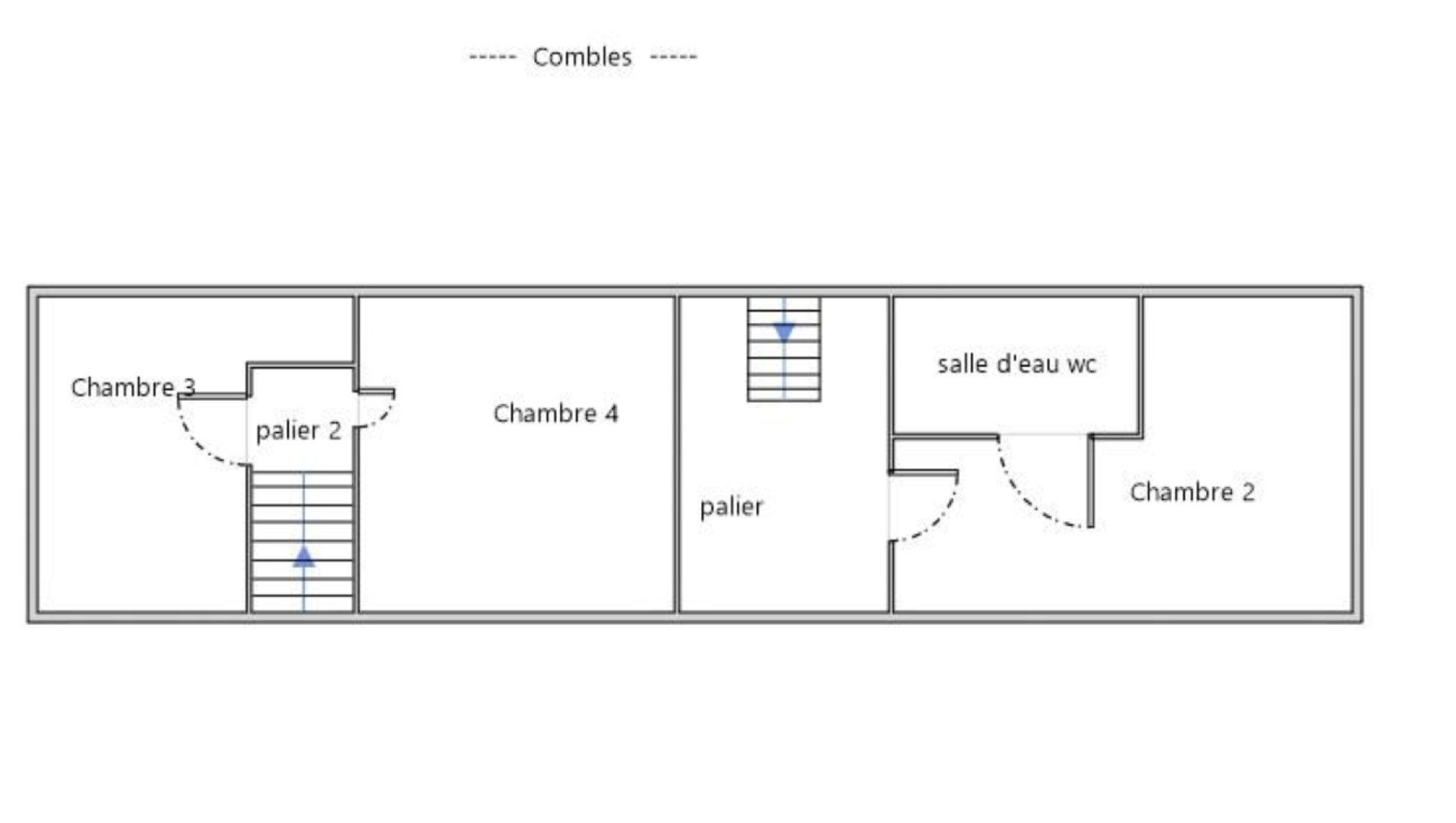
VOVARD IMMOBILIER tel : 01 39 86 06 70 vous propose – A vendre – Maison individuelle F6 – 4 chambres – Montlignon (95) Située à Montlignon, cette maison familiale de 161,59 m² habitables (201,58 m² au sol) est édifiée sur un terrain paysager de plus de 1 100 m², sans vis-à-vis, avec l’essentiel du jardin orienté sur l’arrière. Rez-de-chaussée : entrée, cuisine, salle à manger, vaste salon, une chambre, salle de bains, toilettes et cellier, Étage : une belle mezzanine offrant un espace de vie supplémentaire et desservant une grande chambre, Surplomb du salon : accessible par un autre escalier, deux chambres supplémentaires complètent l’espace nuit. Annexes et stationnements : Grand garage double de 30 m² - Possibilité de stationner 2 véhicules supplémentaires devant la maison. - Jardin paysager, sans vis-à-vis, avec espace familial et convivial. Surface habitable : 161,59 m² (Carrez) - Surface au sol : 201,58 m² - Terrain : env. 1 100 m² Taxe fonciere 2173€ / AN Situation : Cadre résidentiel calme et recherché de Montlignon, proche des écoles
Caractéristiques du bien
-
Intérieur
- Surface 161 m2
- 4 Chambres
- 1 WC
- Cuisine SEMI-EQUIPEE
- Cheminée
-
Extérieur
- Terrasse
-
Surfaces annexes
- Garage
-
Copropriété
- Nombre de lots: 16
-
Environnement
- Exposition SUD-OUEST
- Vue SANS VIS A VIS
Diagnostics énergétiques
Consommation énergétique
Emission de gaz
LOCALISATION DU BIEN
Quartier Montlignon à Montlignon
Géorisque
Informations financières

Calcul de vos mensualités
- Montant emprunté
- Coût des intérêts
-
Coût des intérêts :
179261 €