Terrain à batir à vendre Castellane

65 000 €

Référence  127

decoration todo
INTENDANCE ET SERVICES IMMOBILIERS

22 annonces

Colmars

Description du bien

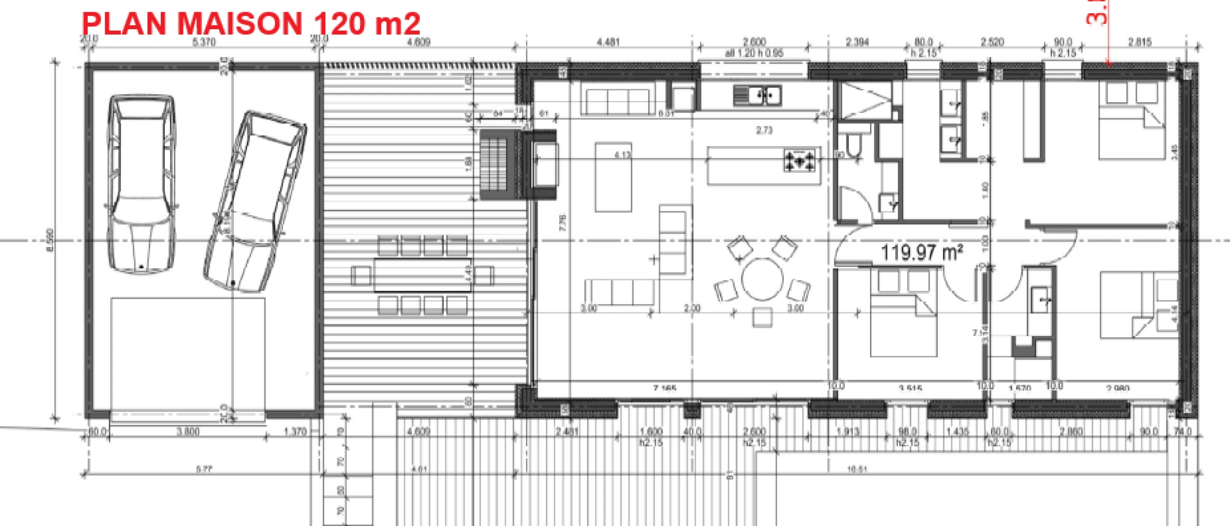
A Castellane, dans un quartier calme, proche de la nature, saisissez une belle opportunité de construire votre maison sur un terrain plat ayant toutes les viabilités en bordure de terrain. Vous bénéficierez d'une surface de 1425m² et 1 263 m2 pour édifier votre chez-soi (parcelle D2593). Vous bénéficiez d'une belle exposition Sud. Le centre ville est à proximité et accessible à pied : 5-10mn dans le quartier Notre Dame à quelques minutes du gymnase. Castellane est LA commune aux Portes des Gorges du Verdon et vous propose toutes les activités pour résider à l'année ou profiter en résidence secondaire des nombreuses activités de pleine nature du Parc du Verdon. Deux permis de construire sont valides sur ce terrain : soit 120 m2 avec garage et 4 chambres, soit 75m2 avec 3 chambres et garage La construction sera à démarrer dans le délai du permis de construire soit avant le 26/10/2027 pour 120 m2 ou janvier 2028 pour le 75m2.

Afficher plus Afficher moins

Caractéristiques du bien

  • Environnement

    • Environnement résidentiel

LOCALISATION DU BIEN

Quartier Castellane à Castellane

Points d'intérêts

Transports

Éducation

Services publics

Commerces & Services

Géorisque

Les informations sur les risques auxquels ce bien est exposé sont disponibles sur le site Géorisques https://www.georisques.gouv.fr

Informations financières

A propos du prix

Prix de vente

65 000 €

Calcul de vos mensualités

Simulez vos prêts en quelques clics !

*Les données de ce simulateur sont indicatives et non contractuelles. Calcul hors assurance et frais de garantie.

Vos mensualités
223 € / mois
  • Montant emprunté
  • Coût des intérêts
  • Coût des intérêts :

    21380
    (d’après le taux d’intérêt annuel moyen : 3.3 %)
decoration
INTENDANCE ET SERVICES IMMOBILIERS

22 annonces

Colmars

Ce bien vous intéresse ?
*
*
*
*
*
*