property

Maison à vendre 4 pièces • 3 chambres • 90 m2

244 241 €

Maison à vendre 4 pièces • 3 chambres • 90 m2 Saint-Lizier

244 241 €

Prix au m² : 2 714 € / m²

Référence  51827

decoration todo
Sic Habitat vvv

1236 annonces

Tonneins

Description du bien

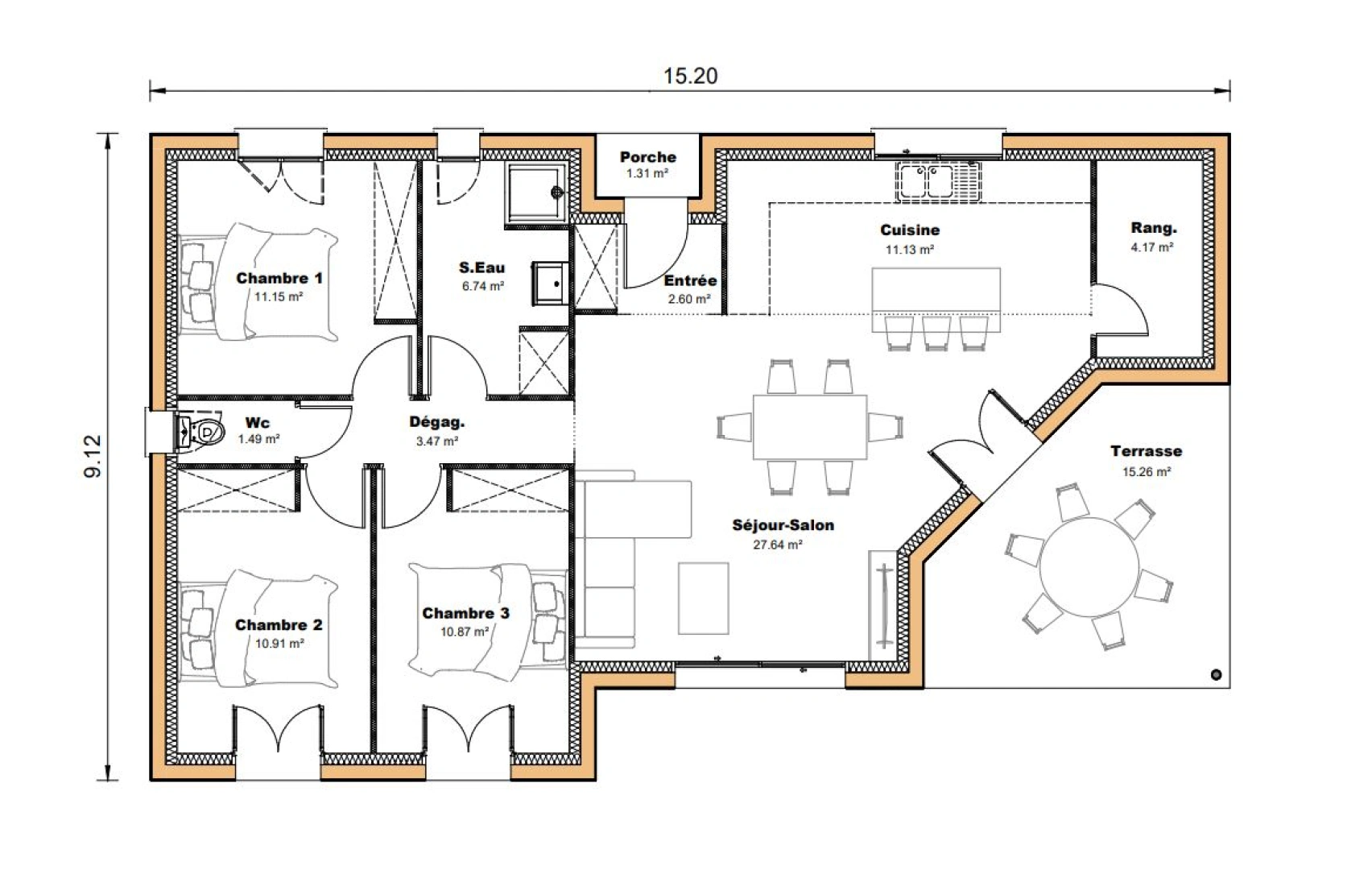
Projet idéal investisseur ou résidence secondaire au cœur des PyrénéesLaissez vous séduire par un environnement paisible à la montagne avec une multitude d'activité en toute saison !Randonnés, VTT, ski, parapente et bien d'autres saurons vous convaincre de venir vous ressourcer dans la région.Terrain de 1 535 m², situé au pied des montagnes des Pyrénées sur la charmante commune de Saint Lizier avec vue, que Maisons Sic vous présente grâce à l'un de nos partenaires fonciers.Vous pourrez, par exemple, y faire construire une maison bois de 90 m² agencée comme suit : entrée avec porche et rangement, espace de vie de 31m², ouvert sur une cuisine de 8m² ,une salle de bains, deux jolies chambres de 11m² avec rangements, une superbe suite parentale avec dressing et sale d'eau de 22m² et un cellier de 5m² (climatisation, prestations modifiables au besoin). Pour un prix de 244 241 euros (frais de notaire et branchements COMPRIS*).Maisons SIC, présent depuis plus de 50 ans dans la construction de maison individuelle, vous propose un accompagnement total pour votre projet de vie.Plan personnalisable et prestations ajustable à toute vos envies !Renseignements auprès de Julie NEGOL - Maisons SIC agence de Noé au O6 75 09 50 67.* Cette annonce concerne un terrain vendu au prix de 27 000 euros, une maison vendue au prix de 184 756 euros (hors finitions) aux normes RE2020; les frais de notaire s'élèvent à 3 585 euros + 28 900 euros de frais annexes (taxe d'aménagement, terrassement, raccordement...).Ce terrain est vendu directement par un partenaire sans entremise du constructeur Maisons Sic.

Afficher plus Afficher moins

Caractéristiques du bien

  • Intérieur

    • Surface 90 m2
    • 3 Chambres

LOCALISATION DU BIEN

Quartier Saint-Lizier à Saint-Lizier

Points d'intérêts

Transports

Éducation

Services publics

Commerces & Services

Géorisque

Les informations sur les risques auxquels ce bien est exposé sont disponibles sur le site Géorisques https://www.georisques.gouv.fr

Informations financières

A propos du prix

Prix de vente

244 241 €

Prix au m² : 2 714 € / m²

Calcul de vos mensualités

Simulez vos prêts en quelques clics !

*Les données de ce simulateur sont indicatives et non contractuelles. Calcul hors assurance et frais de garantie.

Vos mensualités
838 € / mois
  • Montant emprunté
  • Coût des intérêts
  • Coût des intérêts :

    80336
    (d’après le taux d’intérêt annuel moyen : 3.3 %)
decoration
Sic Habitat vvv

1236 annonces

Tonneins

Ce bien vous intéresse ?
*
*
*
*
*
*