property

Maison à vendre 4 pièces • 3 chambres • 96 m2

262 060 €

Maison à vendre 4 pièces • 3 chambres • 96 m2 Montjoie-en-Couserans

262 060 €

Prix au m² : 2 730 € / m²

Référence  53815

decoration todo
Sic Habitat vvv

1236 annonces

Tonneins

Description du bien

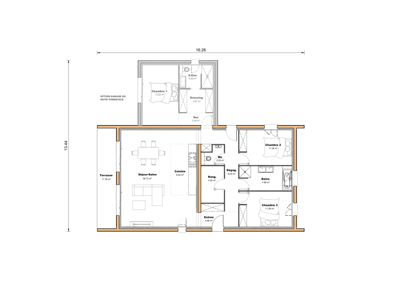
EXCLUSIVITE SUR LE SECTEURMaison neuve à construireTerrain d'exception de 1 500 m², viabilisé, situé sur les hauteurs de Montjoie en Couserans, que Maisons Sic vous présente grâce à l'un de nos partenaires fonciers.Vous pourrez, par exemple, y faire construire une maison de plain pied de 96 m² agencée comme suit : entrée avec porche, terrasse couverte de 12m², espace de vie de 37m², ouvert sur une cuisine de 8m², un cellier de 5m², salle de bains équipée et deux jolies chambres de 11m² avec rangement option additionnel pour une suite parental possible (chauffage gainable, prestations de qualité). Pour un prix de 262 060 euros (frais de notaire et branchements COMPRIS*).Maisons SIC, présent depuis plus de 50 ans dans la construction de maison individuelle, vous propose un accompagnement total pour votre projet de vie.Plan personnalisable et prestations ajustable à toute vos envies !Renseignements auprès de Julie NEGOL - Maisons SIC agence de Noé au O6 75 09 50 67.* Cette annonce concerne un terrain vendu au prix de 35 000 euros, une maison vendue au prix de 200 000 euros (hors finitions) aux normes RE2020; les frais de notaire s'élèvent à 4 160 euros + 22 900 euros de frais annexes (taxe d'aménagement, terrassement, raccordement...).Ce terrain est vendu directement par un partenaire sans entremise du constructeur Maisons Sic.

Afficher plus Afficher moins

Caractéristiques du bien

  • Intérieur

    • Surface 96 m2
    • 3 Chambres

LOCALISATION DU BIEN

Quartier Montjoie-en-Couserans à Montjoie-en-Couserans

Points d'intérêts

Transports

Éducation

Services publics

Commerces & Services

Géorisque

Les informations sur les risques auxquels ce bien est exposé sont disponibles sur le site Géorisques https://www.georisques.gouv.fr

Informations financières

A propos du prix

Prix de vente

262 060 €

Prix au m² : 2 730 € / m²

Calcul de vos mensualités

Simulez vos prêts en quelques clics !

*Les données de ce simulateur sont indicatives et non contractuelles. Calcul hors assurance et frais de garantie.

Vos mensualités
899 € / mois
  • Montant emprunté
  • Coût des intérêts
  • Coût des intérêts :

    86197
    (d’après le taux d’intérêt annuel moyen : 3.3 %)
decoration
Sic Habitat vvv

1236 annonces

Tonneins

Ce bien vous intéresse ?
*
*
*
*
*
*