property

Maison à vendre 5 pièces • 4 chambres • 110 m2

357 975 €

Maison à vendre 5 pièces • 4 chambres • 110 m2 Montjoie-en-Couserans

357 975 €

Prix au m² : 3 255 € / m²

Référence  52633

decoration todo
Sic Habitat vvv

1236 annonces

Tonneins

Description du bien

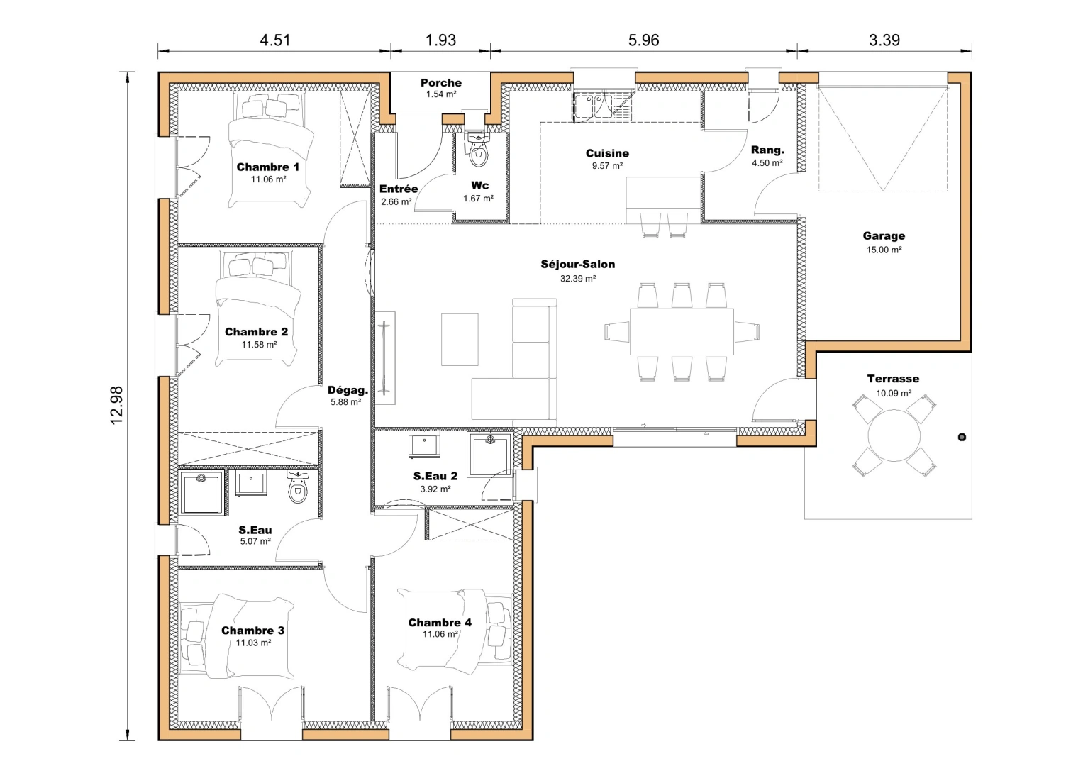
EXCLUSIVITE SUR LE SECTEURMaison neuve à construireTerrain d'exception de 6 500 m², divisible, situé sur les hauteurs de Montjoie en Couserans, que Maisons Sic vous présente grâce à l'un de nos partenaires fonciers.Profitez d'un grand terrain pour construire une ou deux maisons, multiples possibilités. Possibilités d'acheter qu'une partie de la parcelle.Vous pourrez, par exemple, y faire construire une maison bois de plain pied de 110 m² agencée comme suit : entrée avec porche, terrasse couverte de 10m², espace de vie de 32m², ouvert sur une cuisine de 9m², salle de bains équipée, trois jolies chambres de 11m² avec rangement, une superbe suite parentale de 15m² et un cellier de 4m² (chauffage gainable, prestations de qualité). Pour un prix de 357 975 euros (frais de notaire et branchements COMPRIS*).Maisons SIC, présent depuis plus de 50 ans dans la construction de maison individuelle, vous propose un accompagnement total pour votre projet de vie.Plan personnalisable et prestations ajustable à toute vos envies !Renseignements auprès de Julie NEGOL - Maisons SIC agence de Noé au O6 75 09 50 67.* Cette annonce concerne un terrain vendu au prix de 120 000 euros, une maison vendue au prix de 205 000 euros (hors finitions) aux normes RE2020; les frais de notaire s'élèvent à 10 075 euros + 22 900 euros de frais annexes (taxe d'aménagement, terrassement, raccordement...).Ce terrain est vendu directement par un partenaire sans entremise du constructeur Maisons Sic.

Afficher plus Afficher moins

Caractéristiques du bien

  • Intérieur

    • Surface 110 m2
    • 4 Chambres

LOCALISATION DU BIEN

Quartier Montjoie-en-Couserans à Montjoie-en-Couserans

Points d'intérêts

Transports

Éducation

Services publics

Commerces & Services

Géorisque

Les informations sur les risques auxquels ce bien est exposé sont disponibles sur le site Géorisques https://www.georisques.gouv.fr

Informations financières

A propos du prix

Prix de vente

357 975 €

Prix au m² : 3 255 € / m²

Calcul de vos mensualités

Simulez vos prêts en quelques clics !

*Les données de ce simulateur sont indicatives et non contractuelles. Calcul hors assurance et frais de garantie.

Vos mensualités
1228 € / mois
  • Montant emprunté
  • Coût des intérêts
  • Coût des intérêts :

    117745
    (d’après le taux d’intérêt annuel moyen : 3.3 %)
decoration
Sic Habitat vvv

1236 annonces

Tonneins

Ce bien vous intéresse ?
*
*
*
*
*
*