Maison à vendre 4 pièces • 3 chambres • 105 m2 Saint-Girons
Prix au m² : 2 778 € / m²
Référence 51885
Description du bien
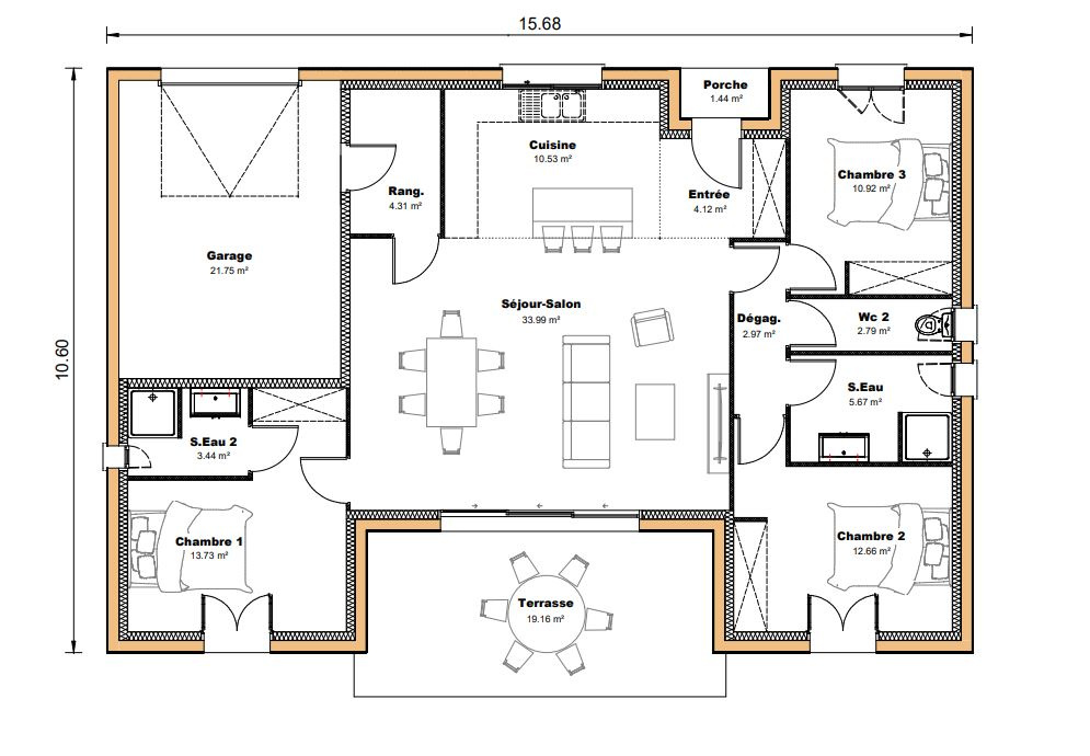
Maison neuve à construireTerrain de 2 433 m², situé sur les hauteurs de Saint Girons dans le quartier calme et résidentiel avec une vue imprenable, que Maisons Sic vous présente grâce à l'un de nos partenaires fonciers.Vous pourrez, par exemple, y faire construire une maison de plain pied de 105 m² agencée comme suit : garage de 22m², entrée avec porche et rangement, espace de vie de 34m², ouvert sur une cuisine de 10m², salle de bains équipée, deux jolies chambres de 11 et 12m² avec rangement, une superbe suite parentale avec salle de bain et rangement de 17m²et un cellier de 4m² (chauffage gainable, prestations de qualité). Pour un prix de 291 679 euros (frais de notaire et branchements COMPRIS*).Maisons SIC, présent depuis plus de 50 ans dans la construction de maison individuelle, vous propose un accompagnement total pour votre projet de vie.Plan personnalisable et prestations ajustable à toute vos envies !Renseignements auprès de Julie NEGOL - Maisons SIC agence de Noé au O6 75 09 50 67.* Cette annonce concerne un terrain vendu au prix de 72 000 euros, une maison vendue au prix de 190 000 euros (hors finitions) aux normes RE2020; les frais de notaire s'élèvent à 6 779 euros + 22 900 euros de frais annexes (taxe d'aménagement, terrassement, raccordement...).Ce terrain est vendu directement par un partenaire sans entremise du constructeur Maisons Sic.
Caractéristiques du bien
-
Intérieur
- Surface 105 m2
- 3 Chambres
LOCALISATION DU BIEN
Quartier Rive Droite à Saint-Girons
Géorisque
Informations financières
A propos du prix
Prix de vente
Prix au m² : 2 778 € / m²

Calcul de vos mensualités
- Montant emprunté
- Coût des intérêts
-
Coût des intérêts :
95939 €