property

Appartement à vendre 2 pièces • 1 chambre • 38 m2

215 000 €

Appartement à vendre 2 pièces • 1 chambre • 38 m2 Marseille 07

215 000 €

Prix au m² : 5 658 € / m²

Référence  1217

decoration todo
Côte et Ville

114 annonces

Description du bien

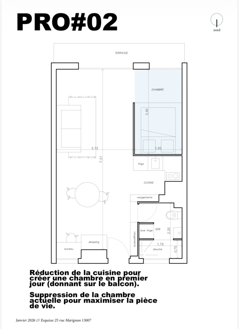
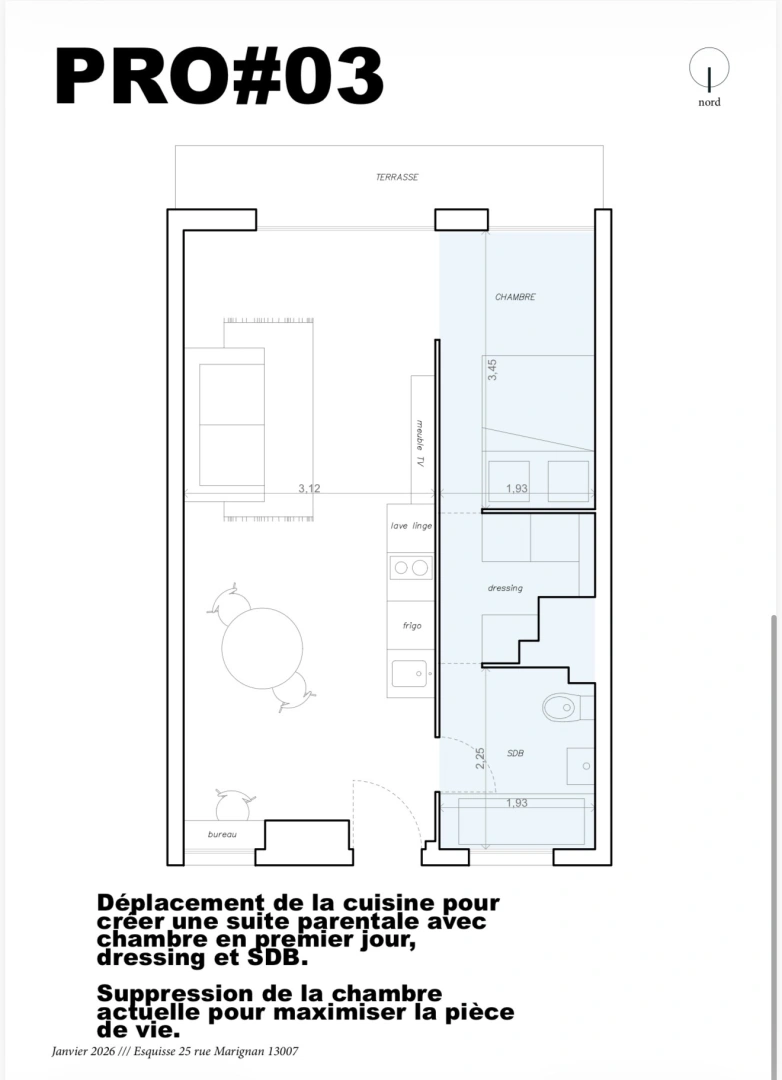
ENDOUME – SAINT-VICTOR – VUE NOTRE-DAME Au 25 rue Marignan, dans l’un des quartiers les plus prisés de Marseille, Saint-Victor, proche de toutes commoditées, commerces, découvrez ce Type 2 de 38 m² au 3? étage avec ascenseur d’un bel immeuble parfaitement entretenu. L’appartement est exposé plein Sud, baigné de lumière tout au long de la journée et s’ouvre sur un grand balcon offrant une vue dégagée exceptionnelle sur Notre-Dame de la Garde, dans un calme absolu. À rénover, ce bien offre une toile blanche idéale pour créer un appartement à votre image, avec un potentiel de valorisation évident dans un secteur en pleine évolution. Nous vous mettons plusieurs possibilités d'aménagements en photos. Les atouts: Vue emblématique sur Notre-Dame de la Garde Exposition plein Sud Grand balcon ensoleillé Étage élevé Calme total Cave en annexe Immeuble de qualité avec ascenseur Quartier recherché et vivant Idéal premier achat ou investissement locatif . Visites 7/7 avec Thibault CiprianI 06.50.111.444

Afficher plus Afficher moins

Caractéristiques du bien

  • Intérieur

    • Surface 38 m2
    • 1 Chambres
    • 1 WC
    • 1 Salle de bain/eau
  • Extérieur

    • Terrasse
  • Surfaces annexes

    • Etage 3
    • Bâtiment de 5 étages
  • Environnement

    • Exposition SUD

Diagnostics énergétiques

Consommation énergétique

Emission de gaz

LOCALISATION DU BIEN

Quartier Saint-Victor à Marseille 07

Points d'intérêts

Transports

Éducation

Services publics

Commerces & Services

Géorisque

Les informations sur les risques auxquels ce bien est exposé sont disponibles sur le site Géorisques https://www.georisques.gouv.fr

Informations financières

A propos du prix

Prix de vente

215 000 €

Prix au m² : 5 658 € / m²

Calcul de vos mensualités

Simulez vos prêts en quelques clics !

*Les données de ce simulateur sont indicatives et non contractuelles. Calcul hors assurance et frais de garantie.

Vos mensualités
737 € / mois
  • Montant emprunté
  • Coût des intérêts
  • Coût des intérêts :

    70718
    (d’après le taux d’intérêt annuel moyen : 3.3 %)
Côte et Ville

114 annonces

Ce bien vous intéresse ?
*
*
*
*
*
*