property

Appartement à vendre 7 pièces • 6 chambres • 156 m2

483 000 €

Appartement à vendre 7 pièces • 6 chambres • 156 m2 Aix-en-Provence

483 000 €

Prix au m² : 3 097 € / m²

Référence  2891

decoration todo
CG Immobilier AIX

46 annonces

Aix-en-Provence

Description du bien

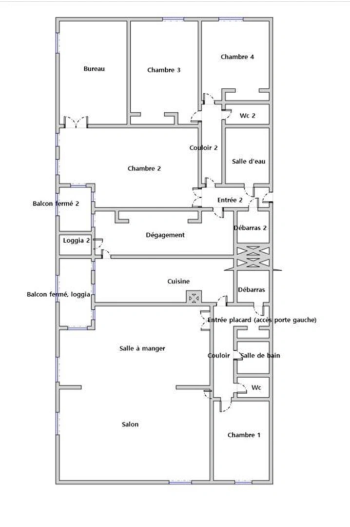
Aix en Provence, à 20 minutes à pied du centre-ville, dans une résidence sécurisée, un spacieux appartement avec une vue dégagée exposé Plein Sud, à rafraîchir, situé au dernier étage avec ascenseur. Il secompose d'un grand séjour lumineux, d'une cuisine séparée avec loggia, de 5 à 6 chambres, 2 salles de d'eau, 2 wc indépendant et de nombreux rangements. L'appartement comprend 2 lots de coproriété, offrant la possibilité de créer 2 appartements distincts. Proximité commerces, gare routière et Pasino. 2 caves + box fermé charges/ans: 5.287€

Afficher plus Afficher moins

Caractéristiques du bien

  • Intérieur

    • Surface 156 m2
    • 6 Chambres
    • 2 WC
    • Cuisine EQUIPEE
  • Extérieur

    • 2 balcon
  • Surfaces annexes

    • Etage 4
    • Bâtiment de 4 étages
    • Garage
    • Cave
  • Copropriété

    • ANCIEN
    • Nombre de lots: 282
  • Environnement

    • Exposition SUD
    • Vue Dégagée
    • Environnement Au calme

Diagnostics énergétiques

Consommation énergétique

Emission de gaz

LOCALISATION DU BIEN

Quartier Ouest 1 à Aix-en-Provence

Points d'intérêts

Transports

Éducation

Services publics

Commerces & Services

Géorisque

Les informations sur les risques auxquels ce bien est exposé sont disponibles sur le site Géorisques https://www.georisques.gouv.fr

Informations financières

A propos du prix

Prix de vente

483 000 €

Prix au m² : 3 097 € / m²

  • Charge de copropriété
    440 € / an

    Montant annuel de la quote-part du budget prévisionnel des dépenses courantes.

  • Taxe foncière
    1 861 € / an

Calcul de vos mensualités

Simulez vos prêts en quelques clics !

*Les données de ce simulateur sont indicatives et non contractuelles. Calcul hors assurance et frais de garantie.

Vos mensualités
1657 € / mois
  • Montant emprunté
  • Coût des intérêts
  • Coût des intérêts :

    158868
    (d’après le taux d’intérêt annuel moyen : 3.3 %)
decoration
CG Immobilier AIX

46 annonces

Aix-en-Provence

Ce bien vous intéresse ?
*
*
*
*
*
*