Terrain à batir à vendre Creully

75 000 €

Référence  20

decoration todo
Partelios Habitat

131 annonces

Saint-Contest

Description du bien

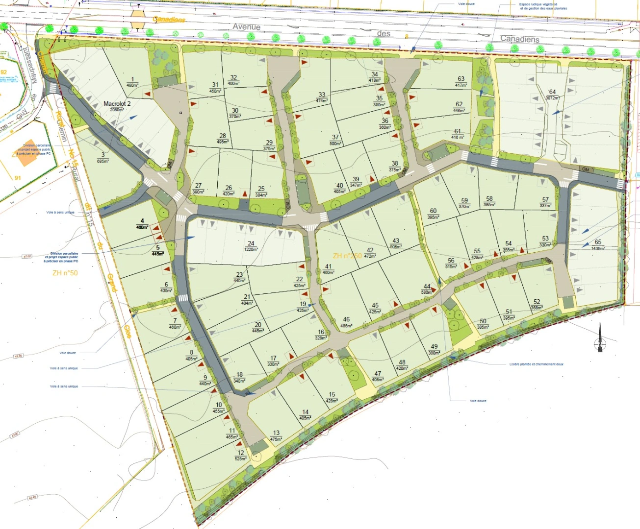
Plus que quelques lots disponibles dans ce lotissement ! Situé dans le lotissement « Le Grand Clos », découvrez ce terrain à bâtir de 445 m² (parcelle n°20), avec libre choix du constructeur. Un cadre de vie idéal Profitez d’un environnement verdoyant et résidentiel, au cœur d’une commune à taille humaine, parfaite pour les familles. Localisation privilégiée À 15 min de Bayeux À 20 min de Caen Accès rapide via la D6 et la N13 Informations pratiques Viabilisation en cours Permis de construire déposable à partir de septembre 2026 Creully-sur-Seulles offre le parfait équilibre entre calme et proximité des grands axes. Ne manquez pas cette opportunité ! Contactez-nous pour plus d’informations.

Afficher plus Afficher moins

LOCALISATION DU BIEN

Quartier Creully sur Seulles à Creully

Points d'intérêts

Transports

Éducation

Services publics

Commerces & Services

Géorisque

Les informations sur les risques auxquels ce bien est exposé sont disponibles sur le site Géorisques https://www.georisques.gouv.fr

Informations financières

A propos du prix

Prix de vente

75 000 €

  • Charge de copropriété
    75 000 € / an

    Montant annuel de la quote-part du budget prévisionnel des dépenses courantes.

Calcul de vos mensualités

Simulez vos prêts en quelques clics !

*Les données de ce simulateur sont indicatives et non contractuelles. Calcul hors assurance et frais de garantie.

Vos mensualités
257 € / mois
  • Montant emprunté
  • Coût des intérêts
  • Coût des intérêts :

    24669
    (d’après le taux d’intérêt annuel moyen : 3.3 %)
decoration
Partelios Habitat

131 annonces

Saint-Contest

Ce bien vous intéresse ?
*
*
*
*
*
*