Maison à vendre 7 pièces • 3 chambres • 148 m2 Rochefort
Prix au m² : 2 235 € / m²
Référence 614
Description du bien
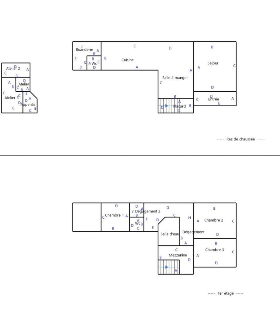
Coup de coeur de l'agence, Située dans une rue à sens unique, au calme tout en étant proche des voies d'accès, vous serez charmé par cette maison de faubourg de 148m2 édifiée sur deux niveaux. Dès l'entrée, vous serez séduit par ses volumes et son ambiance chaleureuse. Au rez-de-chaussée, une salle à manger lumineuse avec cuisine ouverte aménagée (ensemble de 36 m²) donne accès à une terrasse de 20 m² et à un jardin clos. Un salon cosy indépendant de 25 m² avec cheminée à foyer ouvert, un cellier attenant à la cuisine et des toilettes complètent ce niveau. À l'étage, le palier dessert un espace bureau et 3 chambres: une chambre avec mezzanine (14,3 m² habitables et une mezzanine offrant 11 m² de surface utile), une grande chambre avec dressing (15,2 m²), une troisième chambre de 11,5 m², une salle d'eau et des toilettes. En extérieur, profitez d'un jardin clos avec, en fond de parcelle, une dépendance atypique agrémentée d'un château d'eau. Celle-ci se compose d'un atelier d'artiste de 17 m² (dont une pièce chauffée de 12 m² en sus de la surface habitable annoncée), d'un atelier de bricolage et d'un préau. Atouts majeurs : toiture refaite à neuf, chaudière Viessmann récente et le charme indéniable de l'ensemble. Une visite s'impose !
Caractéristiques du bien
-
Intérieur
- Surface 148 m2
- 3 Chambres
- 2 WC
- Cuisine EQUIPEE
-
Extérieur
- Jardin de 263 m2
- Terrasse
-
Environnement
- Exposition EST-OUEST
Diagnostics énergétiques
Consommation énergétique
Emission de gaz
LOCALISATION DU BIEN
Quartier La Philaudrie à Rochefort
Géorisque
Informations financières
A propos du prix
Prix de vente
Prix au m² : 2 235 € / m²
-
Taxe foncière
1 468 € / an

Calcul de vos mensualités
- Montant emprunté
- Coût des intérêts
-
Coût des intérêts :
108780 €