Maison à vendre 4 pièces • 2 chambres • 102 m2 Rochefort
Prix au m² : 2 600 € / m²
Référence 643
Description du bien
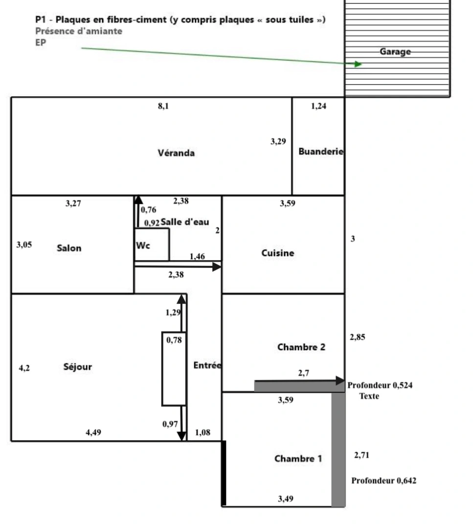
Située dans un environnement paisible, à seulement 20 minutes à pied de l’hypercentre, cette maison des années 70 offre confort et fonctionnalité. Édifiée de plain-pied, elle se compose d’une entrée desservant un séjour-salon avec cheminée de 31m2, une cuisine aménagée séparée, une buanderie et une jolie véranda chauffée de 28 m² exposée Est, idéale pour profiter d’une vue dégagée sur le jardin toute l’année. La partie nuit dispose de 2 chambres avec placard intégré, d’une salle d’eau et de WC indépendants. À l’extérieur, vous profiterez d’un agréable jardin clos et arboré avec une vaste terrasse de 50 m² et une piscine Desjoyaux (liner neuf). Un garage de 18 m² et d'un accès véhicule sur le terrain. Côté prestations : toiture refaite en 2015, électricité aux normes, double vitrage sur l’ensemble des ouvertures, chauffage électrique. Idéal pour ceux qui recherchent la tranquillité sans renoncer à la proximité du centre-ville.
Caractéristiques du bien
-
Intérieur
- Surface 102 m2
- 2 Chambres
- 1 WC
- Cuisine SEMI-EQUIPEE
-
Extérieur
- Piscine
- Jardin de 400 m2
- Terrasse
-
Surfaces annexes
- Garage
-
Environnement
- Exposition EST-OUEST
- Environnement calme et agréable
Diagnostics énergétiques
Consommation énergétique
Emission de gaz
LOCALISATION DU BIEN
Quartier La Philaudrie à Rochefort
Géorisque
Informations financières
A propos du prix
Prix de vente
Prix au m² : 2 600 € / m²
-
Taxe foncière
1 486 € / an

Calcul de vos mensualités
- Montant emprunté
- Coût des intérêts
-
Coût des intérêts :
87229 €