Terrain à vendre Bouhet

60 500 €

Référence  2087

decoration todo
Immobilier Côté Sud

37 annonces

Croix-Chapeau

Description du bien

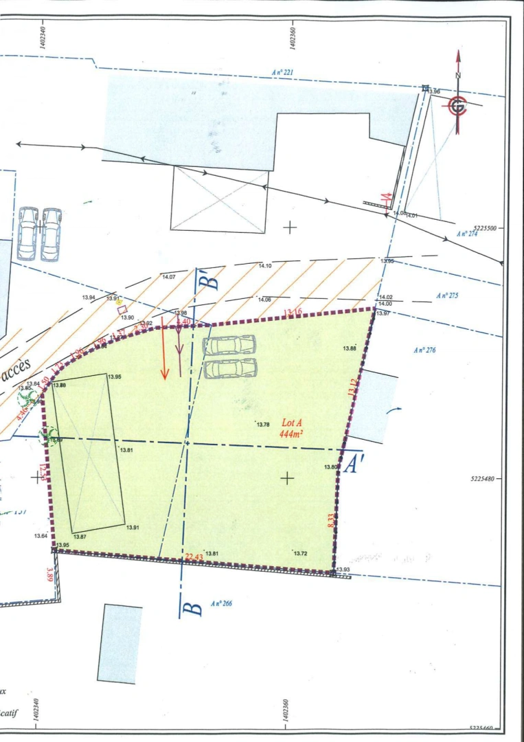
EN EXCLUSIVITE, Terrain à batir de 444 m² hors lotissement, non viabilisé. Environnement calme. Emprise au sol 80 %.

Afficher plus Afficher moins

LOCALISATION DU BIEN

Quartier Bouhet à Bouhet

Points d'intérêts

Transports

Éducation

Services publics

Commerces & Services

Géorisque

Les informations sur les risques auxquels ce bien est exposé sont disponibles sur le site Géorisques https://www.georisques.gouv.fr

Informations financières

A propos du prix

Prix de vente

60 500 €

Calcul de vos mensualités

Simulez vos prêts en quelques clics !

*Les données de ce simulateur sont indicatives et non contractuelles. Calcul hors assurance et frais de garantie.

Vos mensualités
207 € / mois
  • Montant emprunté
  • Coût des intérêts
  • Coût des intérêts :

    19900
    (d’après le taux d’intérêt annuel moyen : 3.3 %)
decoration
Immobilier Côté Sud

37 annonces

Croix-Chapeau

Ce bien vous intéresse ?
*
*
*
*
*
*