property

Appartement à vendre 1 pièce • 30.93 m2

166 100 €

Appartement à vendre 1 pièce • 30.93 m2 Ajaccio

166 100 €

Prix au m² : 5 371 € / m²

Référence  B202

decoration todo
STG IMMOBILIER

67 annonces

Ajaccio

Description du bien

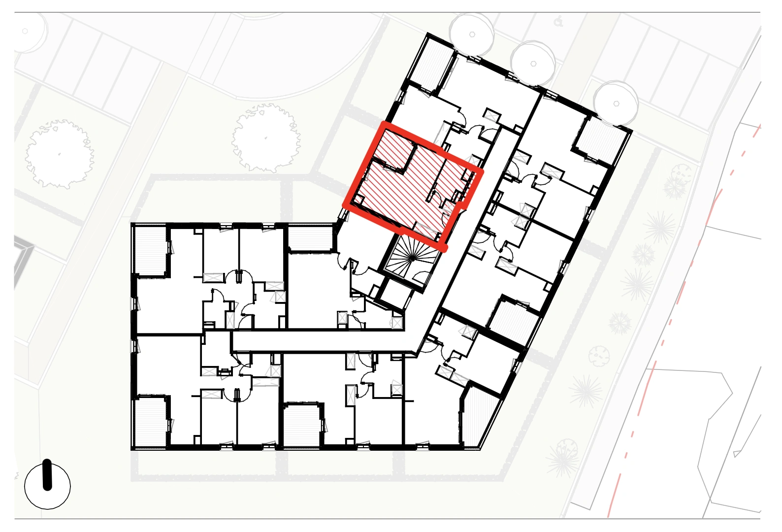
L’agence STG immobilier, spécialiste de l’immobilier à Ajaccio, vous propose à la vente ce studio de 30,93 m2 situé situé à Suartello, en pleine nature tout en étant à promimité des commerces, des écoles et des transports en commun. Cet appartement situé au 1er étage d'une petite résidence se compose d'une entrée avec placard, d'une pièce à vivre avec un coin nuit de 25,34 m2 donnant sur la terrasse de 4,64 m2 et d'une salle d'eau avec wc. Un sationnement complètent ce bien. Prestations :  Climatisation réversible Menuiseries double vitrage Volets électriques Salle d'eau équipée carrelage 60/60 grès peinture ascenseur Stationnement privatif Cet appartement est idéal pour un premier achat ou pour un investissement locatif. Pour plus d’informations, n’hésitez pas à contacter Angela NUNZI au 06 37 42 08 12 ou par mail angela@stgimmobilier.com Les informations sur les risques auxquels ce bien est exposé sont disponibles sur le site Géorisques www.georisques.gouv.fr

Afficher plus Afficher moins

Caractéristiques du bien

  • Intérieur

    • Surface 30.93 m2
    • 1 WC
    • Climatisation
  • Extérieur

    • Terrasse
  • Surfaces annexes

    • Etage 1
  • Copropriété

    • NEUF
  • Accessibilité

    • Accès PMR
  • Environnement

    • Exposition OUEST

LOCALISATION DU BIEN

Quartier Mezzavia à Ajaccio

Points d'intérêts

Transports

Éducation

Services publics

Commerces & Services

Géorisque

Les informations sur les risques auxquels ce bien est exposé sont disponibles sur le site Géorisques https://www.georisques.gouv.fr

Informations financières

A propos du prix

Prix de vente

166 100 €

Prix au m² : 5 371 € / m²

Calcul de vos mensualités

Simulez vos prêts en quelques clics !

*Les données de ce simulateur sont indicatives et non contractuelles. Calcul hors assurance et frais de garantie.

Vos mensualités
570 € / mois
  • Montant emprunté
  • Coût des intérêts
  • Coût des intérêts :

    54633
    (d’après le taux d’intérêt annuel moyen : 3.3 %)
decoration
STG IMMOBILIER

67 annonces

Ajaccio

Ce bien vous intéresse ?
*
*
*
*
*
*