Villa à vendre 4 pièces • 3 chambres • 137 m2 Sari-Solenzara
Prix au m² : 6 059 € / m²
Référence LP-3492
Description du bien
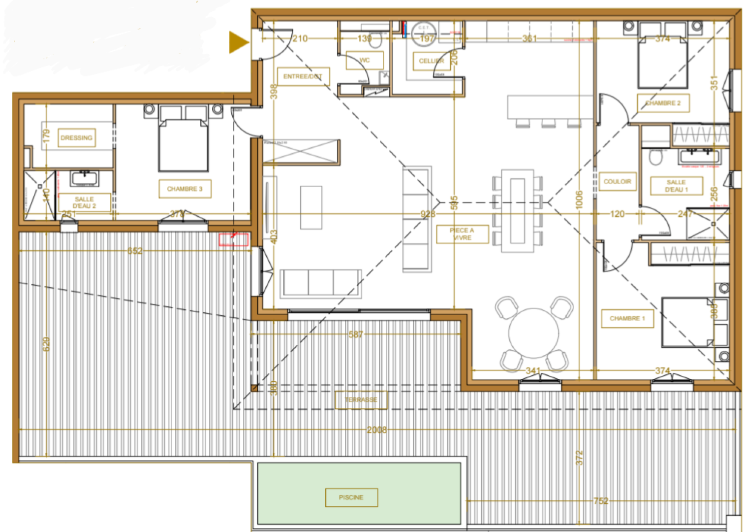
Sur les hauteurs de la côte des nacres de Solenzara, à 200 mètres du port des commerces et des plages, cette très luxueuse villa T4 de toit en rooftop au dernier étage (R+3) d'un immeuble très chic et moderne offrira une vue panoramique sur la mer et le port avec terrasse panoramique de 92m² et piscine à débordement. 3 places de parking incluses et cuisine sur mesure d'ébéniste offerte. Configuration modulable en T3 et aménagement sur mesure possible. Possibilité de garage boxe. Cette villa de toit en rooftop en vente est intégralement pensée en prestations extraordinaires dernier cri, normes RT2012. Les sols interieurs seront en travertin 60x40 et les extérieurs en dalles sur plots soit 60x40 soit 60x60. La porte d'entrée est une porte blindée à 12 points. Toutes les chambres seront équipées de dressings, éventuellement aménageables en suite parentales et donneront sur les terrasses, face à la mer et au port sans aucune mitoyenneté. Le plan d'aménagement est un exemple, mais il est intégralement personnalisable. Pour conserver un style traditionnel typique Corse, les fenêtres sont des ouvrants à la française, avec des volets en alu électrique. La salle d'eau elle est pensée en douche à l'italienne, avec cumulus thermodynamique (système de pompe à chaleur), miroir led, et double vasque. Les gardes corps des terrasses seront complètement en alu, ce qui n'occulte pas la vue et assure une sensation très vertigineuse. Les éclairages seront en spots led, possibilité d'installation domotique télécommandée depuis les mobiles. La résidence implantée dans le maquis sauvage et parfumé de Solenzara et à 200 mètres sur port des commerces et des plages sera intégralement arborée d'essences locales (lavandes, cyprès, pins...) pour garantir une sensation traditionnelle et des fragrances d'exception dans ce joli cocon de luxe. Ce type de logement est parfait pour accueillir une famille, en résidence secondaire ou en résidence locative. Pour ce qui est du rendement locatif, il est estimé à partir de 23 000€ par an en location à l'année, et 47 000€ par an en location temporaire. Pour visiter cette villa ou découvrir la résidence, votre agence immobilière TEAM MARSEILLE PRADO-EUROMED se tient à votre disposition. Contact immédiat : Mme Paccioni, 06 35 96 88 98 lilas.paccioni@prado-euromed.com rsac d'Ajaccio 917563439 Les informations concernant les risques liés à ce bien sont disponibles sur georisques.gouv.fr.- Présentation d'une pièce d'identité requise selon l'article L.561.5 du Code Monétaire et Financier pour l'organisation de la visite.
Caractéristiques du bien
-
Intérieur
- Surface 137 m2
- 3 Chambres
-
Extérieur
- Piscine
-
Environnement
- Exposition EST
- Vue Mer
- Environnement Maquis, mer
Diagnostics énergétiques
Consommation énergétique
Emission de gaz
LOCALISATION DU BIEN
Quartier Sari-Solenzara à Sari-Solenzara
Géorisque
Informations financières
A propos du prix
Prix de vente
Prix au m² : 6 059 € / m²

Calcul de vos mensualités
- Montant emprunté
- Coût des intérêts
-
Coût des intérêts :
273003 €