property

Terrain à vendre 7 pièces • 4 chambres • 205 m2

159 000 €

exclusivité

Terrain à vendre 7 pièces • 4 chambres • 205 m2 Beaune

159 000 €

Prix au m² : 776 € / m²

Référence  4609-4

decoration todo
Charles Damidot Immobilier

27 annonces

Dijon

Description du bien

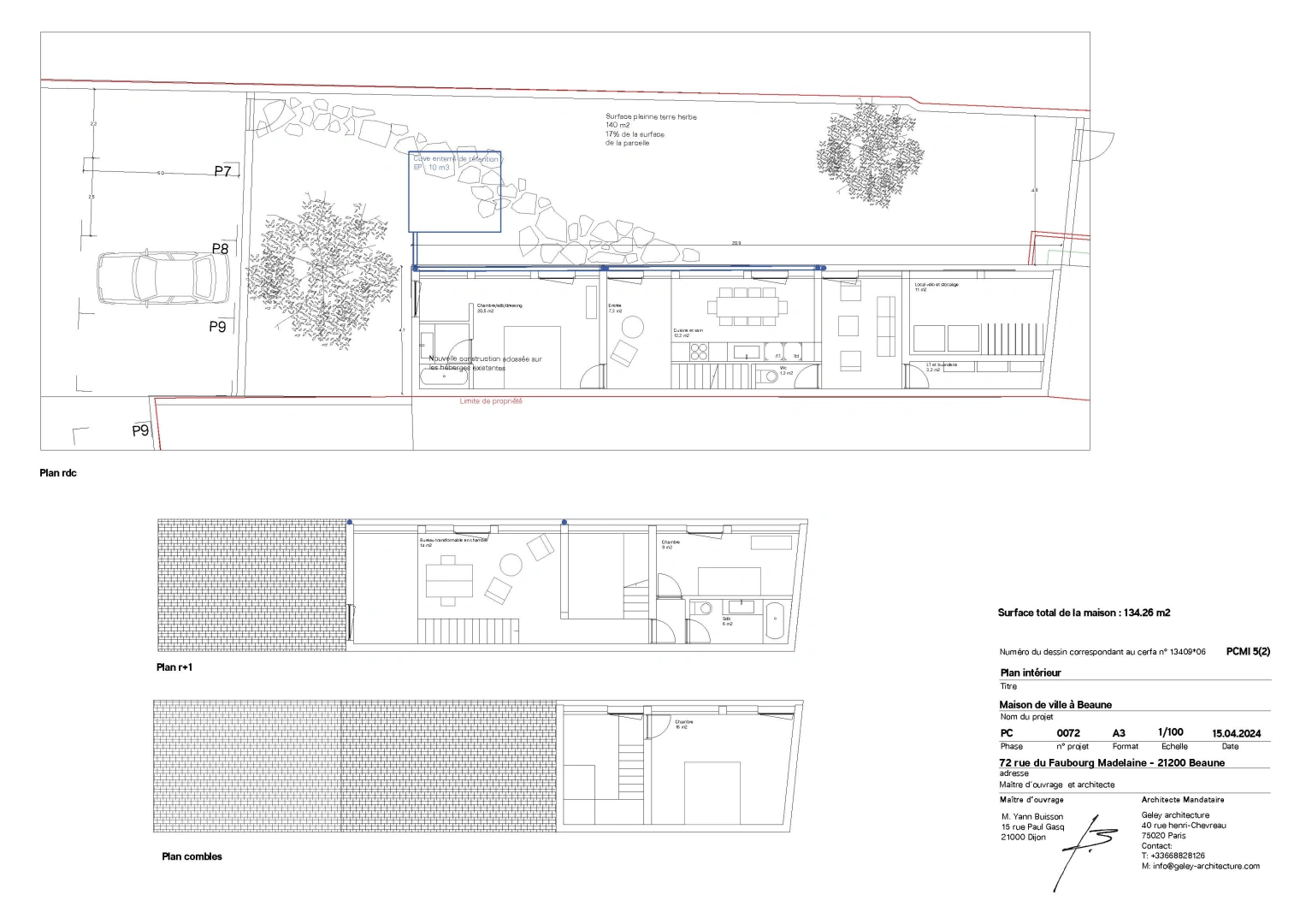
Beaune, à proximité immédiate de la Place Madeleine, terrain à vendre d’une superficie d’environ 236 m², bénéficiant d’un permis de construire purgé de tout recours. Ce projet, conçu par l’architecte parisien Jean- Baptiste Geley, prévoit la réalisation d’une maison contemporaine d’environ 135 m² habitables.bordé par des murs en pierres Elle se compose d’une entrée ouvrant sur un vaste salon-séjour avec cuisine ouverte, prolongé par un jardin exposé sud-ouest, d’une suite parentale de plain-pied avec salle d’eau et dressing, ainsi que d’une buanderie. À l’étage, deux chambres et une salle de bains ; au dernier niveau, une chambre avec sa salle d’eau. L’ensemble est complété par deux places de stationnement. Terrain viabilisé, libre de constructeur, avec possibilité d’accompagnement par l’architecte pour la réalisation du projet. Dossier complet à l'agence n'hesitez pas a conter Mr Damidot au 06.08.85.71.81

Afficher plus Afficher moins

Caractéristiques du bien

  • Intérieur

    • Surface 205 m2
    • 4 Chambres
    • 2 WC
    • 1 Salle de bain/eau
  • Extérieur

    • Terrasse
  • Surfaces annexes

    • Grenier
    • Garage
  • Services supplémentaires

    • Alarme
  • Environnement

    • Exposition SUD
    • Vue sur vieux fontaine
    • Environnement calme et sans vis a vis

LOCALISATION DU BIEN

Quartier Colbert-Gare-Colombière à Beaune

Points d'intérêts

Transports

Éducation

Services publics

Commerces & Services

Géorisque

Les informations sur les risques auxquels ce bien est exposé sont disponibles sur le site Géorisques https://www.georisques.gouv.fr

Informations financières

A propos du prix

Prix de vente

159 000 €

Prix au m² : 776 € / m²

  • Taxe foncière
    2 000 € / an

Calcul de vos mensualités

Simulez vos prêts en quelques clics !

*Les données de ce simulateur sont indicatives et non contractuelles. Calcul hors assurance et frais de garantie.

Vos mensualités
545 € / mois
  • Montant emprunté
  • Coût des intérêts
  • Coût des intérêts :

    52298
    (d’après le taux d’intérêt annuel moyen : 3.3 %)
decoration
Charles Damidot Immobilier

27 annonces

Dijon

Ce bien vous intéresse ?
*
*
*
*
*
*