property

Maison à vendre 8 pièces • 7 chambres • 146 m2

577 500 €

Maison à vendre 8 pièces • 7 chambres • 146 m2 Créhen

577 500 €

Prix au m² : 3 956 € / m²

Référence  14091

decoration todo
Agence de Saint-Jacut-de-la-Mer

17 annonces

Saint-Jacut-de-la-Mer

Description du bien

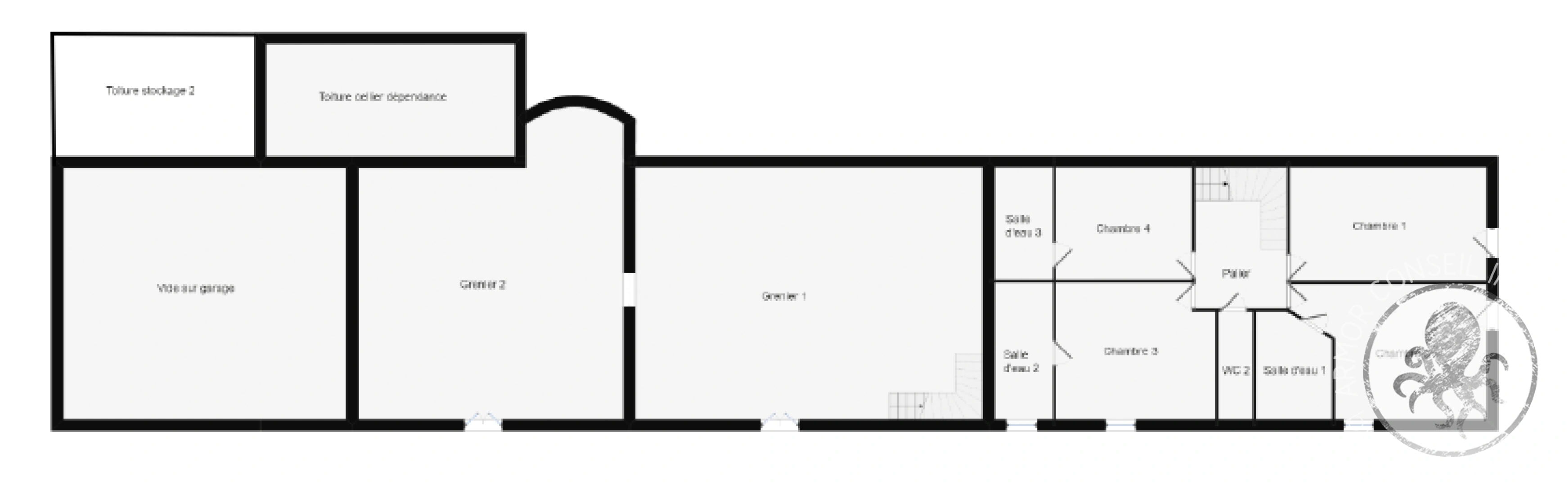
Uniquement à l'agence Armor Conseil Immobilier Geoffrey perrée vous propose cette magnifique longère au calme absolu, à seulement 10 minutes des plages Nichée au bout d’une allée, à l’abri de tout regard et entourée de verdure, cette superbe propriété de caractère offre un cadre de vie exceptionnel : 4 hectares de terrain, environ 300 m² de bâtis et un potentiel unique pour les amoureux d’espace, de nature et de tranquillité. La longère se compose de trois maisons qui communiquent entre elles: La maison principale dispose aujourd’hui de 145 m² entièrement rénovés (DPE C). Au rez-de-chaussée, vous découvrirez une vaste pièce de vie lumineuse, sublimée par un poêle à bois central, idéale pour recevoir et profiter de moments chaleureux en famille. À l’étage, quatre chambre ont été aménagées, chacune disposant de sa propre salle d’eau : un confort rare pour une maison de campagne. À cela, s’ajoutent une seconde maison à rafraîchir, parfaite pour créer un second logement, un atelier, un gîte ou un espace professionnel. Une troisième maison à rénover vient compléter cette longère. Les parties annexes complètent ce bien : dépendances, garage. La toiture a été refaite sur la totalité du bâti, des drains ont été posés, et des prestations de qualité mariant charme de la pierre et confort moderne ont été réalisées. À l’extérieur, l’environnement se compose de 4 hectares de prairies et de bois. Aucun vis-à-vis, une intimité totale Un cadre naturel préservé et harmonieux. Les plages de Saint-Jacut-de-la-Mer et toutes les commodités se trouvent à seulement 10 minutes en voiture, offrant un parfait équilibre entre calme rural et dynamisme littoral. Les informations sur les risques auxquels ce bien est exposé sont disponibles sur le site Géorisques : www.georisques.gouv.fr

Afficher plus Afficher moins

Caractéristiques du bien

  • Intérieur

    • Surface 146 m2
    • 7 Chambres
    • 3 WC
    • Cuisine EQUIPEE
  • Surfaces annexes

    • Garage
  • Environnement

    • Exposition SUD

Diagnostics énergétiques

Consommation énergétique

Emission de gaz

LOCALISATION DU BIEN

Quartier Créhen à Créhen

Points d'intérêts

Transports

Éducation

Services publics

Commerces & Services

Géorisque

Les informations sur les risques auxquels ce bien est exposé sont disponibles sur le site Géorisques https://www.georisques.gouv.fr

Informations financières

A propos du prix

Prix de vente

577 500 €

Prix au m² : 3 956 € / m²

Calcul de vos mensualités

Simulez vos prêts en quelques clics !

*Les données de ce simulateur sont indicatives et non contractuelles. Calcul hors assurance et frais de garantie.

Vos mensualités
1981 € / mois
  • Montant emprunté
  • Coût des intérêts
  • Coût des intérêts :

    189951
    (d’après le taux d’intérêt annuel moyen : 3.3 %)
decoration
Agence de Saint-Jacut-de-la-Mer

17 annonces

Saint-Jacut-de-la-Mer

Ce bien vous intéresse ?
*
*
*
*
*
*