property

Maison à vendre 4 pièces • 3 chambres • 96 m2

194 000 €

Maison à vendre 4 pièces • 3 chambres • 96 m2 Goudelin

194 000 €

Prix au m² : 2 021 € / m²

Référence  242

decoration todo
PRISMO

11 annonces

Plouha

Description du bien

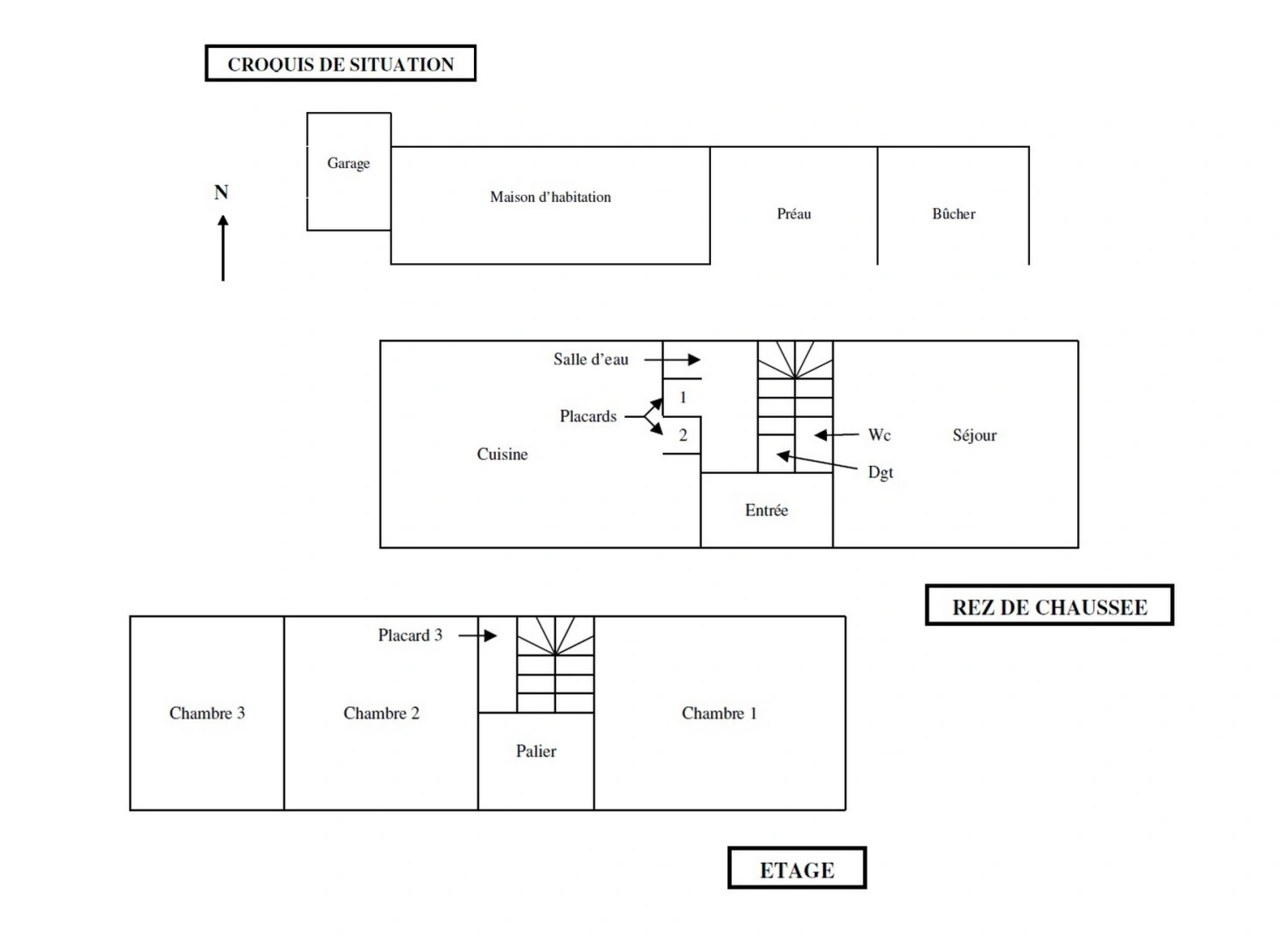
Bien immobilier situé au calme dans un hameau à 2 km du bourg de Goudelin et 4 km du centre de Lanvollon. Il est composé d'une maison en pierre, d'un garage attenant, d'une remise en pierre et un petit plan d'eau au sud du terrain de 3600 m². La maison propose au rez-de-jardin une cuisine de 26 m², une seconde pièce de vie de 20 m² à usage de salon ou chambre, une salle d'eau et un wc. A l'étage, un palier dessert deux chambres et un bureau en enfilade. Le chauffage à circulation d’eau dans des radiateurs est assurée par une chaudière gaz, l’eau chaude sanitaire par un ballon électrique. Des travaux sont à prévoir, notamment des joints de maçonnerie à l’arrière, l’amélioration de la performance énergétique par de l’isolation, et l’assainissement autonome à remettre aux normes. Les informations sur les risques auxquels ce bien est exposé sont disponibles auprès de l'agence et sur le site www.georisques.gouv.fr . Pour toute information ou visite (virtuelle ou sur site), contactez Noël Lefebvre (06.26.66.46.48).

Afficher plus Afficher moins

Caractéristiques du bien

  • Intérieur

    • Surface 96 m2
    • 3 Chambres
    • 1 WC
    • Cuisine EQUIPEE
  • Extérieur

    • Jardin de 3000 m2
  • Surfaces annexes

    • Garage
  • Environnement

    • Exposition SUD
    • Vue Jardin et mare

Diagnostics énergétiques

Consommation énergétique

Emission de gaz

LOCALISATION DU BIEN

Quartier Goudelin à Goudelin

Points d'intérêts

Transports

Éducation

Services publics

Commerces & Services

Géorisque

Les informations sur les risques auxquels ce bien est exposé sont disponibles sur le site Géorisques https://www.georisques.gouv.fr

Informations financières

A propos du prix

Prix de vente

194 000 €

Prix au m² : 2 021 € / m²

Calcul de vos mensualités

Simulez vos prêts en quelques clics !

*Les données de ce simulateur sont indicatives et non contractuelles. Calcul hors assurance et frais de garantie.

Vos mensualités
665 € / mois
  • Montant emprunté
  • Coût des intérêts
  • Coût des intérêts :

    63810
    (d’après le taux d’intérêt annuel moyen : 3.3 %)
decoration
PRISMO

11 annonces

Plouha

Ce bien vous intéresse ?
*
*
*
*
*
*