property

Immeuble à vendre 7 pièces • 142.8 m2

220 000 €

exclusivité

Immeuble à vendre 7 pièces • 142.8 m2 Landerneau

220 000 €

Prix au m² : 1 541 € / m²

Référence  93571

decoration todo
et Sébastien MADEC Thierry

17 annonces

Brest

Description du bien

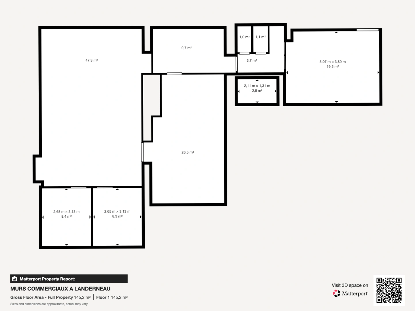
Murs commerciaux dans immeuble de caractère – Centre-ville de Landerneau Adresse : 32 rue de Brest, Landerneau Bâtiment de charme datant de 1816 – Emplacement n°1 BAISSE DE PRIX Opportunité rare sur le marché de Landerneau : découvrez ces murs commerciaux au sein d’un immeuble de caractère, situé en plein cœur du centre-ville Un excellent placement patrimonial avec une rentabilité attractive Description du bien Immeuble ancien en très bon état, construit en 1816 Respect des normes d’accessibilité Local commercial en pied d’immeuble Emplacement premium à forte visibilité, dans une rue dynamique Possibilité d’acquisition avec ou sans locataire Situation locative Locataire en place (bail commercial 3/6/9) depuis le 1er octobre 2023Revenu annuel : 18 960 € CCRentabilité nette : 8 %Taxe foncière : 1 135 € / an, entièrement refacturée au locataire Cet actif permet une sécurisation immédiate des revenus, avec un locataire professionnel déjà en place Atouts majeurs Adresse stratégique en plein centre-ville Forte demande sur le secteur de Landerneau Idéal pour investisseurs, diversification patrimoniale ou emplacement commercial Opportunité d’acquérir le bien libre d’occupation, selon votre projet Valeur patrimoniale pérenne : bâtiment ancien de caractère, parfaitement situé Visite virtuelle disponible Vous souhaitez pré-visualiser le local avant déplacement Je vous accompagne pour découvrir la visite virtuelle sur demande Contact Thierry MADEC – Agent immobilier Expertimo 07 86 39 79 99 Accompagnement investisseurs – Expertise secteur Landerneau & Brest métropole

Afficher plus Afficher moins

Caractéristiques du bien

  • Intérieur

    • Surface 142.8 m2
  • Extérieur

    • Jardin de 100 m2
  • Copropriété

    • Nombre de lots: 10
  • Accessibilité

    • Accès PMR
  • Environnement

    • Exposition SUD
    • Vue sur rue

Diagnostics énergétiques

Consommation énergétique

Emission de gaz

LOCALISATION DU BIEN

Quartier Centre Ville Ouest à Landerneau

Points d'intérêts

Transports

Éducation

Services publics

Commerces & Services

Géorisque

Les informations sur les risques auxquels ce bien est exposé sont disponibles sur le site Géorisques https://www.georisques.gouv.fr

Informations financières

A propos du prix

Prix de vente

220 000 €

Prix au m² : 1 541 € / m²

  • Taxe foncière
    1 135 € / an

Calcul de vos mensualités

Simulez vos prêts en quelques clics !

*Les données de ce simulateur sont indicatives et non contractuelles. Calcul hors assurance et frais de garantie.

Vos mensualités
755 € / mois
  • Montant emprunté
  • Coût des intérêts
  • Coût des intérêts :

    72362
    (d’après le taux d’intérêt annuel moyen : 3.3 %)
decoration
et Sébastien MADEC Thierry

17 annonces

Brest

Ce bien vous intéresse ?
*
*
*
*
*
*