property

Maison à vendre 3 pièces • 2 chambres • 75 m2

205 000 €

Maison à vendre 3 pièces • 2 chambres • 75 m2 Nîmes

205 000 €

Prix au m² : 2 734 € / m²

Référence  5244

decoration todo
ATRIUM

23 annonces

Nîmes

Description du bien

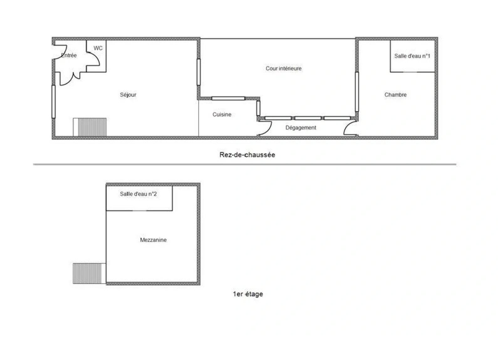
Quartier route de Beaucaire - À deux pas de l’effervescence nîmoise mais à l’abri de son agitation, cette jolie maison de ville T3 d'environ 75m² habitables (80m² au sol) attend son nouveau propriétaire. Ici, le calme et l'ensoleillement sont rois, pas de vis-à-vis pour gâcher vos petits-déjeuners en terrasse ou vos soirées d’été : ~35m² de terrasse privative, baignée de soleil et sans vis-à-vis, vous promettent une intimité rare en ville ! La maison développe un espace de vie optimisé, avec l'essentiel de la surface de plain-pied ou presque. Elle se compose : - Rez-de-chaussée : Une entrée pratique avec WC, puis une grande pièce de vie lumineuse (salon + cuisine ouverte) avec une cheminée. Un couloir dessert une chambre spacieuse, ouverte sur la terrasse, avec sa salle de douche privée. - À l’étage : Une deuxième chambre mansardée, elle aussi dotée de sa propre salle de douche/WC. Maison en bon état, proche des commerces et des transports en communs, prête à accueillir vos projets !

Afficher plus Afficher moins

Caractéristiques du bien

  • Intérieur

    • Surface 75 m2
    • 2 Chambres
    • 1 WC
    • Cuisine SEMI-EQUIPEE
  • Extérieur

    • Terrasse
  • Environnement

    • Exposition EST-OUEST

Diagnostics énergétiques

Consommation énergétique

Emission de gaz

LOCALISATION DU BIEN

Quartier Route de Beaucaire à Nîmes

Points d'intérêts

Transports

Éducation

Services publics

Commerces & Services

Géorisque

Les informations sur les risques auxquels ce bien est exposé sont disponibles sur le site Géorisques https://www.georisques.gouv.fr

Informations financières

A propos du prix

Prix de vente

205 000 €

Prix au m² : 2 734 € / m²

  • Taxe foncière
    1 300 € / an

Calcul de vos mensualités

Simulez vos prêts en quelques clics !

*Les données de ce simulateur sont indicatives et non contractuelles. Calcul hors assurance et frais de garantie.

Vos mensualités
703 € / mois
  • Montant emprunté
  • Coût des intérêts
  • Coût des intérêts :

    67428
    (d’après le taux d’intérêt annuel moyen : 3.3 %)
decoration
ATRIUM

23 annonces

Nîmes

Ce bien vous intéresse ?
*
*
*
*
*
*