property

Maison à vendre 5 pièces • 3 chambres • 130 m2

194 000 €

Maison à vendre 5 pièces • 3 chambres • 130 m2 Vénéjan

194 000 €

Prix au m² : 1 493 € / m²

Référence  0118

decoration todo
GARD TRANSACTIONS IMMOBILIERES

14 annonces

Laudun-l'Ardoise

Description du bien

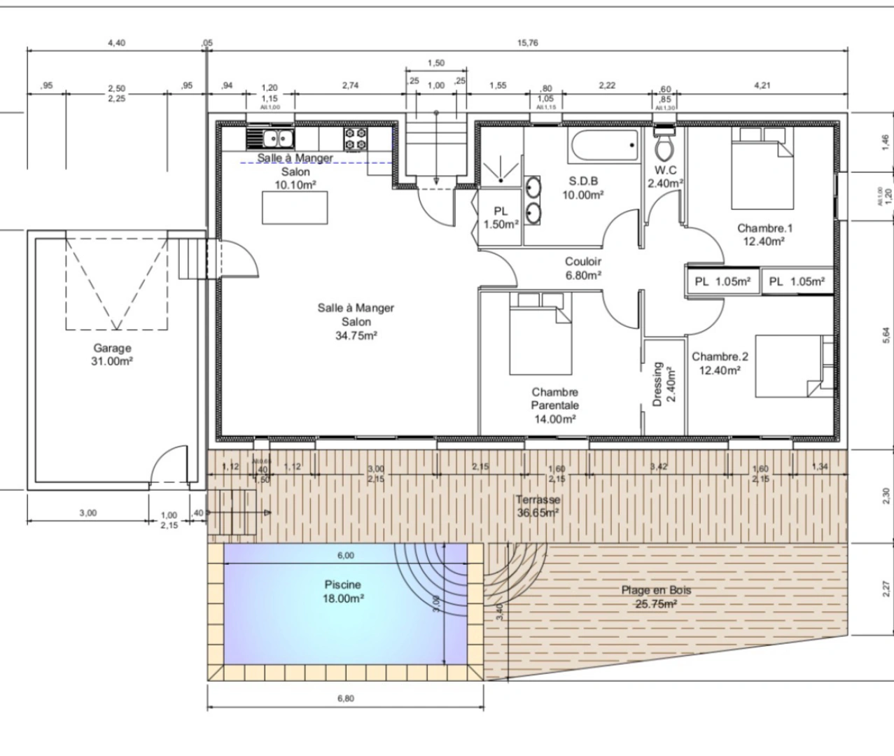
Située sur la commune de Vénéjan, sur une parcelle boisée de 1400m2, cette maison individuelle de plain-pied d'environ 130m2 offre une opportunité rare : finaliser un projet de construction déja bien avancé, selon vos envies.   Édifiée sur un vide sanitaire, la maison bénéficie d'un gros oeuvre déja réalisé en agglos Betotherm, reconnus pour leurs performances en isolation thermique. Le permis prévoit également une piscine et un garage attenant.   Les + :  - Gros oeuvre terminé - Menuiseries incluses dans le prix (à poser) - Réseaux déja existant sur le terrain - Construction en matériaux performants - Libre choix des matèriaux de finitions   Travaux à prévoir :  - Isolation - électricité/plomberie - pose des menuiseries - Assainissement individuel   Ce bien s'adresse à des acquéreurs souhaitant personnaliser leur future maison tout en bénéficiant d'une base de construction déja existante. Un projet idéal pour créer un lieu de vie à votre image !   Les risques auxquels ce bien est exposé sont disponibles sur le site : www.georisques.gouv.fr

Afficher plus Afficher moins

Caractéristiques du bien

  • Intérieur

    • Surface 130 m2
    • 3 Chambres
    • 1 Salle de bain/eau
  • Extérieur

    • Piscine
    • Terrasse
  • Surfaces annexes

    • Garage
  • Environnement

    • Exposition SUD

LOCALISATION DU BIEN

Quartier Vénéjan à Vénéjan

Points d'intérêts

Transports

Éducation

Services publics

Commerces & Services

Géorisque

Les informations sur les risques auxquels ce bien est exposé sont disponibles sur le site Géorisques https://www.georisques.gouv.fr

Informations financières

A propos du prix

Prix de vente

194 000 €

Prix au m² : 1 493 € / m²

Calcul de vos mensualités

Simulez vos prêts en quelques clics !

*Les données de ce simulateur sont indicatives et non contractuelles. Calcul hors assurance et frais de garantie.

Vos mensualités
665 € / mois
  • Montant emprunté
  • Coût des intérêts
  • Coût des intérêts :

    63810
    (d’après le taux d’intérêt annuel moyen : 3.3 %)
decoration
GARD TRANSACTIONS IMMOBILIERES

14 annonces

Laudun-l'Ardoise

Ce bien vous intéresse ?
*
*
*
*
*
*