Terrain à batir à vendre Ners

109 000 €

Référence  2690

decoration todo
A Cote Immobilier Nimes

22 annonces

Nîmes

Description du bien

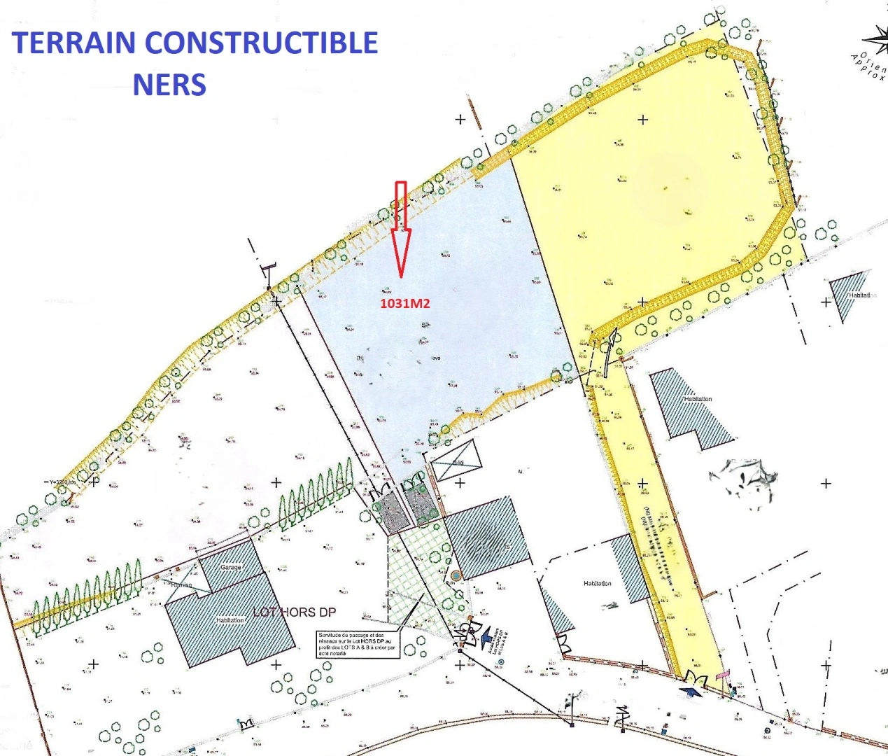
Très beau terrain constructible dominant et plat d'environ 1031m2 situé sur la commune de Ners entre Nimes et Alès. Vous recherchiez l'endroit idéal pour donner la meilleure vie à votre famille, au calme, ne cherchez plus il est là...!!! Facile à construire - Accés terrain bétonné - Raccordé au tout à l'égout - Gaines pour les réseaux en attente.

Afficher plus Afficher moins

Caractéristiques du bien

  • Environnement

    • Exposition NORD-SUD
    • Vue Dégagée
    • Environnement Calme - Campagne

LOCALISATION DU BIEN

Quartier Ners à Ners

Points d'intérêts

Transports

Éducation

Services publics

Commerces & Services

Géorisque

Les informations sur les risques auxquels ce bien est exposé sont disponibles sur le site Géorisques https://www.georisques.gouv.fr

Informations financières

A propos du prix

Prix de vente

109 000 €

Calcul de vos mensualités

Simulez vos prêts en quelques clics !

*Les données de ce simulateur sont indicatives et non contractuelles. Calcul hors assurance et frais de garantie.

Vos mensualités
374 € / mois
  • Montant emprunté
  • Coût des intérêts
  • Coût des intérêts :

    35852
    (d’après le taux d’intérêt annuel moyen : 3.3 %)
decoration
A Cote Immobilier Nimes

22 annonces

Nîmes

Ce bien vous intéresse ?
*
*
*
*
*
*