property

Villa à vendre 9 pièces • 5 chambres • 180 m2

336 000 €

Villa à vendre 9 pièces • 5 chambres • 180 m2 Montclus

336 000 €

Prix au m² : 1 867 € / m²

Référence  20970

decoration todo
Renaissance Immobilier

106 annonces

Barjac

Description du bien

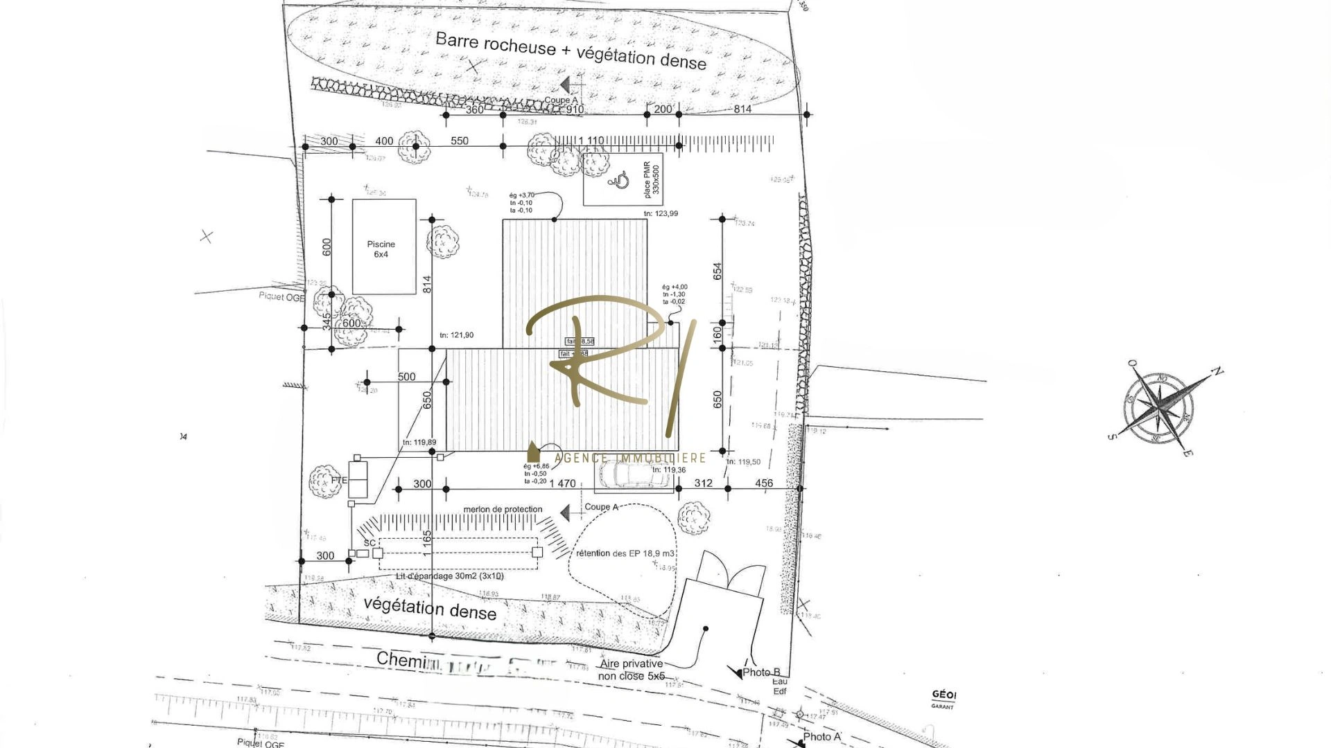
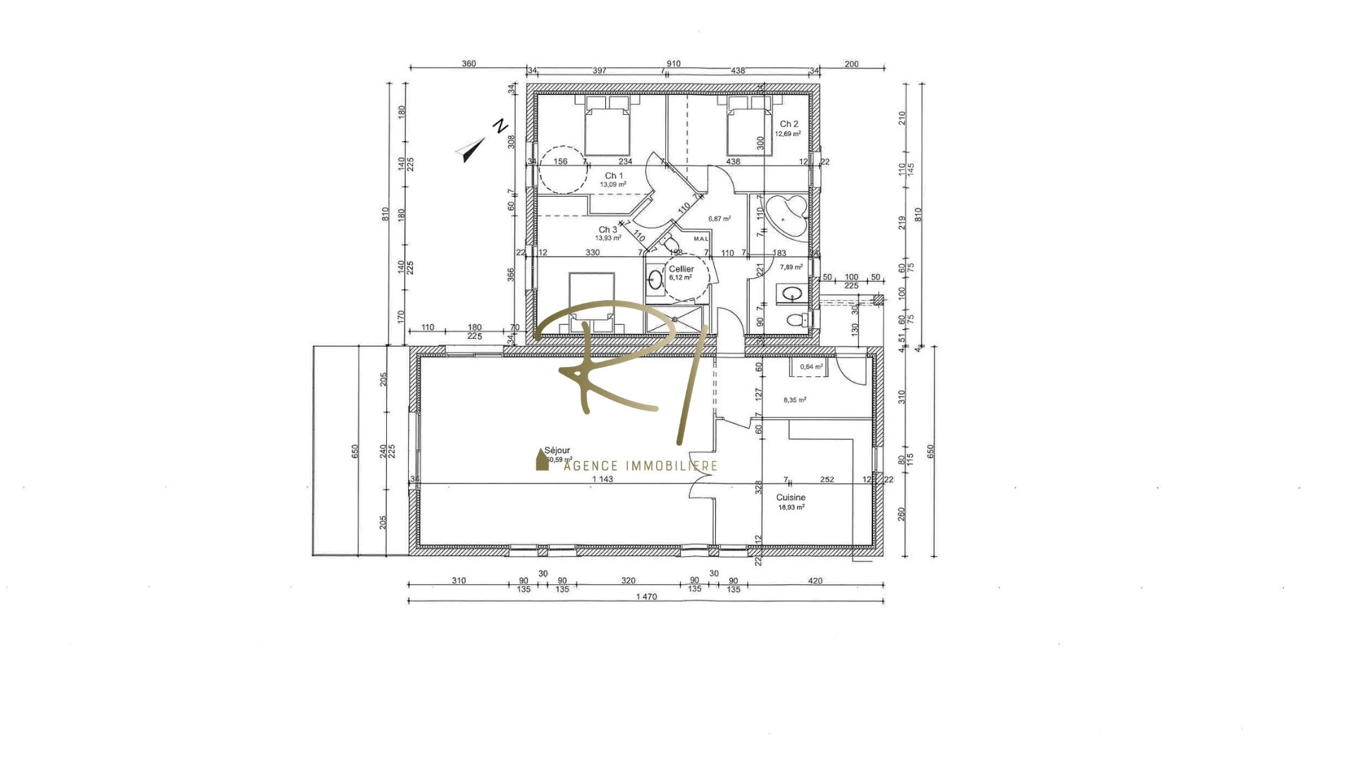
Dans un environnement dégagé, à proximité des commodités ( 10 minutes de Barjac et 10 minutes de goudargues), cette maison d'environ 180 m² habitables, offre un cadre de vie agréable, avec une belle vue dégagée sur la campagne environnante. Au sein de ces 180 m², vous avez la possibilité en rez de jardin de dissocier 63 m² pour créer un rendement locatif ou pour rendre indépendant la reception des amis. À l’étage, vous allez avoir une gande pièce de vie de 63 m², trois chambres, dont 2 qui donnent sur la térasse, 1 salle d'eau avec wc ainsi qu'un toilette indépendant. À l’extérieur, le terrain de plus de 3000m², en pleine nature , peut accueillir une piscine et vous assurez une totale tranquilité. Toute cette description énnoncée est ce qui est prévu dans le permis de construire. Il est évidemment possible d'apporter des modifications car comme indiqué la maison n'est pas terminée. En l'état il reste la toiture et les menuiseries pour qu'elle soit hors d'eau hors d'air. Pour toute information ou visite, contactez Aymard David au 06.50.53.48.33 www.georisques.gouv.fr

Afficher plus Afficher moins

Caractéristiques du bien

  • Intérieur

    • Surface 180 m2
    • 5 Chambres
    • 2 WC
    • 1 Salle de bain/eau
  • Extérieur

    • Jardin de 1975 m2
    • Terrasse
  • Environnement

    • Vue sur la forêt
    • Environnement campagne

LOCALISATION DU BIEN

Quartier Montclus à Montclus

Points d'intérêts

Transports

Éducation

Services publics

Commerces & Services

Géorisque

Les informations sur les risques auxquels ce bien est exposé sont disponibles sur le site Géorisques https://www.georisques.gouv.fr

Informations financières

A propos du prix

Prix de vente

336 000 €

Prix au m² : 1 867 € / m²

Calcul de vos mensualités

Simulez vos prêts en quelques clics !

*Les données de ce simulateur sont indicatives et non contractuelles. Calcul hors assurance et frais de garantie.

Vos mensualités
1152 € / mois
  • Montant emprunté
  • Coût des intérêts
  • Coût des intérêts :

    110517
    (d’après le taux d’intérêt annuel moyen : 3.3 %)
decoration
Renaissance Immobilier

106 annonces

Barjac

Ce bien vous intéresse ?
*
*
*
*
*
*