Maison à vendre 5 pièces • 3 chambres • 138 m2 Cugnaux
Prix au m² : 2 500 € / m²
Référence 1710CB
Description du bien
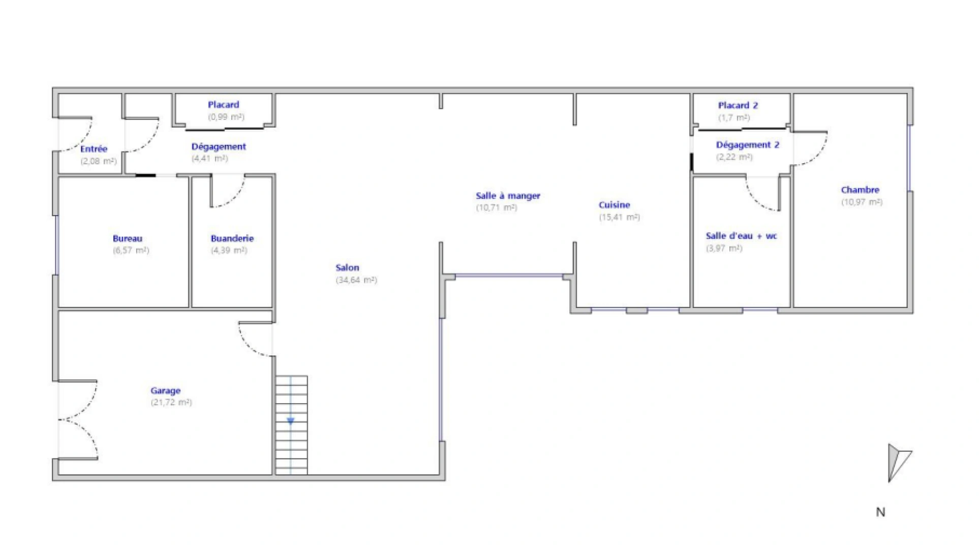
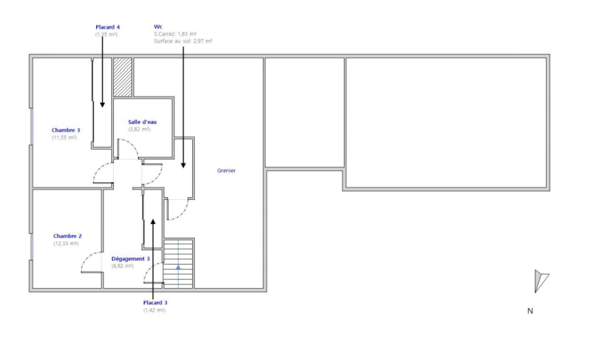
INTEGRAL IMMOBILIER, agence locale Cugnalaise, contact direct Charlotte BLANC : O6.13.87.93.71 CUGNAUX CENTRE VILLE, idéalement située à 400 mètres du L11 (Basso Cambo toutes les 10 minutes) à 220 mètres de la ligne de bus 87 et 321, à 650 mètres de l'école Jean Jaures, charmante maison de ville avec garage et jardin. Au rez de chaussée, grâce à un système ingénieux l'entrée à été isolée (phonique et thermique), puis vous trouverez un bureau de 8m², une buanderie puis une vaste pièce de vie de 60m² comprenannt la cuisine, une chambre de 11m², une salle d'eau et un WC. A l'étage, deux chambres de 12.30 et 11.5 m², un dégagement, une salle d'eau ainsi qu'un WC. Zone de stockage sous comble facile d'accès. Aussi le bien dispose d'un garage de 21m² (travaux necessaires, élargissement de la porte, pour y entrer un véhicule). Exposée au Sud Ouest une terrasse en bois et un charmant jardin, le tout pour 200m² environ, puits et abris. Double vitrage doublé côté rue, volets roulants électriques, chauffage électrique, poêle mixte pellets/bois avec extracteur de chaleur pour l'étage, climatisation réversible récente. Très bon état d'entretien, travaux de toiture récents. Classement énergétique C. Taxe foncière 1500€ environ. Pour une visite et/ou plus d'informations contact Charlotte BLANC au O6.13.87.93.71. Agent commercial pour la SAS Integral Immobilier immatriculée au RSAC de Toulouse sous le N°852.867.977 Villes proches : Toulouse, Frouzins, Villeneuve Tolosane, Muret, Portet sur Garonne, Tournefeuille, Colomiers...
Caractéristiques du bien
-
Intérieur
- Surface 138 m2
- 3 Chambres
- 2 WC
- Climatisation
- Cuisine EQUIPEE
-
Extérieur
- Terrasse
-
Surfaces annexes
- Garage
-
Environnement
- Exposition SUD-OUEST
Diagnostics énergétiques
Consommation énergétique
Emission de gaz
LOCALISATION DU BIEN
Quartier Agora à Cugnaux
Géorisque
Informations financières
A propos du prix
Prix de vente
Prix au m² : 2 500 € / m²
-
Taxe foncière
1 500 € / an

Calcul de vos mensualités
- Montant emprunté
- Coût des intérêts
-
Coût des intérêts :
113477 €