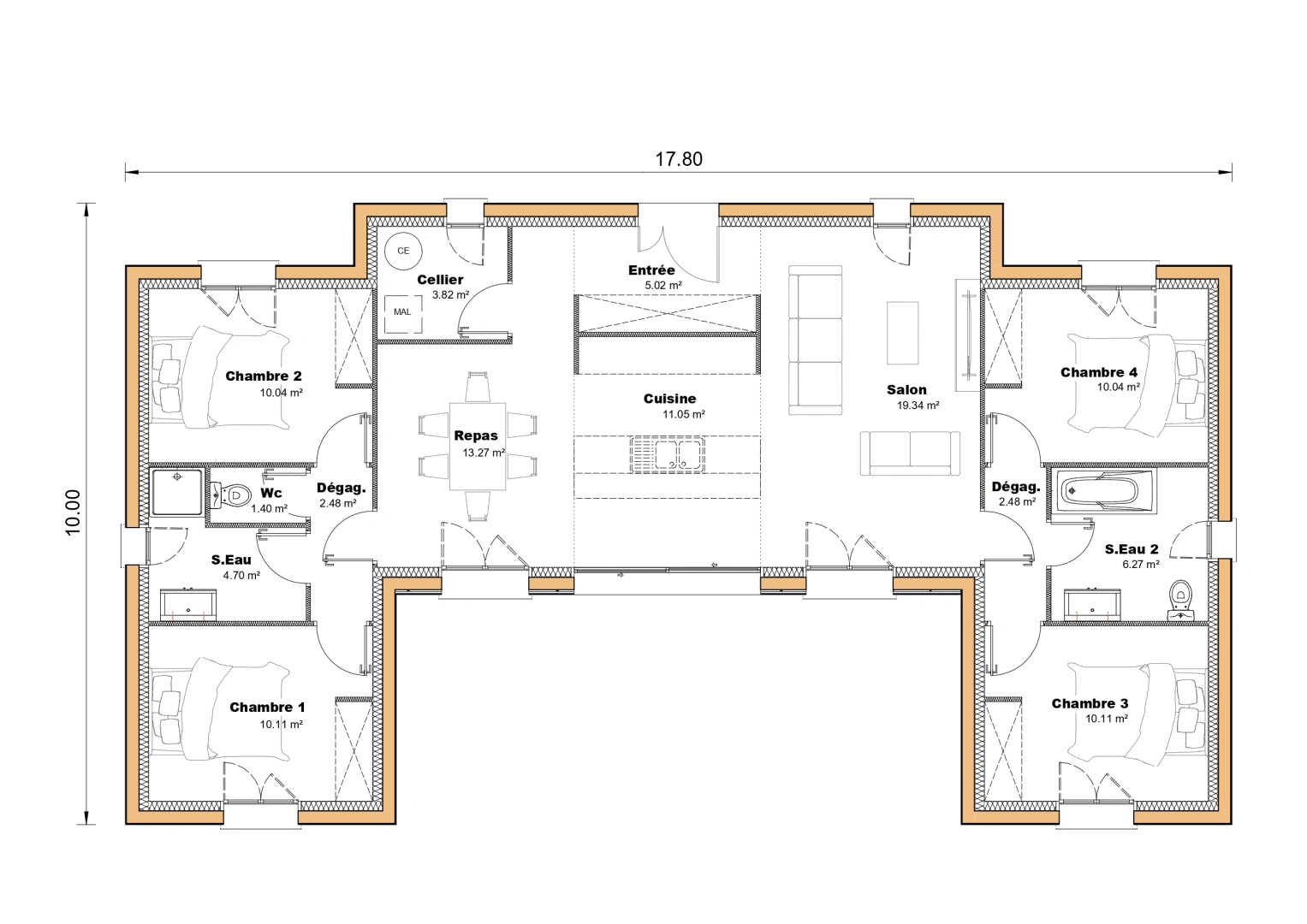
Maison à vendre 5 pièces • 4 chambres • 110 m2 Merville
Prix au m² : 3 966 € / m²
Référence 53898
Description du bien
Faites un choix durable pour l'avenir en construisant avec Maisons SIC.Venez découvrir ce magnifique terrain de 680 m2 situé à Merville.Imaginez vous vivant dans une maison de 110 m², lumineuse, spacieuse et confortable, avec des espaces de vie agréables, une cuisine ouverte, 3 chambres confortables, une ou deux salles de bains équipées.Toutes nos maisons RE2020 sont construites sur mesure, en ossature bois, maçonnées, ou mixtes.Pour un prix total de 436 227 euros ( frais de notaire et branchement compris*).Renseignement auprès de Clara Mages - Maison SIC au O6 66 64 11 12.*Cette annonce concerne un terrain vendu au prix de 145 000 euros, une maison au prix de 260 000 euros ( hors finitions ) aux normes RE2020 ; les frais de notaire s’élèvent à 11 827 euros + 19 400 euros de frais annexes ( taxe d’aménagement, terrassement, raccordements, viabilisation …). Ce terrain est vendu directement par un partenaire sans entremise du constructeur Maisons SIC.
Caractéristiques du bien
-
Intérieur
- Surface 110 m2
- 4 Chambres
LOCALISATION DU BIEN
Quartier Merville à Merville
Géorisque
Informations financières
A propos du prix
Prix de vente
Prix au m² : 3 966 € / m²

Calcul de vos mensualités
- Montant emprunté
- Coût des intérêts
-
Coût des intérêts :
143483 €