property

Appartement à vendre 3 pièces • 2 chambres • 71.11 m2

195 000 €

exclusivité

Appartement à vendre 3 pièces • 2 chambres • 71.11 m2 Toulouse

195 000 €

Prix au m² : 2 743 € / m²

Référence  DP828

decoration todo
D.SY.D Immobilier

21 annonces

Cugnaux

Description du bien

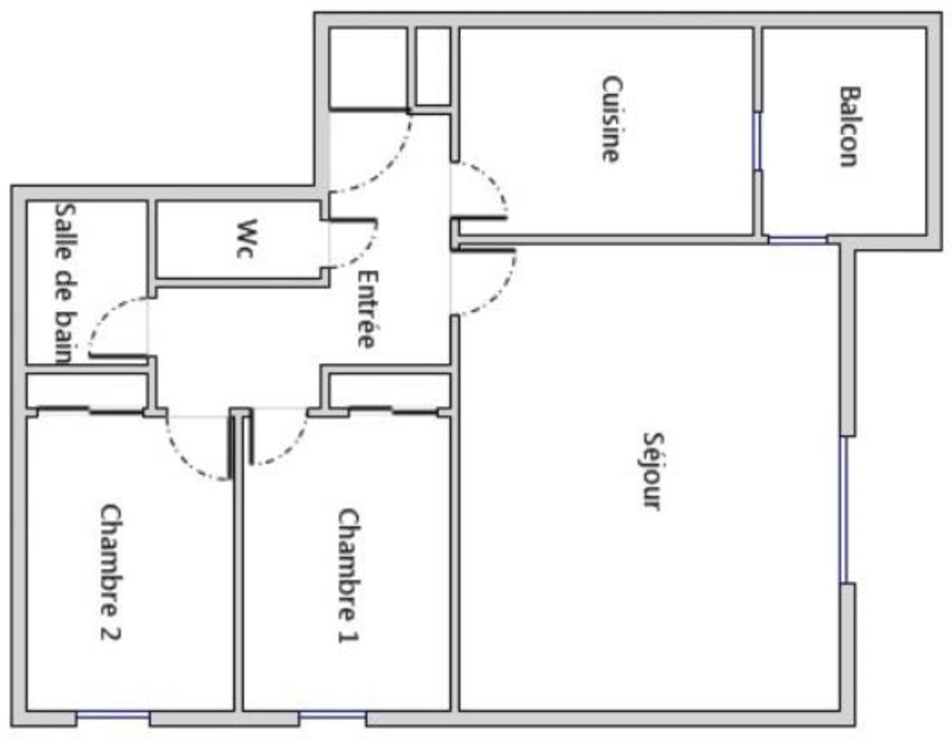
TOULOUSE - ROSERAIE - Entre Bonnefoy et la Rocade - Agréable appartement T3 lumineux, vendu meublé, entièrement rénové, de 71 m² avec balcon, place de parking et cave dans une résidence fermée de 1993. Au premier étage, il est composé d'une entrée, d'un grand Séjour/Salon, d'une Cuisine séparée entièrement équipée (y compris lave linge, lave vaisselle, réfrigérateur ...), deux chambres avec placards, salle de bains et Wc séparé. Chauffage et eau chaude par chaudière gaz individuelle. Il dispose d'une place de parking sécurisée et d'une cave. Pour toute information et organiser une visite contacter l'agence D.SY.D Immobilier

Afficher plus Afficher moins

Caractéristiques du bien

  • Intérieur

    • Surface 71.11 m2
    • 2 Chambres
    • 1 WC
    • Meublé
    • 1 Salle de bain/eau
    • Cuisine EQUIPEE
  • Extérieur

    • 1 balcon
  • Surfaces annexes

    • Etage 1
    • Bâtiment de 3 étages
    • Cave
  • Copropriété

    • ANCIEN
    • Nombre de lots: 450
  • Environnement

    • Exposition SUD-OUEST

Diagnostics énergétiques

Consommation énergétique

Emission de gaz

LOCALISATION DU BIEN

Quartier Roseraie à Toulouse

Points d'intérêts

Transports

Éducation

Services publics

Commerces & Services

Géorisque

Les informations sur les risques auxquels ce bien est exposé sont disponibles sur le site Géorisques https://www.georisques.gouv.fr

Informations financières

A propos du prix

Prix de vente

195 000 €

Prix au m² : 2 743 € / m²

  • Charge de copropriété
    120 € / an

    Montant annuel de la quote-part du budget prévisionnel des dépenses courantes.

  • Taxe foncière
    1 500 € / an

Calcul de vos mensualités

Simulez vos prêts en quelques clics !

*Les données de ce simulateur sont indicatives et non contractuelles. Calcul hors assurance et frais de garantie.

Vos mensualités
669 € / mois
  • Montant emprunté
  • Coût des intérêts
  • Coût des intérêts :

    64139
    (d’après le taux d’intérêt annuel moyen : 3.3 %)
decoration
D.SY.D Immobilier

21 annonces

Cugnaux

Ce bien vous intéresse ?
*
*
*
*
*
*