Maison à vendre 4 pièces • 3 chambres • 106 m2 Eaunes
Prix au m² : 3 300 € / m²
Référence 53785
Description du bien
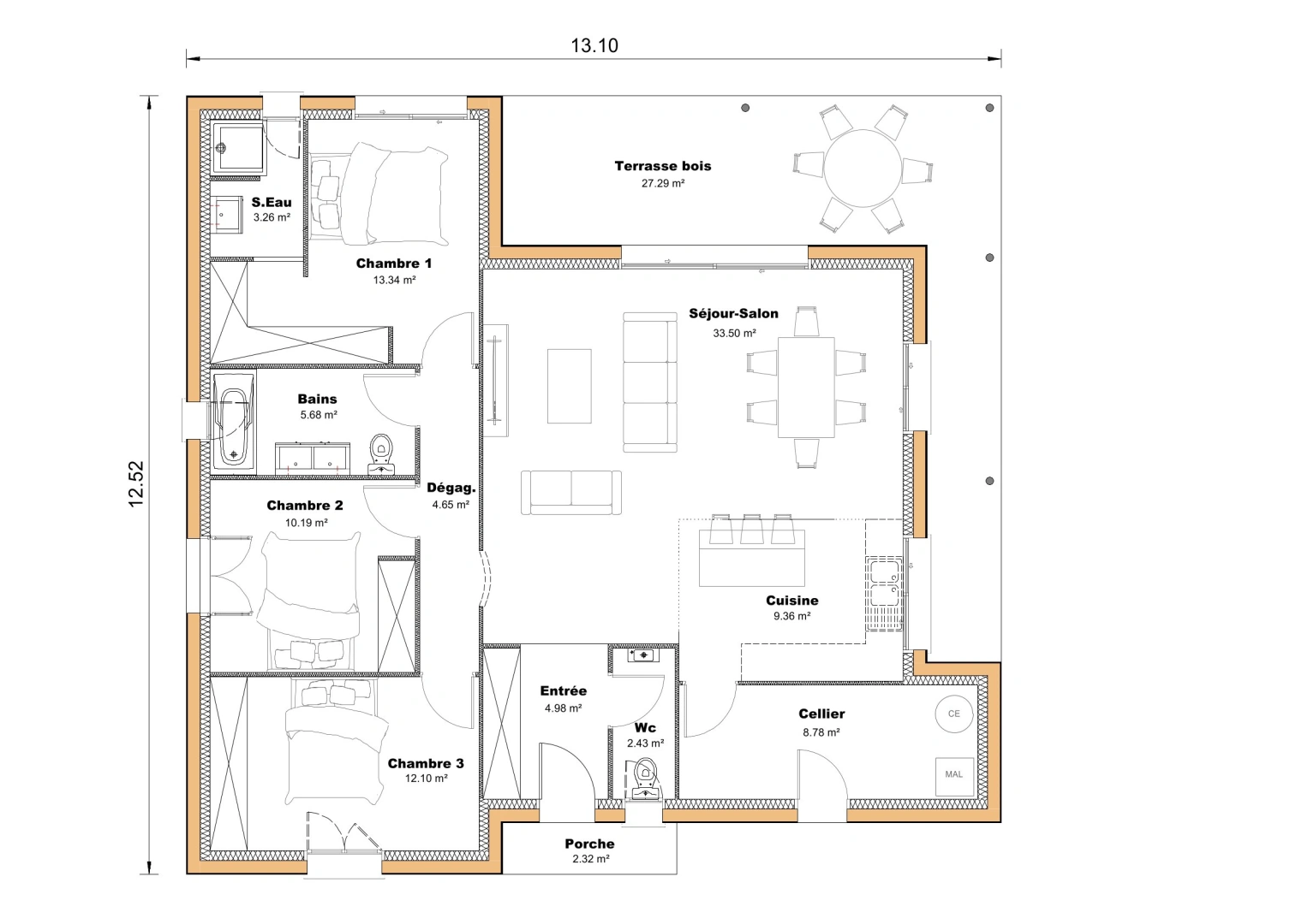
Maison neuve à construireTerrain viabilisé de 576 m², situé sur les hauteurs de Muret, limite d'Eaunes, que Maisons Sic vous présente grâce à l'un de nos partenaires fonciers.Vous pourrez, par exemple, y faire construire une maison de 106m² agencée comme suit : entrée avec rangement, espace de vie de 33m², ouvert sur une cuisine de 9m², grand cellier de 9m², salle de bains équipé, deux jolies chambres de 10 et 12 m² avec rangements et une superbe suite parentale de 17m² avec salle d'eau (chauffage gainable, prestations de qualité). Pour un prix de 349 800 euros (frais de notaire et branchements COMPRIS*).Maisons SIC, présent depuis plus de 50 ans dans la construction de maison individuelle, vous propose un accompagnement total pour votre projet de vie.Plan personnalisable et prestations ajustable à toute vos envies !Renseignements auprès de Julie NEGOL - Maisons SIC agence de Noé au O6 75 09 50 67.* Cette annonce concerne un terrain vendu au prix de 119 900 euros, une maison vendue au prix de 215 000 euros (hors finitions) aux normes RE2020; les frais de notaire sont offerts + 14 900 euros de frais annexes (taxe d'aménagement, terrassement, raccordement...).Ce terrain est vendu directement par un partenaire sans entremise du constructeur Maisons Sic.
Caractéristiques du bien
-
Intérieur
- Surface 106 m2
- 3 Chambres
LOCALISATION DU BIEN
Quartier Eaunes à Eaunes
Géorisque
Informations financières
A propos du prix
Prix de vente
Prix au m² : 3 300 € / m²

Calcul de vos mensualités
- Montant emprunté
- Coût des intérêts
-
Coût des intérêts :
115056 €