Maison à vendre 4 pièces • 3 chambres • 98 m2 Pibrac
Prix au m² : 5 850 € / m²
Référence 53953
Description du bien
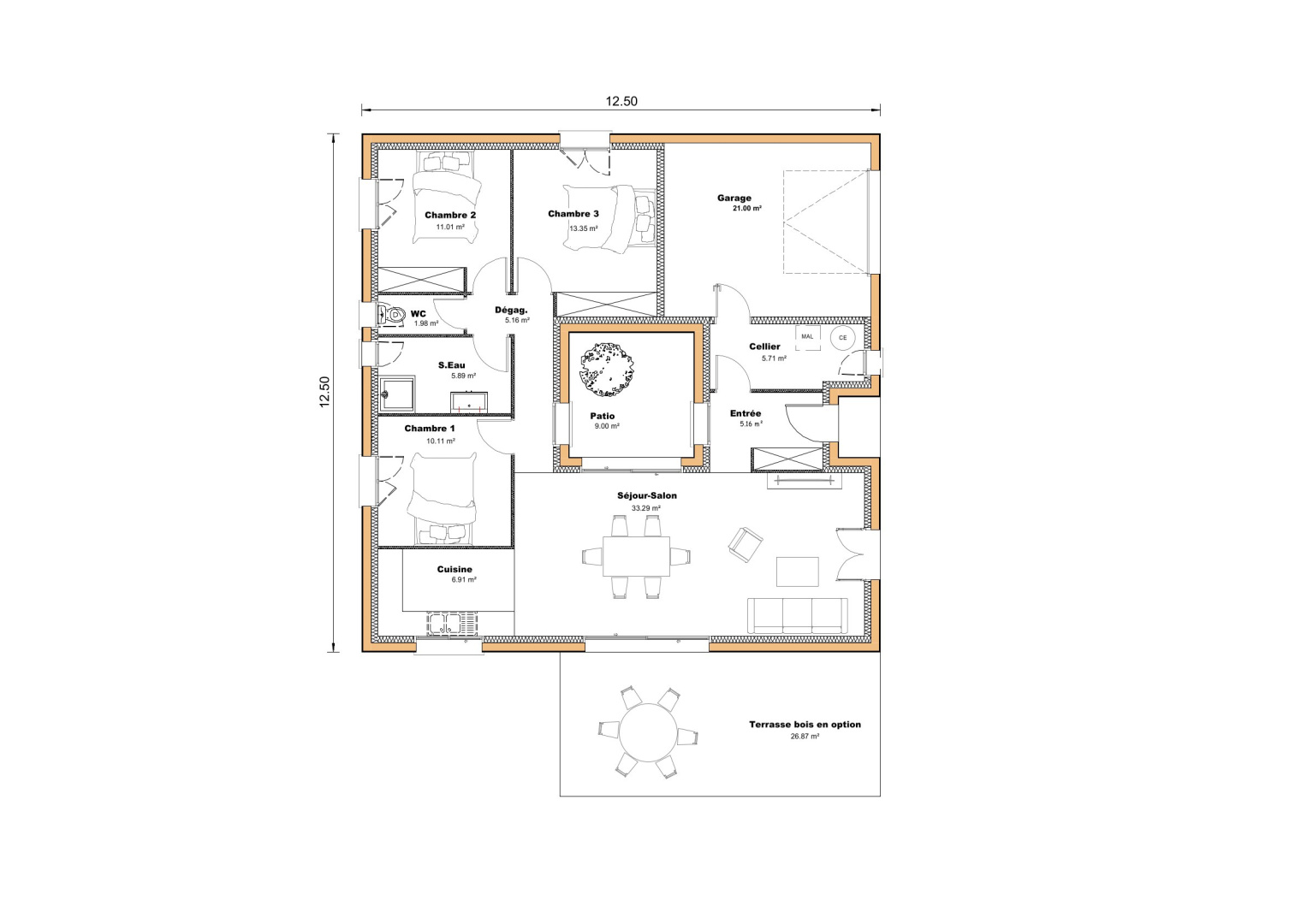
Faites un choix durable pour l'avenir en construisant avec Maisons SIC.Venez découvrir ce magnifique terrain de 2 060 m2 situé à Pibrac, dans un emplacement privilégié sans vis à vis.Imaginez vous vivant dans une maison de 98 m², lumineuse, spacieuse et confortable, avec des espaces de vie agréables, une cuisine ouverte, 3 chambres confortables, deux salles de bains équipées.Toutes nos maisons RE2020 sont construites sur mesure, en ossature bois, maçonnées, ou mixtes.Pour un prix total de 573 255 euros ( frais de notaire et branchement compris*).Renseignement auprès de Clara Mages - Maison SIC au O6 66 64 11 12.*Cette annonce concerne un terrain vendu au prix de 250 000 euros, une maison au prix de 275 000 euros ( hors finitions ) aux normes RE2020 ; les frais de notaire s’élèvent à 19 055 euros + 29 200 euros de frais annexes ( taxe d’aménagement, terrassement, raccordements, viabilisation …). Ce terrain est vendu directement par un partenaire sans entremise du constructeur Maisons SIC.
Caractéristiques du bien
-
Intérieur
- Surface 98 m2
- 3 Chambres
LOCALISATION DU BIEN
Quartier Campagne à Pibrac
Géorisque
Informations financières
A propos du prix
Prix de vente
Prix au m² : 5 850 € / m²

Calcul de vos mensualités
- Montant emprunté
- Coût des intérêts
-
Coût des intérêts :
188555 €