Maison à vendre 4 pièces • 3 chambres • 106 m2 Pujaudran
Prix au m² : 3 446 € / m²
Référence 53980
Description du bien
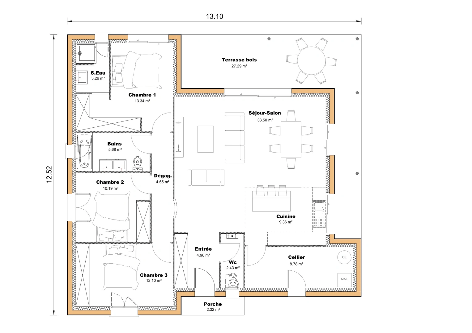
Découvrez la liberté de concevoir et de construire votre maison idéale sur l’un de nos terrain à bâtir.Faites un choix durable pour l'avenir en construisant avec Maisons SIC.Maisons Sic vous propose de découvrir ce magnifique terrain de 556 m2 viabilisé situé à Pujaudran proche du ventre ville et de toutes ces commodités. Ce terrain vous offre la possibilité de construire la maison de vos rêves en ossature bois, traditionnelle ou les deux.Imaginez vous vivant dans une maison de 106 m², lumineuse, spacieuse et confortable, avec des espaces de vie agréables, une cuisine ouverte, 3 chambres confortables, deux salles de bains équipées.Toutes nos maisons RE2020 sont construites sur mesure, en ossature bois, maçonnées, ou mixtes.Pour un prix total de 365 246 euros ( frais de notaire et branchement compris*).Renseignement auprès de Clara Mages - Maison SIC au O6 66 64 11 12.*Cette annonce concerne un terrain vendu au prix de 109 900 euros, une maison au prix de 220 000 euros ( hors finitions ) aux normes RE2020 ; les frais de notaire s’élèvent à 9 946 euros + 25 400 euros de frais annexes ( taxe d’aménagement, terrassement, raccordements, …). Ce terrain est vendu directement par un partenaire sans entremise du constructeur Maisons SIC.
Caractéristiques du bien
-
Intérieur
- Surface 106 m2
- 3 Chambres
LOCALISATION DU BIEN
Quartier Pujaudran à Pujaudran
Géorisque
Informations financières
A propos du prix
Prix de vente
Prix au m² : 3 446 € / m²

Calcul de vos mensualités
- Montant emprunté
- Coût des intérêts
-
Coût des intérêts :
120136 €