property

Appartement à vendre 2 pièces • 1 chambre • 46 m2

137 000 €

Appartement à vendre 2 pièces • 1 chambre • 46 m2 Bordeaux

137 000 €

Prix au m² : 2 979 € / m²

Référence  263

decoration todo
Jonquères d'Oriola Transactions Immobilieres

19 annonces

Bordeaux

Description du bien

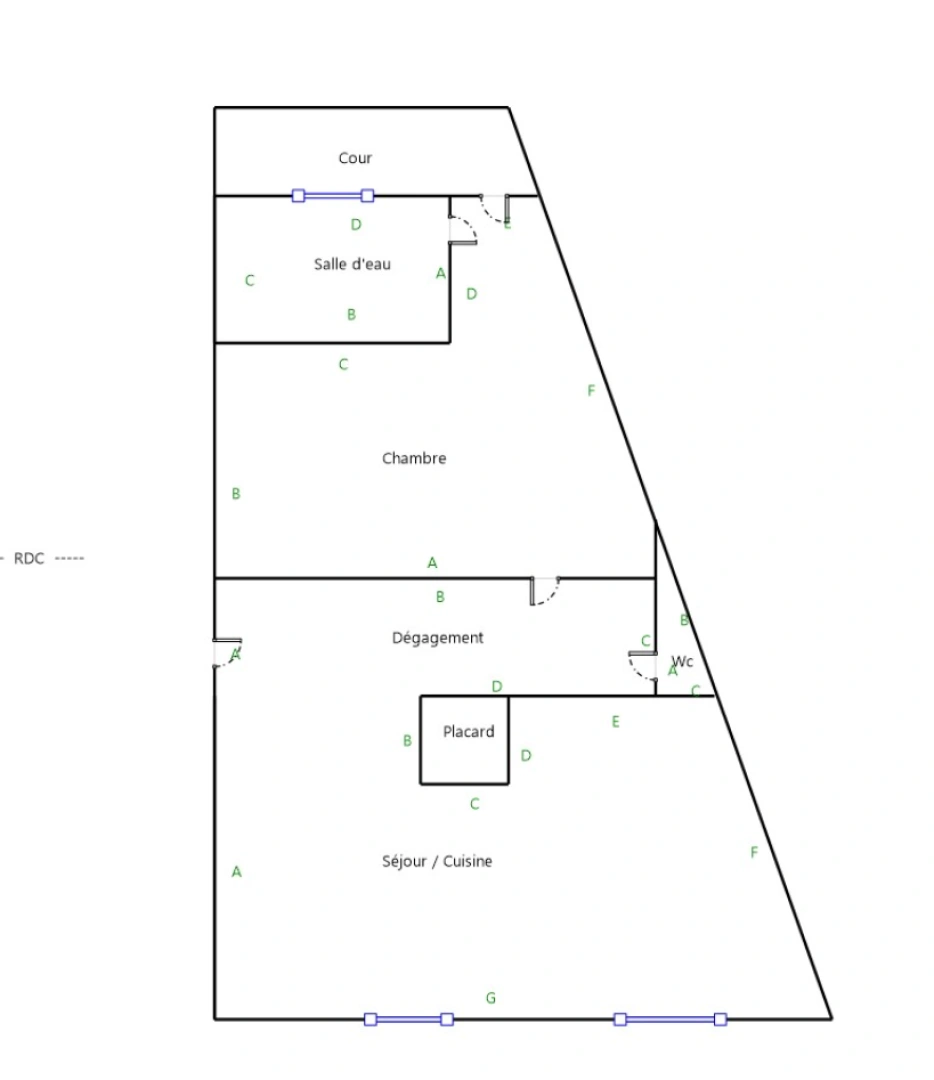
Idéalement situé dans le quartier Saint-Genès, rue Pagès, au rez-de-chaussée d’un immeuble en pierre de taille.Appartement de type 2 d’une superficie de 45,5 m² Carrez, complété d’une terrasse de 4 m². Il se compose d’une entrée avec placard, d’un grand séjour lumineux avec cuisine ouverte grâce à deux fenêtres orientées ouest. À l’arrière, une chambre avec salle d’eau attenante donnant sur une terrasse actuellement couverte. L’appartement nécessite des travaux de rénovation et d’isolation. Petite copropriété de 4 lots.La toiture sera entièrement refaite prochainement (quote-part pour ce lot : 5 000 €). Idéal investisseur.Potentiel locatif :- En meublé : 895 € selon le plafonnement des loyers.- En non meublé : 795 € (hors complément de loyer applicable en raison de la terrasse.)

Afficher plus Afficher moins

Caractéristiques du bien

  • Intérieur

    • Surface 46 m2
    • 1 Chambres
    • 1 WC
  • Copropriété

    • Nombre de lots: 4

Diagnostics énergétiques

Consommation énergétique

Emission de gaz

LOCALISATION DU BIEN

Quartier Saint-Bruno-Saint-Victor à Bordeaux

Points d'intérêts

Transports

Éducation

Services publics

Commerces & Services

Géorisque

Les informations sur les risques auxquels ce bien est exposé sont disponibles sur le site Géorisques https://www.georisques.gouv.fr

Informations financières

A propos du prix

Prix de vente

137 000 €

Prix au m² : 2 979 € / m²

Calcul de vos mensualités

Simulez vos prêts en quelques clics !

*Les données de ce simulateur sont indicatives et non contractuelles. Calcul hors assurance et frais de garantie.

Vos mensualités
470 € / mois
  • Montant emprunté
  • Coût des intérêts
  • Coût des intérêts :

    45062
    (d’après le taux d’intérêt annuel moyen : 3.3 %)
decoration
Jonquères d'Oriola Transactions Immobilieres

19 annonces

Bordeaux

Ce bien vous intéresse ?
*
*
*
*
*
*