Terrain à batir à vendre Carignan-de-Bordeaux

279 000 €

Référence  3

decoration todo
SYELL IMMOBILIER

4 annonces

Mérignac

Description du bien

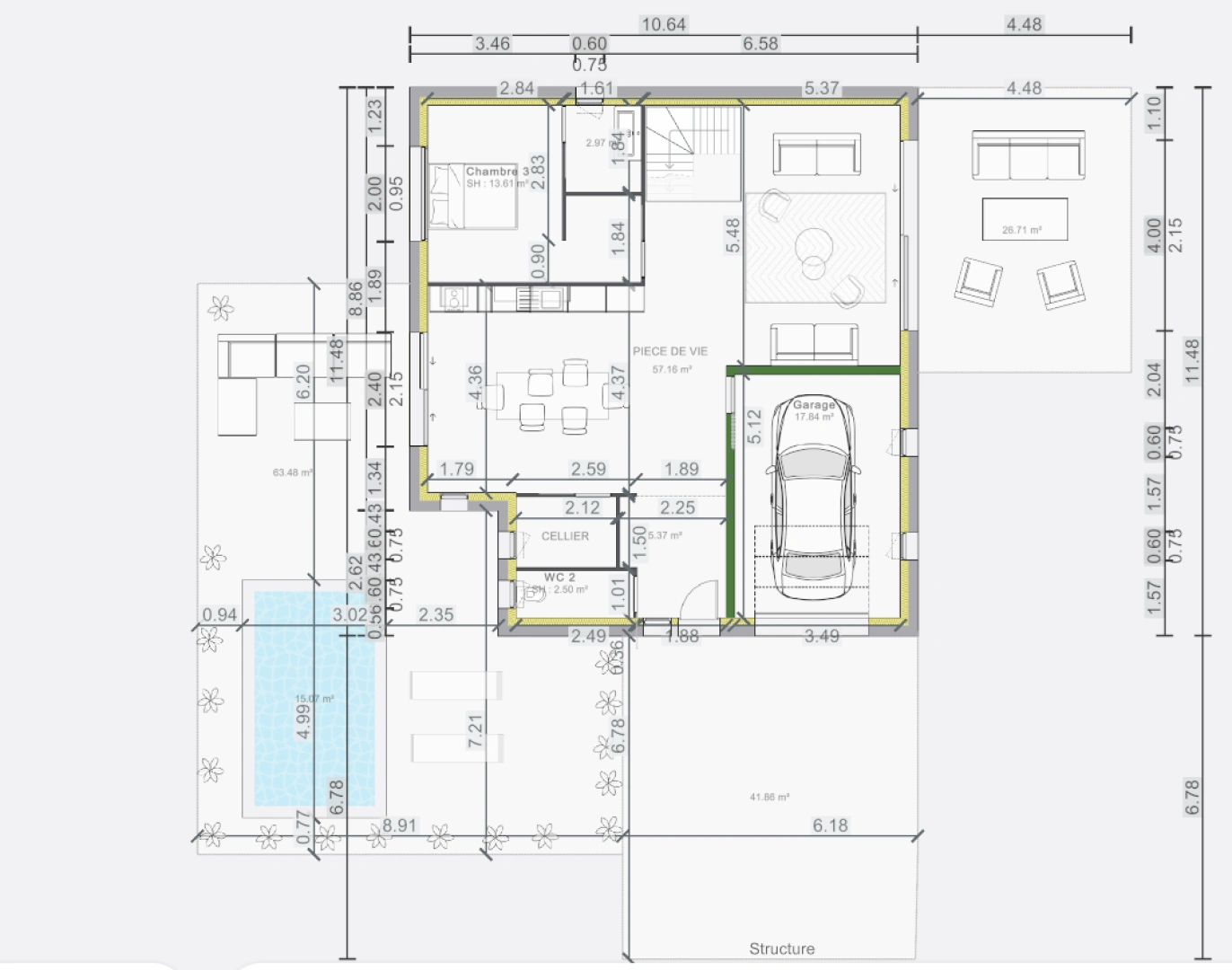
Terrain à bâtir viabilisé – 1504 m² – Carignan-de-Bordeaux (33360) – Proche Bouliac Situé sur la commune recherchée de Carignan-de-Bordeaux, à quelques minutes seulement de Bouliac et de Bordeaux, découvrez ce beau terrain à bâtir de 1504 m² entièrement viabilisé, offrant un cadre naturel privilégié. -Implanté route de Fargues, le terrain bénéficie d’un accès facile et rapide aux axes principaux, tout en étant agréablement protégé par un espace boisé qui crée un véritable écran naturel et préserve l’intimité du lieu. -Les atouts du terrain : • Superficie généreuse : 1504 m² • Terrain viabilisé ( chemin d’accès réalisé) • Espace boisé apportant charme et protection naturelle • Environnement résidentiel recherché • Proximité Bouliac, Bordeaux, commodités, Collège de renom. - Un projet déjà imaginé en complète harminie avec le terrain si vous le souhaitez.... Les photos de 4 à 7, vous découvrirez une étude de faisabilité réalisée par Syell Immobilier, pensée pour exploiter pleinement les qualités du terrain. Le projet propose une maison contemporaine ouverte sur la nature, avec de larges ouvertures et des espaces de vie tournés vers l’extérieur, créant une sensation de vivre dedans-dehors au quotidien, que ce soit dans les pièces de vie ou aux étages. Une architecture conçue pour profiter de la lumière, du cadre boisé et offrir une qualité de vie rare aux portes de Bordeaux. -Terrain libre de constructeur : Vous êtes totalement libre de réaliser le projet de maison qui correspond à vos envies et avec qui vous voulez. -Une belle opportunité de construire votre maison dans un environnement naturel tout en restant proche de la métropole bordelaise. -Pour plus d’informations ou organiser une visite, contactez Syell Immobilier

Afficher plus Afficher moins

LOCALISATION DU BIEN

Quartier Carignan-de-Bordeaux à Carignan-de-Bordeaux

Points d'intérêts

Transports

Éducation

Services publics

Commerces & Services

Géorisque

Les informations sur les risques auxquels ce bien est exposé sont disponibles sur le site Géorisques https://www.georisques.gouv.fr

Informations financières

A propos du prix

Prix de vente

279 000 €

Calcul de vos mensualités

Simulez vos prêts en quelques clics !

*Les données de ce simulateur sont indicatives et non contractuelles. Calcul hors assurance et frais de garantie.

Vos mensualités
957 € / mois
  • Montant emprunté
  • Coût des intérêts
  • Coût des intérêts :

    91768
    (d’après le taux d’intérêt annuel moyen : 3.3 %)
decoration
SYELL IMMOBILIER

4 annonces

Mérignac

Ce bien vous intéresse ?
*
*
*
*
*
*