Maison à vendre 5 pièces • 4 chambres • 102 m2 Cestas
Prix au m² : 4 608 € / m²
Référence 48584
Description du bien
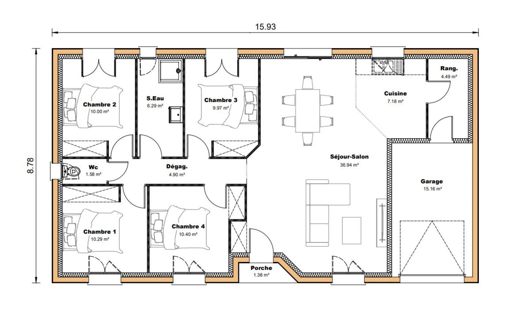
Laissez votre fibre éthique vous guider…..**..PERFORMANCE est une maison qui porte bien son nom !..**..Vous êtes dans une recherche d’équilibre entre la convivialité et l’éthique écologique et économique, PERFORMANCE est faite pour vous :-)..**..Je me nomme Marie-Delphine Catrou-Mounier, je suis en charge de vous accompagner dans votre projet de construction d’une maison neuve pour les Maisons SIC. Une maison à votre image et sur le secteur qui vous convient. Ensemble, nous trouverons « votre » perle rare !..**..Sur un terrain de 829 m² à seulement 15 min à pied du centre de Cestas vous offrant un lieu de vie idéal, à 3min en voiture d'un supermarché et des écoles, sur la commune de Cestas.Cestas se trouve en Gironde, à moins de 16km de Bordeaux et ses commodités. C'est une ville connue pour son environnement naturel avec plus de 700 ha de forêts offrant de nombreuses promenades. Baladez-vous le long du lac vert et de son eau bleue et profitez du cadre naturel préservé. La commune offre de nombreux équipements sportifs et elle est riche de 200 associations : vous pouvez pratiquer de nombreuses activités culturelles, sportives ou bien encore solidaires...**..Terrain de 829 m² d'une valeur de 299000 euros dont la transaction se fera sans entremise du constructeur Maisons SIC...**..Notre incroyable ligne PERFORMANCE vous propose ici ce projet de 102 m² idéalement composé pour un rendement économique en totale adéquation avec la désormais incontournable RE2020 dont l’objectif est l’amélioration de la performance énergétique et du confort des constructions tout en diminuant leur impact carbone...**..PERFORMANCE 102 est résolument la maison d’aujourd’hui et de demain !..**..Le porche d’entrée vous accueille sur un vaste séjour-cuisine de plus de 44 m², avec son cellier qui donne sur le garage. La partie nuit quant à elle propose 4 belles chambres desservies par un dégagement et disposent d’une salle d’eau et d’un wc individuel...**..Ne cherchez plus, PERFORMANCE 102 est la réponse !..**..Transformons votre rêve en réalité !..**..Contactez-moi : Marie-Delphine Catrou-Mounier O6 17 43 85 O3..**..Surface du terrain : 829 m²..**..Surface de la maison : 102 m²..**..Prix total du projet : à partir de 470000 euros
Caractéristiques du bien
-
Intérieur
- Surface 102 m2
- 4 Chambres
LOCALISATION DU BIEN
Quartier Écarts Ruraux à Cestas
Géorisque
Informations financières
A propos du prix
Prix de vente
Prix au m² : 4 608 € / m²

Calcul de vos mensualités
- Montant emprunté
- Coût des intérêts
-
Coût des intérêts :
154592 €