Terrain à batir à vendre Saint-Selve

150 000 €

Référence  5943

decoration todo
Urban Immobilier

29 annonces

Bordeaux

Description du bien

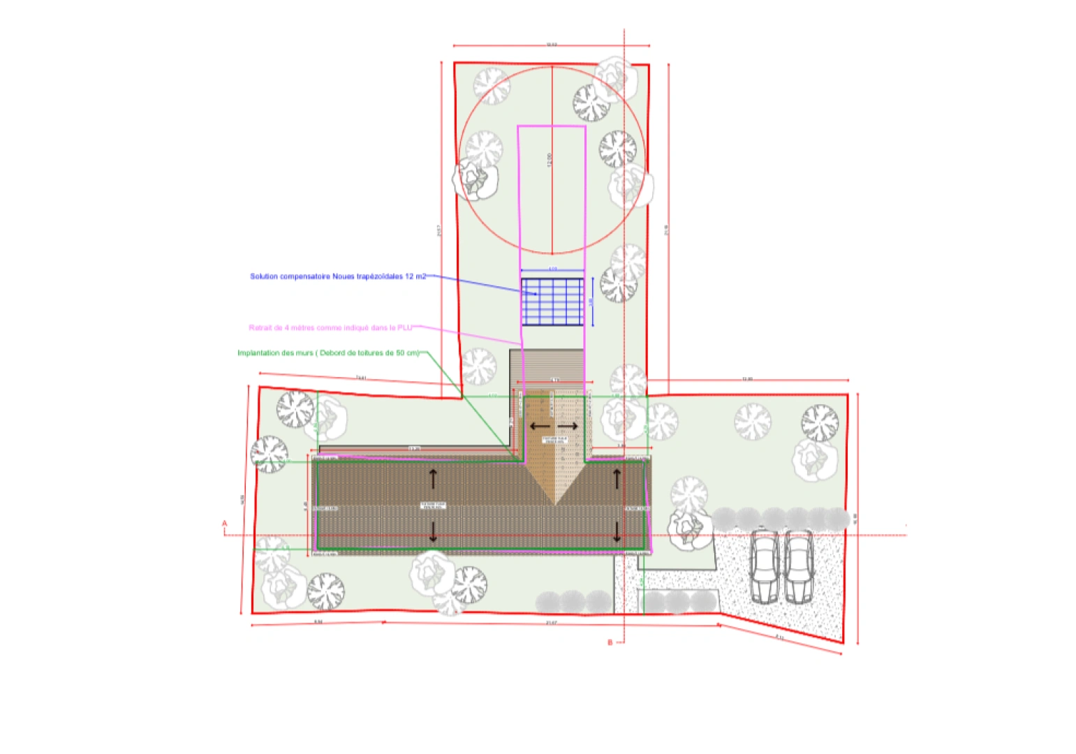
SAINT SELVE - Terrain à bâtir plat de 820m2 avec permis accepté et purgé pour une maison de plain pied type 4 de 104m2 habitable et 2 places de parking . Il est idéalement placé dans un petit lieu dit (Sarransot) calme en retrait des nuisances et avec des bois autour. Le terrain a été entièrement nettoyé et terrassé. Rare à découvrir sans tarder.

Afficher plus Afficher moins

Caractéristiques du bien

  • Extérieur

    • Jardin de 500 m2
  • Environnement

    • Environnement Calme

LOCALISATION DU BIEN

Quartier Saint-Selve à Saint-Selve

Points d'intérêts

Transports

Éducation

Services publics

Commerces & Services

Géorisque

Les informations sur les risques auxquels ce bien est exposé sont disponibles sur le site Géorisques https://www.georisques.gouv.fr

Informations financières

A propos du prix

Prix de vente

150 000 €

  • Taxe foncière
    800 € / an

Calcul de vos mensualités

Simulez vos prêts en quelques clics !

*Les données de ce simulateur sont indicatives et non contractuelles. Calcul hors assurance et frais de garantie.

Vos mensualités
514 € / mois
  • Montant emprunté
  • Coût des intérêts
  • Coût des intérêts :

    49338
    (d’après le taux d’intérêt annuel moyen : 3.3 %)
decoration
Urban Immobilier

29 annonces

Bordeaux

Ce bien vous intéresse ?
*
*
*
*
*
*