Terrain à batir à vendre Betton
Référence 1200
Description du bien
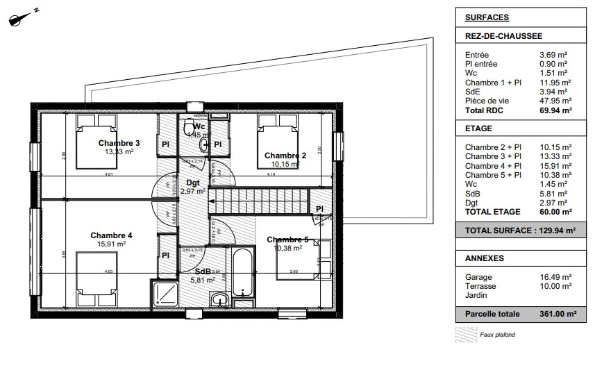
OPPORTUNITÉ À BETTON - LOT DE 2 TERRAINS À BÂTIR ! Le Cabinet YVANEZ Immobilier vous propose un projet de construction situé hors lotissement constitué d'un ensemble de deux lots pouvant être vendus séparément, d'une contenance de 361 m² pour le Lot 1 et 347 m² pour le Lot 2. (Superficie totale avec chemin d'accès 735 m²) Parfaitement situé, à seulement 15 minutes à pied de la gare de Betton et 350 m de l'arrêt de bus, son environnement vous permettra une accessibilté rapide à toutes commodités. Libre de constructeur, vous aurez la capacité de facilement vous projeter et ainsi laisser place à vos envies et votre imagination. Vous trouverez le détail des ces terrains en annonce sur notre site internet références 1197 et 1198. (Possibilité d'acheter les 2 terrains séparément. Des plans de projet de construction par terrain sont proposés en photo, ceux-ci ne constituant qu'un exemple de projection non contractuelle. Ils ont été réalisés par un professionnel architecte et vous sont transmis uniquement dans le but de vous inspirer et de vous permettre de démarrer votre projet plus rapidement. Prix de vente : 267 850€ (inclus 7 850€ honoraires d'agence à charge acquéreur) Les informations sur les risques auxquels ce bien est exposé sont disponibles sur le site Géorisques : www. georisques.gouv.fr Pour plus d'informations, merci de bien vouloir nous contacter, par téléphone : 0299372674 ou par mail : cabinet.yvanez@gmail.com
LOCALISATION DU BIEN
Betton
Géorisque
Informations financières
A propos du prix
Prix de vente

Calcul de vos mensualités
- Montant emprunté
- Coût des intérêts
-
Coût des intérêts :
88101 €
Achat immobilier sur Betton
