Terrain à vendre Polignac

58 000 €

Référence  264

decoration todo
Alti'Immo

78 annonces

Sainte-Sigolène

Description du bien

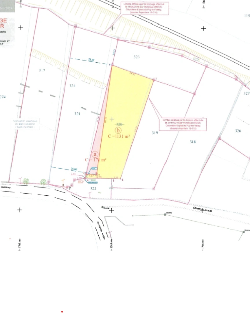
Venez découvrir ce terrain constructible situé aux Estreys, borné et viabilisé, exposé plein sud dans un secteur calme proche de la borne. Ce terrain vous séduira par son emplacement, situé à 5 min du Puy en Velay avec une vue sur la nature, dans un environnement calme. Prévoir assainissement individuel, possibilité d'acheter une plus grande parcelle.

Afficher plus Afficher moins

LOCALISATION DU BIEN

Quartier Polignac à Polignac

Points d'intérêts

Transports

Éducation

Services publics

Commerces & Services

Géorisque

Les informations sur les risques auxquels ce bien est exposé sont disponibles sur le site Géorisques https://www.georisques.gouv.fr

Informations financières

A propos du prix

Prix de vente

58 000 €

Calcul de vos mensualités

Simulez vos prêts en quelques clics !

*Les données de ce simulateur sont indicatives et non contractuelles. Calcul hors assurance et frais de garantie.

Vos mensualités
199 € / mois
  • Montant emprunté
  • Coût des intérêts
  • Coût des intérêts :

    19077
    (d’après le taux d’intérêt annuel moyen : 3.3 %)
decoration
Alti'Immo

78 annonces

Sainte-Sigolène

Ce bien vous intéresse ?
*
*
*
*
*
*