Terrain à batir à vendre Pouillé-les-Côteaux

47 832 €

Référence  LCRM4561

decoration todo
FILUMENA OFFICE IMMOBILIER

87 annonces

Sucé-sur-Erdre

Description du bien

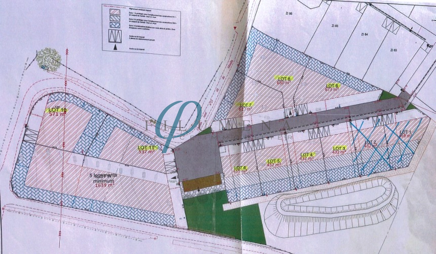
FILUMENA vous propose ces 9 lots viabilisés à bâtir sur la commune de Pouillé les Coteaux, au calme en impasse avec une superbe vue dégagée. Les terrains font une surface de 432 m² à 680 m². Les prix de vente vont de 47 832 € à 65 400 € Frais d'agence inclus. Pour plus d'informations, merci de contacter Lauriane Paillard au 06 48 15 08 74, Agent commercial immatriculé au RSAC sous le n°841 838 873.

Afficher plus Afficher moins

LOCALISATION DU BIEN

Quartier Pouillé-les-Côteaux à Pouillé-les-Côteaux

Points d'intérêts

Transports

Éducation

Services publics

Commerces & Services

Géorisque

Les informations sur les risques auxquels ce bien est exposé sont disponibles sur le site Géorisques https://www.georisques.gouv.fr

Informations financières

A propos du prix

Prix de vente

47 832 €

Calcul de vos mensualités

Simulez vos prêts en quelques clics !

*Les données de ce simulateur sont indicatives et non contractuelles. Calcul hors assurance et frais de garantie.

Vos mensualités
164 € / mois
  • Montant emprunté
  • Coût des intérêts
  • Coût des intérêts :

    15733
    (d’après le taux d’intérêt annuel moyen : 3.3 %)
decoration
FILUMENA OFFICE IMMOBILIER

87 annonces

Sucé-sur-Erdre

Ce bien vous intéresse ?
*
*
*
*
*
*