Terrain à vendre La Chapelle-Saint-Mesmin

109 900 €

Référence  2134

decoration todo
Success Immo

9 annonces

Orléans

Description du bien

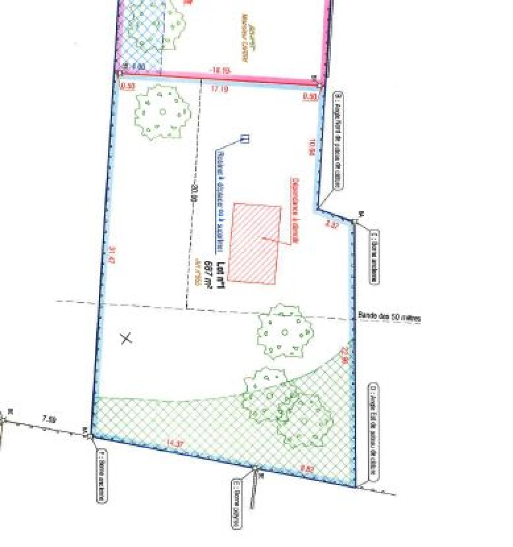
Terrain à bâtir à vendre - 687 m² au calme Venez découvrir ce magnifique terrain à bâtir de 687 m², situé en second rang, au calme, et offrant un accès privé via un chemin d’accès. Ce terrain est hors lotissement et libre constructeur, vous offrant ainsi une grande liberté pour réaliser votre projet immobilier. Caractéristiques principales : Surface totale : 687 m² (hors chemin d'accès) Façade : 22 m Emprise au sol : supérieure à 200 m² Surface de pleine terre : 60 % à laisser intacte Construction possible jusqu’à 9 m au faîtage et 6 m à l'égout de toit Exposition sud en façade arrière Ce terrain vous permet de construire une belle maison familiale ou même deux petites maisons, selon vos besoins. Avec la possibilité de construire un étage 'droit', vous bénéficierez d’un beau potentiel d'aménagement, tout en respectant les normes d’urbanisme. Situation idéale : Idéalement situé, il bénéficie d’un cadre calme tout en étant à proximité de toutes les commodités. La ligne de bus 51 est à quelques mètres à pied, et la gare SNCF toute proche vous permet de rejoindre le centre d’Orléans en seulement 8 minutes. Ce terrain est une opportunité rare pour réaliser le projet de vos rêves dans un secteur prisé. Ne laissez pas passer cette chance de bâtir votre future maison dans un environnement agréable et accessible. Pour plus d'informations ou pour organiser une visite, contactez-nous !

Afficher plus Afficher moins

Caractéristiques du bien

  • Environnement

    • Exposition SUD-EST
    • Environnement calme

LOCALISATION DU BIEN

Quartier Nord-Ouest à La Chapelle-Saint-Mesmin

Points d'intérêts

Transports

Éducation

Services publics

Commerces & Services

Géorisque

Les informations sur les risques auxquels ce bien est exposé sont disponibles sur le site Géorisques https://www.georisques.gouv.fr

Informations financières

A propos du prix

Prix de vente

109 900 €

Calcul de vos mensualités

Simulez vos prêts en quelques clics !

*Les données de ce simulateur sont indicatives et non contractuelles. Calcul hors assurance et frais de garantie.

Vos mensualités
377 € / mois
  • Montant emprunté
  • Coût des intérêts
  • Coût des intérêts :

    36148
    (d’après le taux d’intérêt annuel moyen : 3.3 %)
decoration
Success Immo

9 annonces

Orléans

Ce bien vous intéresse ?
*
*
*
*
*
*