property

Maison à vendre 4 pièces • 3 chambres • 90 m2

278 000 €

Maison à vendre 4 pièces • 3 chambres • 90 m2 Dolmayrac

278 000 €

Prix au m² : 3 089 € / m²

Référence  55400

decoration todo
Sic Habitat vvv

1277 annonces

Tonneins

Description du bien

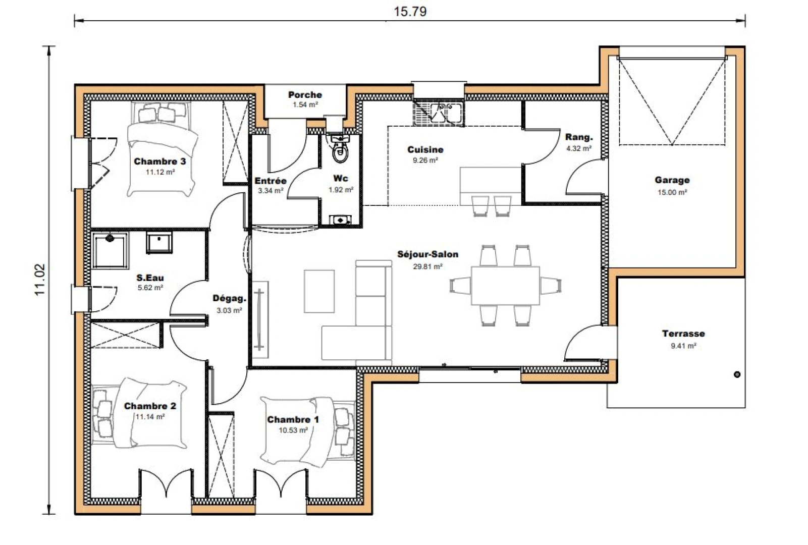
Maison neuve 90 m² - Modèle Performance 12 - Terrain 2 300 m² à DolmayracVous cherchez une maison neuve, mais pas n’importe laquelle ? Oubliez les châteaux en Espagne, place au confort, à la modernité et au charme du bois, à deux pas de Sainte-Livrade-sur-Lot !Maisons SIC, constructeur sérieux depuis 1972, vous présente le modèle Performance 12 de 90 m², conçu pour votre bien-être :Côté nuit : 3 chambres confortables, une salle d’eau et un WC séparé.Côté vie : Un hall d’entrée pour accueillir vos invités comme des stars, ouvrant sur une grande pièce de vie lumineuse avec cuisine ouverte.Extérieurs et rangements : Une terrasse couverte pour vos moments de détente et un garage intégré.Un terrain d'exceptionLe tout est implanté sur une parcelle de 2 300 m² : de quoi organiser des barbecues, planter des tomates ou laisser courir les enfants (ou le chien, ou les deux).Prix : 278 000 €Ce tarif comprend : la maison, le terrain et les VRD (terrassement et branchements).pour plus d informations contacter votre conseiller maisons SIC Nicolas Aznar au O7 81 76 99 45Exemple d’enveloppe budgétaire pour la réalisation d’une Maison SIC sur le terrain de l’un de nos partenaires fonciers. Maison prête à décorer, tous frais compris hors frais annexes (financier et notaire). Photo non contractuelle.terrain vendu directement par notre partenaire foncier sans entremise du constructeur

Afficher plus Afficher moins

Caractéristiques du bien

  • Intérieur

    • Surface 90 m2
    • 3 Chambres

LOCALISATION DU BIEN

Quartier Dolmayrac à Dolmayrac

Points d'intérêts

Transports

Éducation

Services publics

Commerces & Services

Géorisque

Les informations sur les risques auxquels ce bien est exposé sont disponibles sur le site Géorisques https://www.georisques.gouv.fr

Informations financières

A propos du prix

Prix de vente

278 000 €

Prix au m² : 3 089 € / m²

Calcul de vos mensualités

Simulez vos prêts en quelques clics !

*Les données de ce simulateur sont indicatives et non contractuelles. Calcul hors assurance et frais de garantie.

Vos mensualités
953 € / mois
  • Montant emprunté
  • Coût des intérêts
  • Coût des intérêts :

    91440
    (d’après le taux d’intérêt annuel moyen : 3.3 %)
decoration
Sic Habitat vvv

1277 annonces

Tonneins

Ce bien vous intéresse ?
*
*
*
*
*
*