Maison à vendre 4 pièces • 3 chambres • 94 m2 Frespech
Prix au m² : 3 043 € / m²
Référence 53693
Description du bien
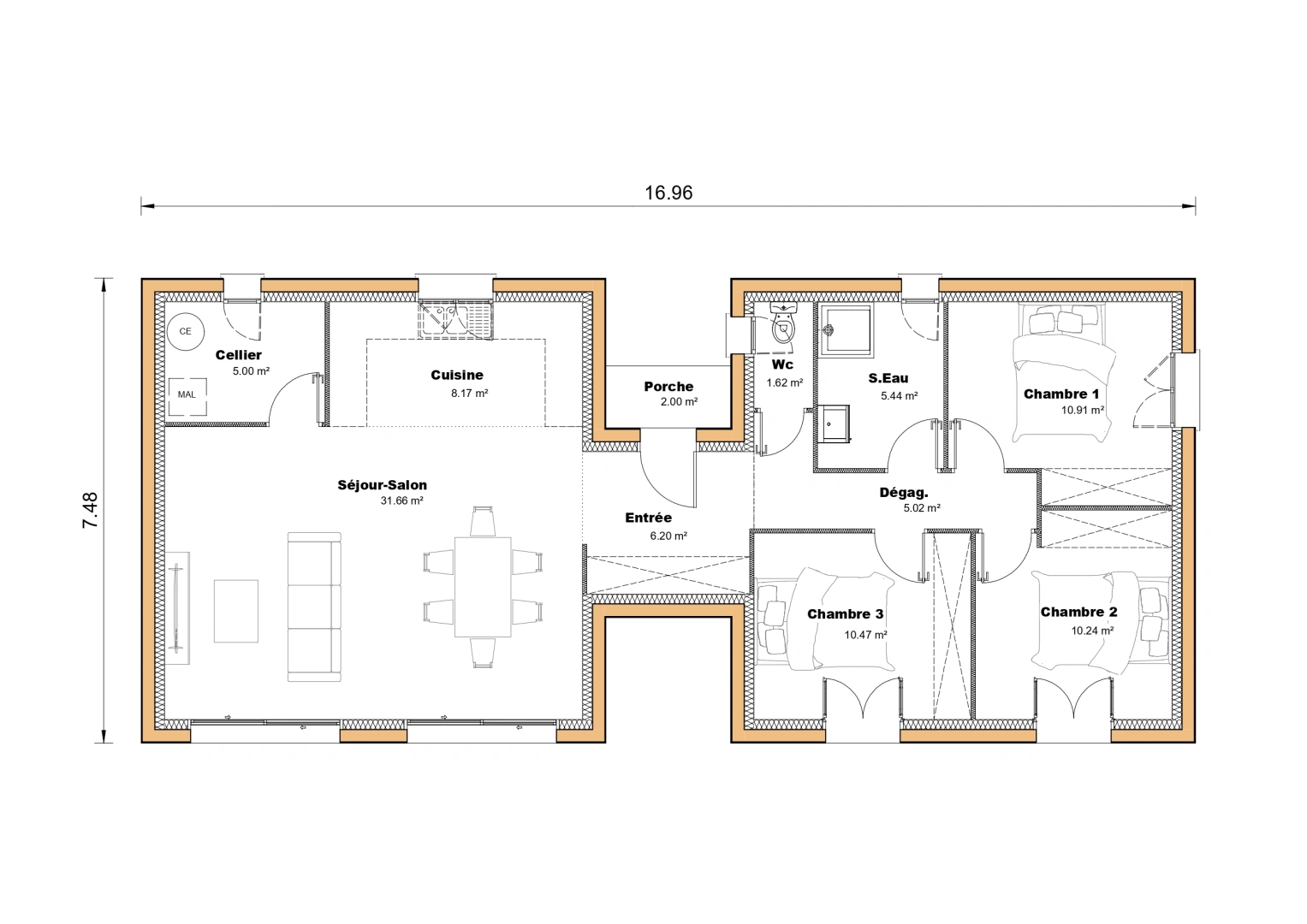
À Frespech, dans un environnement calme et verdoyant, Maisons SIC vous propose un projet de construction clé en main : le modèle Carat de 94 m² habitables, parfaitement adapté à la vie de famille.Caractéristiques de la maison :Surface habitable : 94 m²Espace nuit composé de 3 chambres avec placards intégrésSalle d'eau moderne et WC séparésHall d'entrée accueillantBelle pièce de vie lumineuse avec cuisine ouverteCellier attenantGarage inclusLe tout sur un terrain spacieux de 2 647 m², idéalement situé pour profiter du calme de la campagne tout en restant proche des commodités.Investissement global estimé à 286 000 €, comprenant :Maison prête à vivreTerrain de 2 647 m²Frais de notaireVRD (voiries et réseaux divers)À noter :Terrain proposé exclusivement dans le cadre d'une construction avec Maisons SIC.Terrain vendu directement par son propriétaire, sans intervention du constructeur.Maisons SIC, constructeur de maisons individuelles depuis 1972, vous accompagne à chaque étape de votre projet pour réaliser la maison qui vous ressemble.Contactez-nous dès aujourd’hui pour étudier ensemble votre projet de vie à Frespech !
Caractéristiques du bien
-
Intérieur
- Surface 94 m2
- 3 Chambres
-
Surfaces annexes
- Garage
LOCALISATION DU BIEN
Quartier Frespech à Frespech
Géorisque
Informations financières
A propos du prix
Prix de vente
Prix au m² : 3 043 € / m²

Calcul de vos mensualités
- Montant emprunté
- Coût des intérêts
-
Coût des intérêts :
94071 €