property

Maison à vendre 5 pièces • 4 chambres • 102 m2

242 000 €

Maison à vendre 5 pièces • 4 chambres • 102 m2 Saint-Sylvestre-sur-Lot

242 000 €

Prix au m² : 2 373 € / m²

Référence  55396

decoration todo
Sic Habitat vvv

1243 annonces

Tonneins

Description du bien

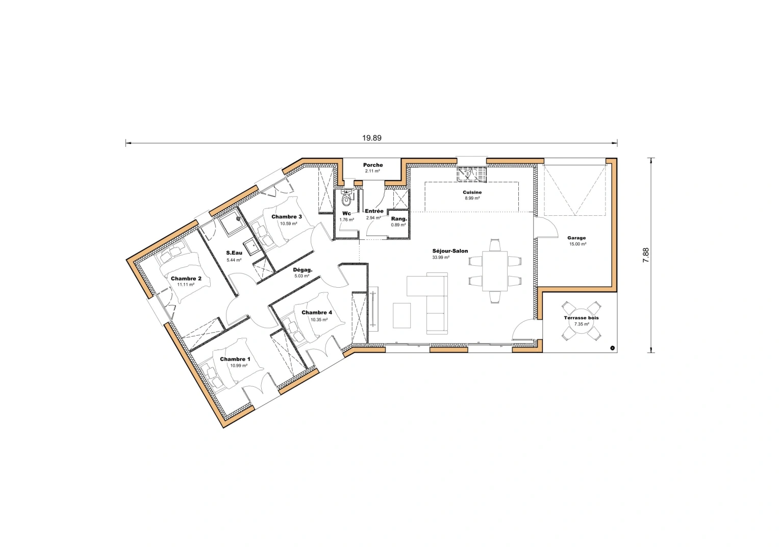
Maison neuve 102 m² - Modèle Performance 5 - Terrain 642 m² à Saint-Sylvestre-sur-Lot Maisons SIC, votre constructeur de confiance depuis 1972, vous présente ce nouveau projet de construction idéalement situé à Saint-Sylvestre-sur-Lot.Le Modèle Performance 5 : Espace et ConvivialitéCette maison de 102 m² a été optimisée pour offrir un maximum de confort à toute la famille :Espace de vie : Un hall d'entrée accueillant ouvrant sur une vaste pièce de vie lumineuse avec cuisine ouverte.Côté nuit : 4 chambres spacieuses équipées de placards intégrés pour un rangement optimal.Extérieur : Une terrasse couverte pour profiter de vos soirées en plein air.Praticité : Une salle d'eau fonctionnelle et un garage attenant.Votre projet sur mesureRéalisez votre construction sur une parcelle de 642 m² au cœur d'un environnement privilégié.L'investissement global estimé à 242 000 € inclut :Le terrainLa construction de la maison (modèle Performance 5)Les VRD (terrassement et branchements)pour plus d informations contacter votre conseiller maisons SIC Nicolas Aznar au O7 81 76 99 45Exemple d’enveloppe budgétaire pour la réalisation d’une Maison SIC sur le terrain de l’un de nos partenaires fonciers. Maison prête à décorer, tous frais compris hors frais annexes (financier et notaire). Photo non contractuelle.terrain vendu directement par notre partenaire foncier sans entremise du constructeur

Afficher plus Afficher moins

Caractéristiques du bien

  • Intérieur

    • Surface 102 m2
    • 4 Chambres
  • Surfaces annexes

    • Garage

LOCALISATION DU BIEN

Quartier Saint-Sylvestre-sur-Lot à Saint-Sylvestre-sur-Lot

Points d'intérêts

Transports

Éducation

Services publics

Commerces & Services

Géorisque

Les informations sur les risques auxquels ce bien est exposé sont disponibles sur le site Géorisques https://www.georisques.gouv.fr

Informations financières

A propos du prix

Prix de vente

242 000 €

Prix au m² : 2 373 € / m²

Calcul de vos mensualités

Simulez vos prêts en quelques clics !

*Les données de ce simulateur sont indicatives et non contractuelles. Calcul hors assurance et frais de garantie.

Vos mensualités
830 € / mois
  • Montant emprunté
  • Coût des intérêts
  • Coût des intérêts :

    79598
    (d’après le taux d’intérêt annuel moyen : 3.3 %)
decoration
Sic Habitat vvv

1243 annonces

Tonneins

Ce bien vous intéresse ?
*
*
*
*
*
*