Maison à vendre 4 pièces • 3 chambres • 108 m2 Laussou
Prix au m² : 2 525 € / m²
Référence 53312
Description du bien
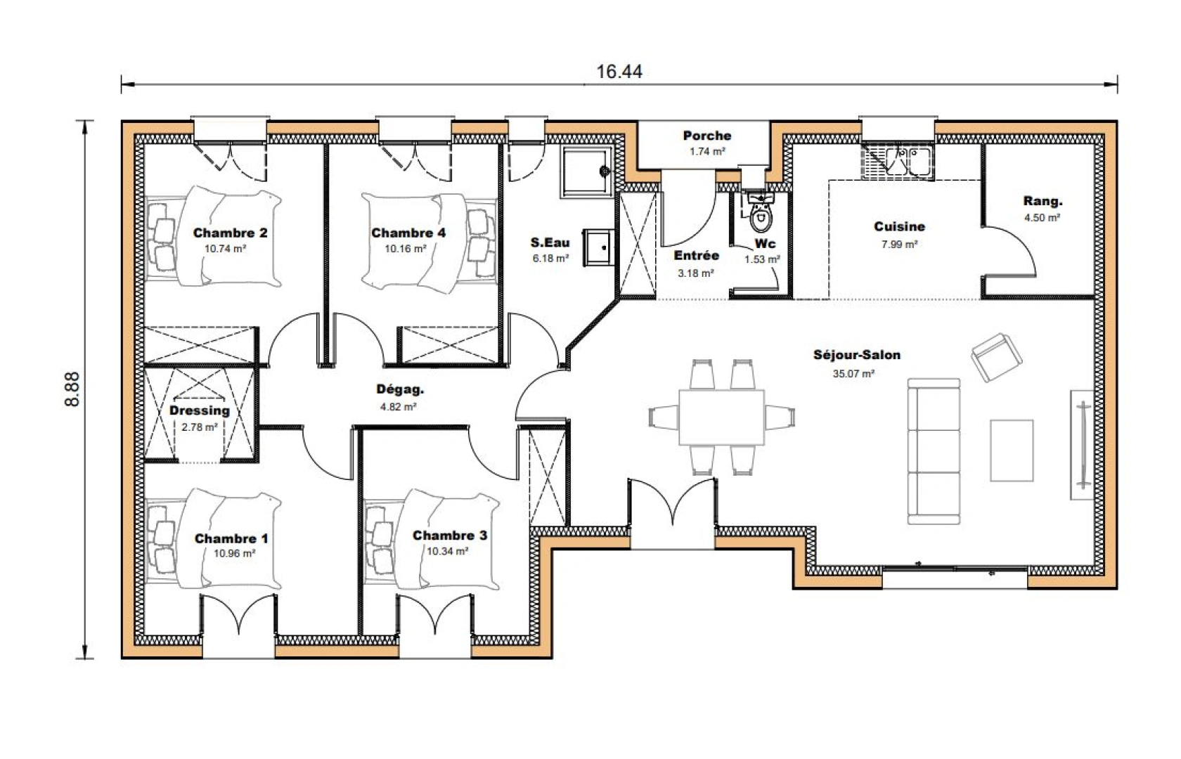
Maison de 4 chambres avec terrainÀ quelques minutes de la charmante commune de Monflanquin, dans le Lot-et-Garonne, les maisons SIC vous proposent de vous établir.Sur un terrain de près de 4300 m², situé dans un endroit paisible.(Terrain vendu par son propriétaire, sans entremise du constructeur maisons SIC)Nous vous offrons la possibilité de construire cette séduisante maison de style traditionnel, confortable et économe en énergie, dotée de 4 chambres (une incluant un dressing), d'un hall d'entrée et d'un espace de vie avec cuisine ouverte pour une atmosphère plus conviviale.Le coût total de ce projet inclut:* Le terrain* Les frais de notaire* La maison prête à être décorée* Le terrassement* Les garanties (y compris la garantie dommage - ouvrage et la garantie de livraison à prix et délais convenus)Le montant s'élève à 272 700€ TTC.Intéressé par cette annonce?N'hésitez pas à contacter Nicolas AZNAR, votre conseiller chez maisons SIC.
Caractéristiques du bien
-
Intérieur
- Surface 108 m2
- 3 Chambres
LOCALISATION DU BIEN
Quartier Laussou à Laussou
Géorisque
Informations financières
A propos du prix
Prix de vente
Prix au m² : 2 525 € / m²

Calcul de vos mensualités
- Montant emprunté
- Coût des intérêts
-
Coût des intérêts :
89696 €