property

Maison à vendre 5 pièces • 4 chambres • 110 m2

256 183 €

Maison à vendre 5 pièces • 4 chambres • 110 m2 Bon-Encontre

256 183 €

Prix au m² : 2 329 € / m²

Référence  48924

decoration todo
Sic Habitat vvv

2438 annonces

Tonneins

Description du bien

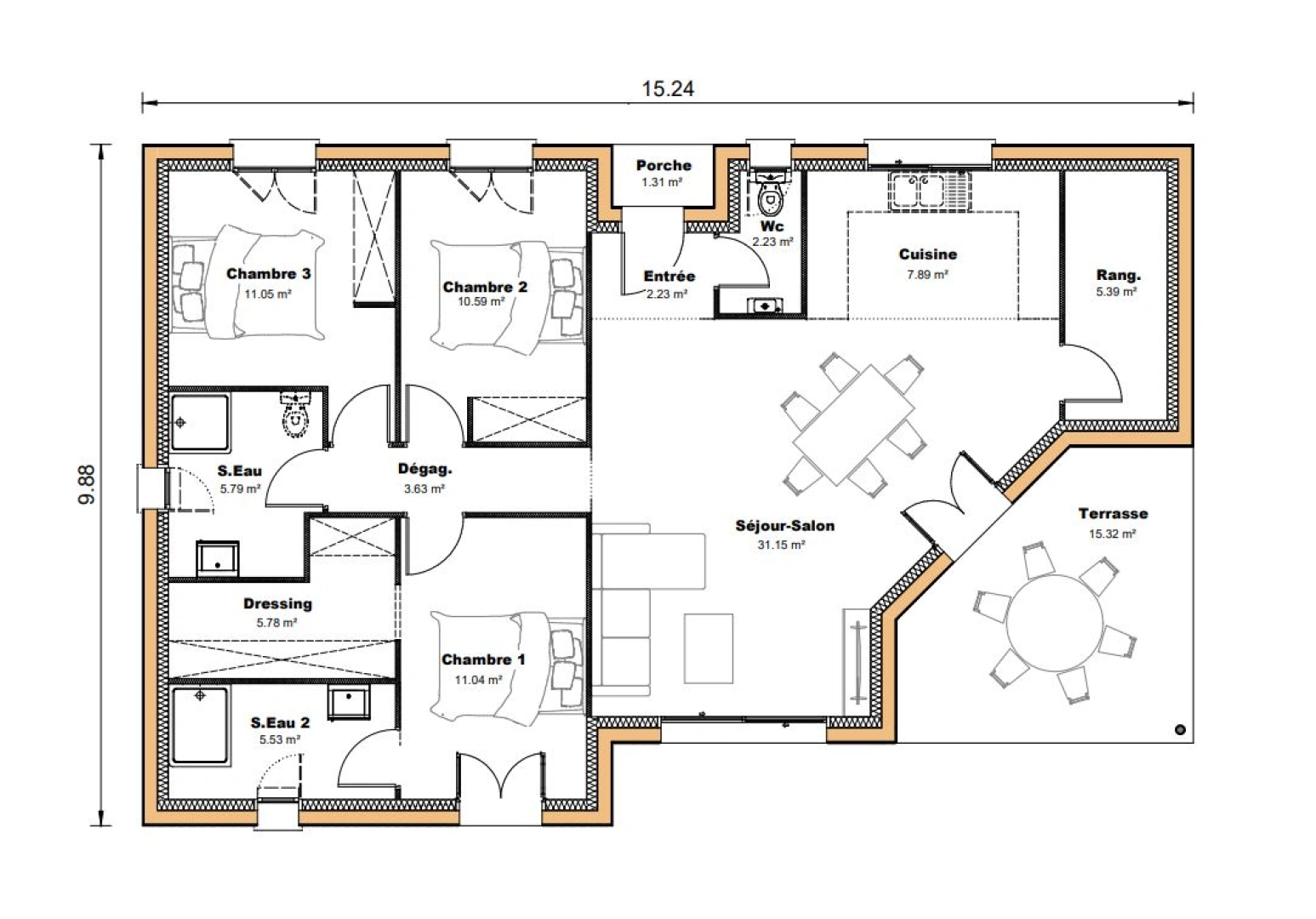
Sur la commune de Bon Encontre, les maisons SIC vous propose sur ce terrain de 860 m² viabilisé, le projet de construction de cette belle villa de 110 m² disposant de 4 chambres et d'un bel espace de vie donnant sur une agréable terrasse couverte et carrelée. Elle offre une belle luminosité et une fonctionnalité repensée afin de créer deux espaces bien distincts. Elle dispose également de nombreux rangements. Son chauffage est assuré par une pompe à chaleur. Maison entièrement personnalisable.Maison certifiée RE 2020 avec assurance dommage ouvrage incluse. Une étude de sol G2 sera réalisée.Comme des milliers de famille depuis 52 ans maintenant , faites confiance au plus vieux constructeur de maisons individuelles en Lot et Garonne pour votre futur projet de construction.L'ensemble du projet comprend la maison (prête à décorer), le terrain, les frais de notaire, les couts d'adaptation au sol et les couts liés au raccordement des différents réseaux techniques s'élève au prix de 256 183 €.Terrain d'une valeur de 64 000€ vendu directement par son propriétaire , à contacter par vous et sans entremise du constructeur MAISONS SIC.Contactez Stéphane Heulot au O6 50 41 37 78 pour plus d'informations

Afficher plus Afficher moins

Caractéristiques du bien

  • Intérieur

    • Surface 110 m2
    • 4 Chambres

LOCALISATION DU BIEN

Bon-Encontre

Points d'intérêts

Transports

Éducation

Services publics

Commerces & Services

Géorisque

Les informations sur les risques auxquels ce bien est exposé sont disponibles sur le site Géorisques https://www.georisques.gouv.fr

Informations financières

A propos du prix

Prix de vente

256 183 €

Prix au m² : 2 329 € / m²

Calcul de vos mensualités

Simulez vos prêts en quelques clics !

*Les données de ce simulateur sont indicatives et non contractuelles. Calcul hors assurance et frais de garantie.

Vos mensualités
879 € / mois
  • Montant emprunté
  • Coût des intérêts
  • Coût des intérêts :

    84264
    (d’après le taux d’intérêt annuel moyen : 3.3 %)
decoration
Sic Habitat vvv

2438 annonces

Tonneins

Ce bien vous intéresse ?
*
*
*
*
*
*