property

Maison à vendre 4 pièces • 3 chambres • 105 m2

260 049 €

Maison à vendre 4 pièces • 3 chambres • 105 m2 Saint-Salvy

260 049 €

Prix au m² : 2 477 € / m²

Référence  52914

decoration todo
Sic Habitat vvv

1236 annonces

Tonneins

Description du bien

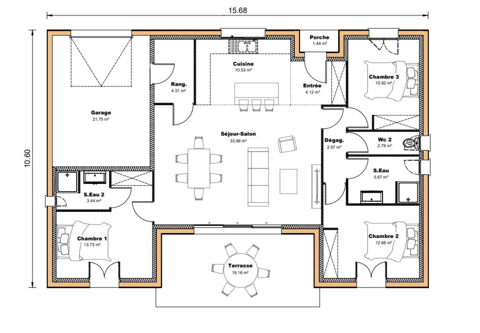
Dans un charmant hameau à Saint Salvy, MAISONS SIC vous propose cette belle maison familiale de 105 m². Après un joli sas d’entrée fonctionnel, appréciez les beaux volumes de sa pièce de vie de 45 m². Sa cuisine fonctionnelle et suppléée par un cellier, idéal pour ranger et stocker. Sur l’aile gauche de la construction, un premier coin nuit indépendant et composé d’une grande chambre parentale de 14 m² et de sa salle d’eau. Sur l’aile droite, deux autres belles chambres de 11 et 13 m², une salle d’eau ainsi qu’un wc séparé viennent réunir tous les éléments nécessaires à une vie de famille optimisée.Pour finir, un grand garage de 22 m² ainsi qu’une belle terrasse de 20 m² viennent agrémenter les prestations de ce joli produit. Le tout sur une belle parcelle de 2000 m². N’attendez plus, contactez-nous !Le chauffage est assuré par une climatisation réversible dans la pièce de vie et par des radiateurs électriques dans les chambres. Volets roulants électriques partout.Maison entièrement personnalisable .Maison certifiée RE 2020 avec assurance dommage ouvrage incluse. L'ensemble du projet comprend la maison (prête à décorer), le terrain, les frais de notaire, les coûts d'adaptation au sol et les coûts liés au raccordement des différents réseaux techniques ainsi que l’assainissement individuel et s'élève au prix de 260 049 EUR.Terrain vendu par son propriétaire sans entremise du constructeur MAISONS SIC.Pour tous renseignements contactez Camille SIMON au 06 59 47 39 86

Afficher plus Afficher moins

Caractéristiques du bien

  • Intérieur

    • Surface 105 m2
    • 3 Chambres

LOCALISATION DU BIEN

Quartier Saint-Salvy à Saint-Salvy

Points d'intérêts

Transports

Éducation

Services publics

Commerces & Services

Géorisque

Les informations sur les risques auxquels ce bien est exposé sont disponibles sur le site Géorisques https://www.georisques.gouv.fr

Informations financières

A propos du prix

Prix de vente

260 049 €

Prix au m² : 2 477 € / m²

Calcul de vos mensualités

Simulez vos prêts en quelques clics !

*Les données de ce simulateur sont indicatives et non contractuelles. Calcul hors assurance et frais de garantie.

Vos mensualités
892 € / mois
  • Montant emprunté
  • Coût des intérêts
  • Coût des intérêts :

    85535
    (d’après le taux d’intérêt annuel moyen : 3.3 %)
decoration
Sic Habitat vvv

1236 annonces

Tonneins

Ce bien vous intéresse ?
*
*
*
*
*
*