property

Maison à vendre 4 pièces • 3 chambres • 90 m2

235 000 €

Maison à vendre 4 pièces • 3 chambres • 90 m2 Cuzorn

235 000 €

Prix au m² : 2 612 € / m²

Référence  55487

decoration todo
Sic Habitat vvv

1281 annonces

Tonneins

Description du bien

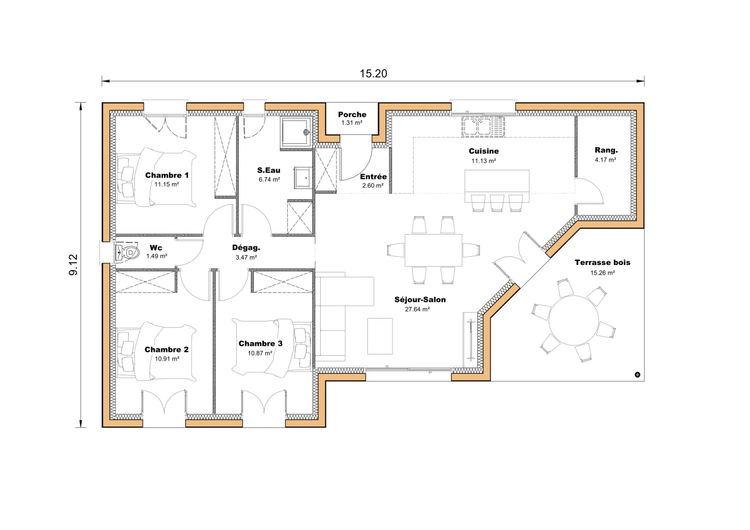
Passez du rêve à la réalité avec ce projet de construction exclusif dans la commune de Cuzorn.Nous vous proposons une opportunité rare : une maison à ossature bois moderne et lumineuse, implantée sur un vaste terrain de 2 300 m², offrant un cadre de vie calme et verdoyant.Ce modèle 'Performance 4' est conçu pour le confort de toute la famille :Espace de vie : Un séjour-salon spacieux et convivial.Extérieur : Une belle terrasse couverte accessible directement depuis le séjour pour vos moments de détente en toutes saisons.Nuit : 3 chambres optimisées.Pratique : Un agencement fonctionnel avec garage intégré.BUDGET TOTAL : 235 000 € (Tout compris)Ce prix comprend : le terrain, la construction de la maison, les coûts annexes (VRD, frais de notaire).C'est la solution idéale pour votre projet de vie : un budget maîtrisé, un terrain généreux et une maison bois performante.Pour plus d informations contacter votre conseiller maisons SIC Nicolas Aznar au O7 81 76 99 45.Terrain vendu directement par notre partenaire foncier sans entremise du constructeur.

Afficher plus Afficher moins

Caractéristiques du bien

  • Intérieur

    • Surface 90 m2
    • 3 Chambres

LOCALISATION DU BIEN

Quartier Cuzorn à Cuzorn

Points d'intérêts

Transports

Éducation

Services publics

Commerces & Services

Géorisque

Les informations sur les risques auxquels ce bien est exposé sont disponibles sur le site Géorisques https://www.georisques.gouv.fr

Informations financières

A propos du prix

Prix de vente

235 000 €

Prix au m² : 2 612 € / m²

Calcul de vos mensualités

Simulez vos prêts en quelques clics !

*Les données de ce simulateur sont indicatives et non contractuelles. Calcul hors assurance et frais de garantie.

Vos mensualités
806 € / mois
  • Montant emprunté
  • Coût des intérêts
  • Coût des intérêts :

    77296
    (d’après le taux d’intérêt annuel moyen : 3.3 %)
decoration
Sic Habitat vvv

1281 annonces

Tonneins

Ce bien vous intéresse ?
*
*
*
*
*
*