Maison à vendre 5 pièces • 4 chambres • 102 m2 Casteljaloux
Prix au m² : 2 484 € / m²
Référence 50164
Description du bien
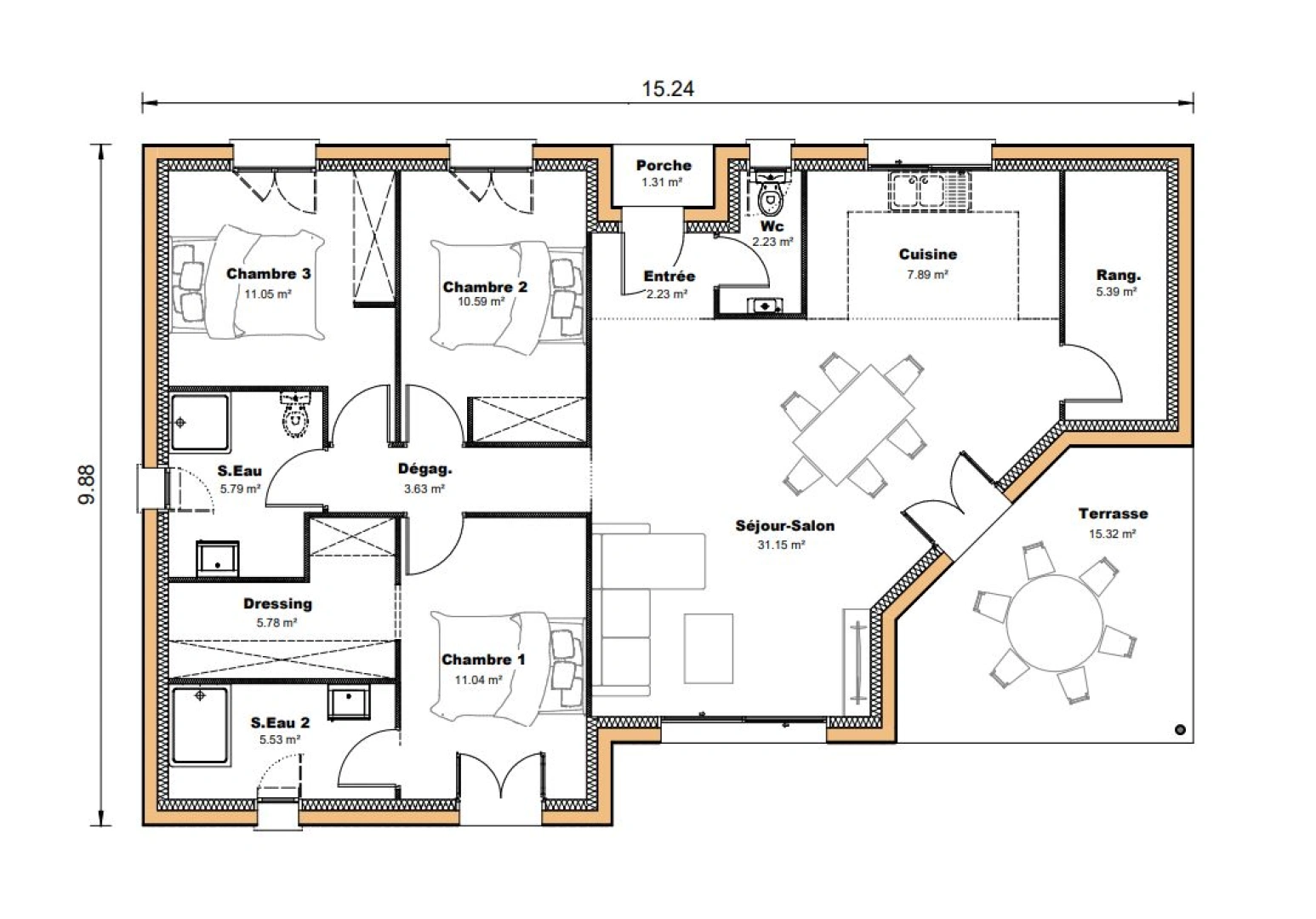
A CASTELJALOUX, dans un quartier pavillonnaire idéalement situé à proximité de toutes les commodités,MAISONS SIC vous propose un terrain plat de 735 m² avec tout à l’égout, avec projet de construction d'un pavillon ossature bois de 102 m² habitable.Maison avec porche d’entrée, espace vestiaire, belle pièce de vie avec cuisine ouverte de 40 m² avec cellier et donnant sur une agréable terrasse couverte exposée plein Sud Ouest.Le coin nuit dispose de trois chambres avec placards, dont une suite parentale avec salle d'eau privative et dressing, d’une salle d’eau supplémentaire avec bac à douche extra-plat, meuble vasque et un wc séparé. Le chauffage est assuré par une climatisation réversible dans la pièce de vie et par des radiateurs électriques dans les chambres. Volets roulants électriques sur l'ensemble de l'habitation.Maison entièrement personnalisable et certifiée RE 2020 avec assurance dommage ouvrage incluse. L'ensemble du projet comprenant la maison (en prête à décorer), le terrain, les frais de notaire, les coûts d'adaptation au sol et les coûts liés au raccordement des différents réseaux techniques ainsi que le raccordement au tout à l’égout, s'élèvent au prix de 253 300 EUR.Terrain vendu par son propriétaire sans entremise du constructeur MAISONS SIC.Pour tous renseignements contactez Sandra BAZAS au 06 81 82 21 66
Caractéristiques du bien
-
Intérieur
- Surface 102 m2
- 4 Chambres
LOCALISATION DU BIEN
Quartier Casteljaloux à Casteljaloux
Géorisque
Informations financières
A propos du prix
Prix de vente
Prix au m² : 2 484 € / m²

Calcul de vos mensualités
- Montant emprunté
- Coût des intérêts
-
Coût des intérêts :
83315 €