Maison à vendre 5 pièces • 4 chambres • 109 m2 Saint-Pardoux-Isaac
Prix au m² : 2 285 € / m²
Référence 53623
Description du bien
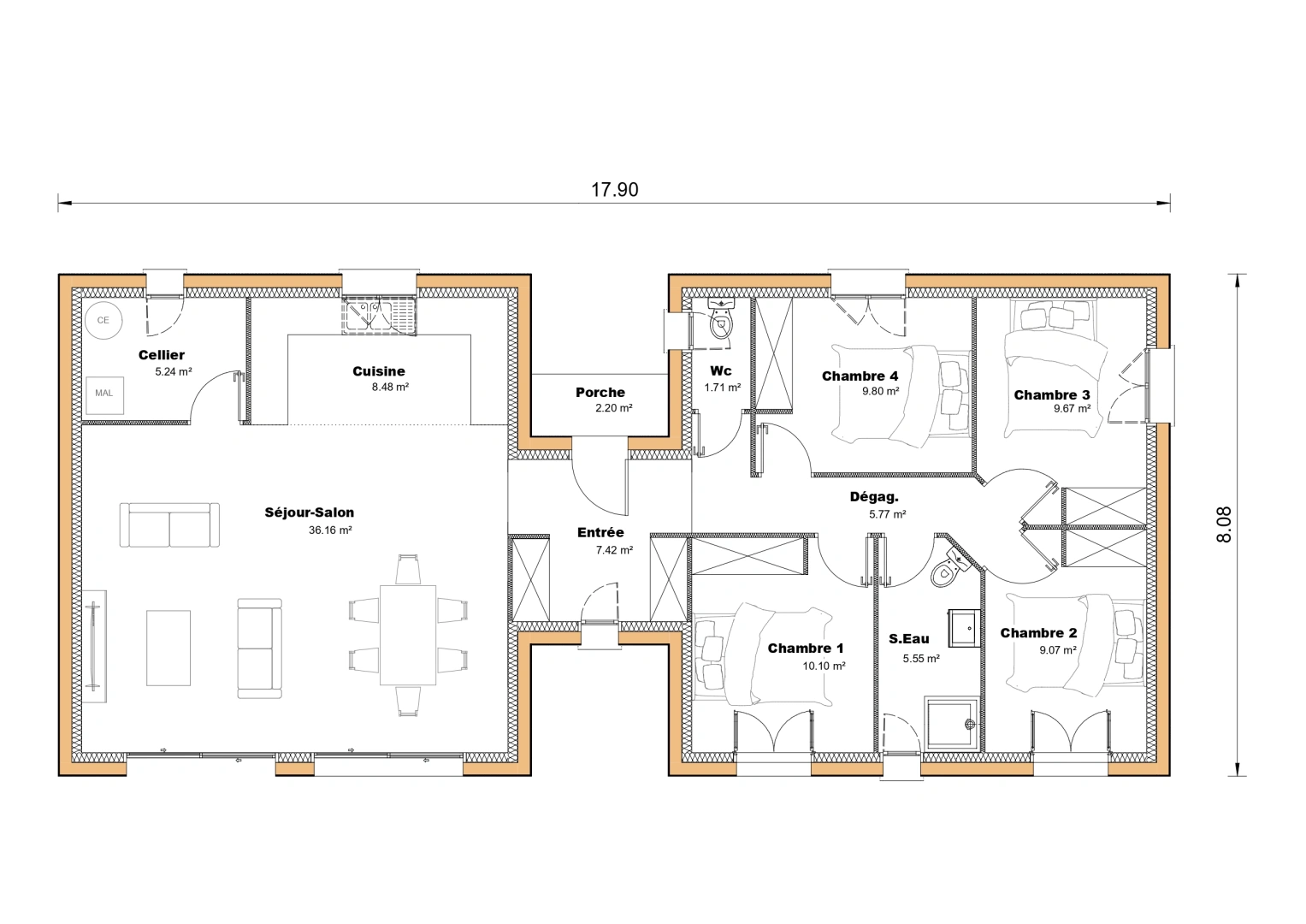
Venez découvrir cette très belle villa de 109 m². Après une entrée centrale avec rangements, se situe d’un côté une grande pièce de vie de plus de 45 m², un cellier/buanderie, et un garage. De l’autre côté se situent quatre chambres, une grande salle d’eau avec wc , et un wc séparé. Le tout se trouve sur un beau terrain à SAINT PARDOUX ISAAC et sur une parcelle de 1000 m² avec vue sur la campagne. Que demander de plus !Le chauffage est assuré par une climatisation réversible dans la pièce de vie et par des radiateurs dans les chambres. Volets roulants électriques partout.Maison entièrement personnalisable. Maison certifiée RE 2020 avec assurance dommage ouvrage incluse. L'ensemble du projet comprend la maison (prête à décorer), le terrain, les frais de notaire, les coûts d'adaptation au sol et les coûts liés au raccordement des différents réseaux techniques ainsi que l'assainissement individuel et s'élève au prix de 249 021 EUR.Terrain vendu directement par son propriétaire sans entremise de la part des MAISONS SIC.Pour tous renseignements contactez Camille SIMON au 06 59 47 39 86
Caractéristiques du bien
-
Intérieur
- Surface 109 m2
- 4 Chambres
LOCALISATION DU BIEN
Quartier Saint-Pardoux-Isaac à Saint-Pardoux-Isaac
Géorisque
Informations financières
A propos du prix
Prix de vente
Prix au m² : 2 285 € / m²

Calcul de vos mensualités
- Montant emprunté
- Coût des intérêts
-
Coût des intérêts :
81908 €